Ashtons Estate Agents says ..
A spacious one-bedroom first floor apartment, ideally positioned in the popular Fishergate area on Barbican Road, just moments from York’s historic city walls and the Barbican events centre. With its own private entrance and generous layout, this property is particularly well-suited to first time...
Property Oracle says ..
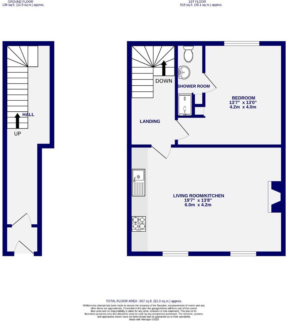
This property is a one-bedroom apartment located in the Barbican Road area of York. The apartment is situated in a convenient location with nearby schools, such as Fishergate Primary School (rated Good by Ofsted) and St George’s Catholic Primary School, both within a short distance. York train station is also relatively close by, providing good transport links. The property itself appears to be in reasonable condition, though the provided images do not offer a comprehensive view of the entire property. The apartment has a small front patio area. The list price of £200,000 seems relatively high compared to the average price per square foot in the area (£308), especially considering the smaller size (538 sqft) of this property compared to the average (1562 sqft). However, prices in this area of York can be variable, and the proximity to amenities and transport links could justify a higher price per square foot. More information would be needed to provide a definitive assessment of value.
Therefore, we give this property 5 / 10. *Disclaimer: This is our option and does constitute a recommendation or financial advice. Do your own research. *
- Price
- 5
- Condition
- 7
- Location
- 8
- Land
- 2
- Bedrooms
- 1
- Bathrooms
- 1
- Sqft (est)
- 538.20
The heatmap indicates the level of crime in the area. The color of the heatmap indicates the crime severity and recency.
Metrics Year-on-Year
- Average area value
- 391,421.00 £Increased by 20.41 %
- Est sale value
- 215,280.00 £Decreased by 8.05 %
- Average area rental value
- 1,243.00 £/moDecreased by 1.97 %
- Est letting value
- 538.20 £/moUnchanged by 0.00 %
- Est rental Yield
- 3.81 %Decreased by 18.59 %
- Crime Rate
- 5.00 %Unchanged by 0.00 %
Agent Activity
Ashtons Estate Agents created the listing.
Nearby Schools
| Name | Type | Ofsted | Distance |
|---|---|---|---|
| St George'S Catholic Primary School - A Catholic Voluntary Academy | Academy Converter | 0.34 KM | |
| Fishergate Primary School | Community School | Good | 0.39 KM |
| St Lawrence'S Children'S Centre | Children's Centre | 0.77 KM | |
| St Lawrence'S Church Of England Primary Academy | Academy Sponsor Led | Requires improvement | 0.77 KM |
| Danesgate Community | Pupil Referral Unit | Good | 1.17 KM |
Images
Nearby Streets
| Name | Average Price | Average Sqft | Distance |
|---|---|---|---|
| Garden Court | £ 0 | 0 | 0.00 KM |
| St Ann's Court | £ 0 | 0 | 0.00 KM |
| Lawrence Court | £ 0 | 0 | 0.00 KM |
| Dower Court | £ 0 | 0 | 0.00 KM |
| Thistleton Court | £ 159,950 | 0 | 0.00 KM |
Nearby Transport
| Name | NLC | TLC | Distance |
|---|---|---|---|
| York | 8263 | YRK | 2.38 KM |
| Poppleton | 8254 | POP | 8.82 KM |
Nearby Listings
| Address | Price | Type | Score | Distance |
|---|---|---|---|---|
| Barbican Road, York | £ 200,000 | BUY | 5 / 10 | 0.00 KM |
| Barbican Road, York | £ 375,000 | BUY | Unknown | 0.00 KM |
| Barbican Road, York | £ 175,000 | BUY | 5 / 10 | 0.00 KM |
| Heslington Road, York | £ 155,000 | BUY | 5 / 10 | 0.07 KM |
| Barbican Road, York | £ 400,000 | BUY | 5 / 10 | 0.12 KM |
Nearby Properties
| Address | Price | Distance |
|---|---|---|
| 35 Willis Street | £ 153,000 | 0.09 KM |
| 29 Willis Street | £ 161,500 | 0.09 KM |
| 42 Willis Street | £ 162,500 | 0.09 KM |
| 20 Willis Street | £ 162,250 | 0.09 KM |
| 34 Willis Street | £ 177,500 | 0.09 KM |