Fletcher & Poole says ..
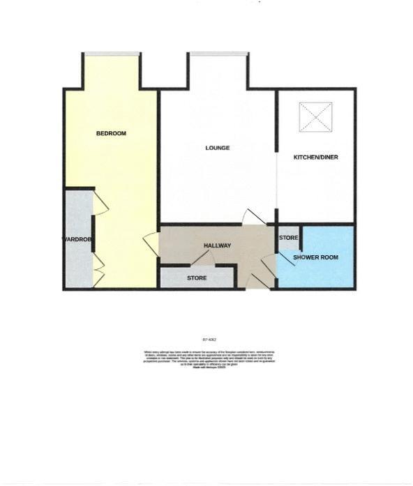
This spacious and light one bedroom second floor retirement apartment is part of a well maintained development for the over 60s, close to all the amenities of Penrhyn Bay and just a short walk to the promenade and Angel Bay. Penrhyn Court has an onsite manager, 24 hour emergency call system and a...
Property Oracle says ..
Therefore, we give this property 6 / 10. *Disclaimer: This is our option and does constitute a recommendation or financial advice. Do your own research. *
- Price
- 9
- Condition
- 6
- Location
- 7
- Land
- 5
- Bedrooms
- 1
- Bathrooms
- 1
- Sqft (est)
- 537.00
The heatmap indicates the level of crime in the area. The color of the heatmap indicates the crime severity and recency.
Metrics Year-on-Year
- Average area value
- 336,568.00 £Decreased by 7.70 %
- Est sale value
- 163,785.00 £Decreased by 20.37 %
- Average area rental value
- 1,650.00 £/moIncreased by 37.50 %
- Est letting value
- 537.00 £/moUnchanged by 0.00 %
- Est rental Yield
- 5.88 %Increased by 48.86 %
- Crime Rate
- 39.00 %Unchanged by 0.00 %
from 364,653.00 £
from 205,671.00 £
from 1,200.00 £/mo
from 537.00 £/mo
from 3.95 %
from 39.00 %
Agent Activity
Fletcher & Poole created the listing.
Nearby Schools
| Name | Type | Ofsted | Distance |
|---|---|---|---|
| Ysgol Y Creuddyn | Welsh Establishment | 0.48 KM | |
| Ysgol Glanwydden | Welsh Establishment | 0.60 KM | |
| Ysgol Bodafon | Welsh Establishment | 1.36 KM | |
| St David'S College | Welsh Establishment | 2.38 KM | |
| Mochdre Infants C.P. School | Welsh Establishment | 3.13 KM |
Images
Nearby Streets
| Name | Average Price | Average Sqft | Distance |
|---|---|---|---|
| Shaftesbury Avenue | £ 0 | 0 | 0.00 KM |
| Princes Court | £ 0 | 0 | 0.00 KM |
| St David's Close | £ 0 | 0 | 0.00 KM |
| Church Close | £ 229,950 | 0 | 0.00 KM |
| Lôn Gloddaeth | £ 0 | 0 | 0.00 KM |
Nearby Transport
| Name | NLC | TLC | Distance |
|---|---|---|---|
| Llandudno Junction | 2485 | LLJ | 4.91 KM |
| Llandudno | 2484 | LLD | 5.40 KM |
| Glan Conwy | 2454 | GCW | 5.79 KM |
| Colwyn Bay | 2451 | CWB | 6.25 KM |
| Deganwy | 2480 | DGY | 6.52 KM |
Nearby Listings
| Address | Price | Type | Score | Distance |
|---|---|---|---|---|
| Plas Penrhyn, Penrhyn Bay, Llandudno | £ 90,000 | BUY | 7 / 10 | 0.00 KM |
| Penrhyn Bay, Penrhyn Bay | £ 89,000 | BUY | 6 / 10 | 0.00 KM |
| Penrhyn Court, Penrhyn Bay | £ 98,000 | BUY | 7 / 10 | 0.00 KM |
| Penrhyn Court, Penrhyn Bay | £ 99,950 | BUY | 6 / 10 | 0.00 KM |
| Penrhyn Court, Penrhyn Bay, Llandudno, Conwy, LL30 | £ 79,950 | BUY | 7 / 10 | 0.02 KM |
Nearby Properties
| Address | Price | Distance |
|---|---|---|
| 7 Maes Y Wennol | £ 278,000 | 0.07 KM |
| 12 Maes Y Wennol | £ 310,000 | 0.07 KM |
| 5 Maes Y Wennol | £ 177,500 | 0.07 KM |
| 2 Maes Y Wennol | £ 187,000 | 0.07 KM |
| 10 Maes Y Wennol | £ 320,000 | 0.07 KM |