Chancellors says ..
Situated on the hugely sought after Connaught Park development is this very well presented two bedroom back to back 'Warwick'. The property is offered to the market with no onward chain.
Property Oracle says ..
Therefore, we give this property 6 / 10. *Disclaimer: This is our option and does constitute a recommendation or financial advice. Do your own research. *
- Price
- 8
- Condition
- 7
- Location
- 7
- Land
- 5
- Bedrooms
- 2
- Bathrooms
- 1
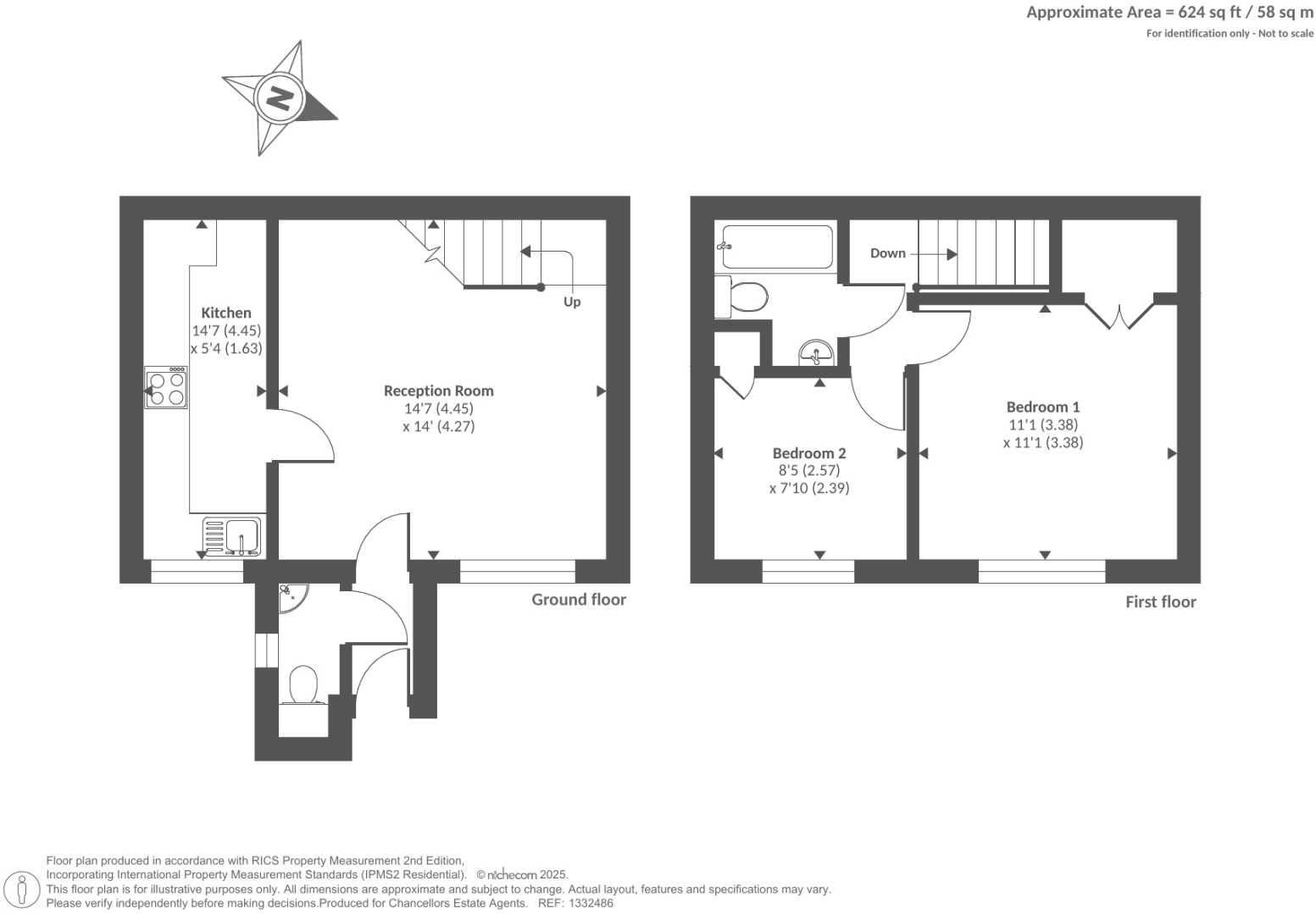
- Sqft (est)
- 624.00
The heatmap indicates the level of crime in the area. The color of the heatmap indicates the crime severity and recency.
Metrics Year-on-Year
- Average area value
- 1,043,333.00 £Increased by 83.77 %
- Est sale value
- 823,680.00 £Increased by 225.12 %
- Average area rental value
- 6,842.00 £/moIncreased by 222.89 %
- Est letting value
- 4,992.00 £/moIncreased by 700.00 %
- Est rental Yield
- 7.87 %Increased by 75.67 %
- Crime Rate
- 11.00 %Unchanged by 0.00 %
from 567,724.00 £
from 253,344.00 £
from 2,119.00 £/mo
from 624.00 £/mo
from 4.48 %
from 11.00 %
Agent Activity
Chancellors created the listing.
Nearby Schools
| Name | Type | Ofsted | Distance |
|---|---|---|---|
| Bagshot Infant School & Sure Start Children'S Centre | Children's Centre | 0.68 KM | |
| Bagshot Infant School | Community School | Good | 0.68 KM |
| Connaught Junior School | Academy Converter | Good | 0.69 KM |
| Hammond School | Academy Converter | Good | 1.52 KM |
| Lightwater Village School | Academy Converter | 2.07 KM |
Images
Nearby Streets
| Name | Average Price | Average Sqft | Distance |
|---|---|---|---|
| Woodside Close | £ 0 | 0 | 0.00 KM |
| Brook Road | £ 0 | 0 | 0.00 KM |
| Cedar Court | £ 350,000 | 0 | 0.00 KM |
| Hamilton Close | £ 0 | 0 | 0.00 KM |
| Elizabeth Avenue | £ 450,000 | 0 | 0.00 KM |
Nearby Transport
| Name | NLC | TLC | Distance |
|---|---|---|---|
| Bagshot | 5681 | BAG | 1.43 KM |
| Camberley | 5682 | CAM | 5.97 KM |
| Ascot (Berks) | 5666 | ACT | 6.31 KM |
| Martins Heron | 5692 | MAO | 7.08 KM |
| Frimley | 5683 | FML | 7.49 KM |
Nearby Listings
| Address | Price | Type | Score | Distance |
|---|---|---|---|---|
| Bagshot, Surrey, GU19 | £ 325,000 | BUY | 6 / 10 | 0.00 KM |
| Arthur Close, Bagshot, Surrey, GU19 | £ 325,000 | BUY | 7 / 10 | 0.02 KM |
| Arthur Close, BAGSHOT, GU19 | £ 450,000 | BUY | Unknown | 0.02 KM |
| Albert Road, Bagshot, Surrey | £ 775,000 | BUY | 8 / 10 | 0.07 KM |
| Bagshot, Surrey, GU19 | £ 500,000 | BUY | Unknown | 0.09 KM |
Nearby Properties
| Address | Price | Distance |
|---|---|---|
| 7 Arthur Close | £ 162,000 | 0.02 KM |
| 21 Arthur Close | £ 390,000 | 0.02 KM |
| 19 Arthur Close | £ 262,000 | 0.02 KM |
| 6 Arthur Close | £ 190,000 | 0.02 KM |
| 22 Arthur Close | £ 75,000 | 0.02 KM |