Dexters says ..
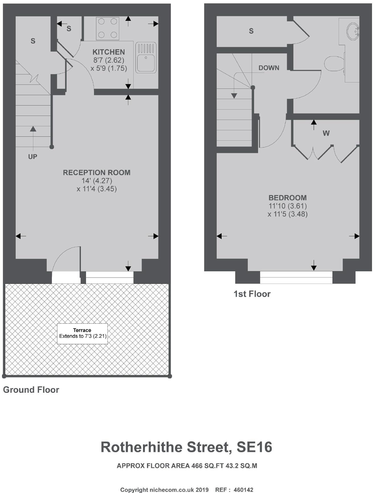
Arranged over two floors, this one double bedroom flat is in excellent condition and has its own front door and private terrace. The apartment has a modern kitchen and bathroom, large living space, bedroom and ample storage.
Property Oracle says ..
Therefore, we give this property 6 / 10. *Disclaimer: This is our option and does constitute a recommendation or financial advice. Do your own research. *
- Price
- 8
- Condition
- 7
- Location
- 8
- Land
- 1
- Bedrooms
- 1
- Bathrooms
- 1
- Sqft (est)
- 424.63
The heatmap indicates the level of crime in the area. The color of the heatmap indicates the crime severity and recency.
Metrics Year-on-Year
- Average area value
- 491,111.00 £Decreased by 10.47 %
- Est sale value
- 273,886.35 £Decreased by 1.68 %
- Average area rental value
- 2,267.00 £/moIncreased by 15.90 %
- Est letting value
- 849.26 £/moUnchanged by 0.00 %
- Est rental Yield
- 5.54 %Increased by 29.44 %
- Crime Rate
- 2.00 %Unchanged by 0.00 %
from 548,573.00 £
from 278,557.28 £
from 1,956.00 £/mo
from 849.26 £/mo
from 4.28 %
from 2.00 %
Agent Activity
Dexters created the listing.
Nearby Schools
| Name | Type | Ofsted | Distance |
|---|---|---|---|
| Peter Hills With St Mary'S And St Paul'S Cofe Primary School | Voluntary Aided School | Good | 0.14 KM |
| Bacon'S College | Academy Sponsor Led | 0.49 KM | |
| The Pier Head Preparatory Montessori School | Other Independent School | Good | 0.66 KM |
| St John'S Roman Catholic Primary School | Voluntary Aided School | Good | 0.74 KM |
| Alfred Salter Primary School | Community School | Good | 0.77 KM |
Images
Nearby Streets
| Name | Average Price | Average Sqft | Distance |
|---|---|---|---|
| Burnside Close | £ 0 | 0 | 0.00 KM |
| Beatson Walk | £ 0 | 0 | 0.00 KM |
| Charrington Jetty | £ 1,000,000 | 0 | 0.00 KM |
| Smith Close | £ 0 | 0 | 0.00 KM |
| St. George's Square | £ 718,750 | 0 | 0.00 KM |
Nearby Transport
| Name | NLC | TLC | Distance |
|---|---|---|---|
| Limehouse | 7491 | LHS | 0.80 KM |
| Rotherhithe | 1039 | ROE | 1.11 KM |
| Canada Water | 1659 | ZCW | 1.16 KM |
| New Cross | 5150 | NWX | 1.16 KM |
| Wapping | 1085 | WPE | 1.36 KM |
Nearby Listings
| Address | Price | Type | Score | Distance |
|---|---|---|---|---|
| Rotherhithe Street, Rotherhithe | £ 325,000 | BUY | 6 / 10 | 0.00 KM |
| King & Queen Wharf, Rotherhithe | £ 550,000 | BUY | 6 / 10 | 0.02 KM |
| King & Queen Wharf, Rotherhithe | £ 750,000 | BUY | Unknown | 0.02 KM |
| Rotherhithe Street, Surrey Quays, SE16 | £ 550,000 | BUY | Unknown | 0.02 KM |
| King & Queen Wharf, Rotherhithe Street, London, SE16 | £ 350,000 | BUY | Unknown | 0.02 KM |
Nearby Properties
| Address | Price | Distance |
|---|---|---|
| 189a Rotherhithe Street | £ 230,500 | 0.08 KM |
| 197 Rotherhithe Street | £ 227,500 | 0.08 KM |
| 191 Rotherhithe Street | £ 435,000 | 0.08 KM |
| 187a Rotherhithe Street | £ 387,000 | 0.08 KM |
| 189 Rotherhithe Street | £ 250,000 | 0.08 KM |