MO
Wray Common Road, Valley Court, RH2
By Move Revolution
£ 325,000
Reviews
3 out of 5 stars
Move Revolution says ..
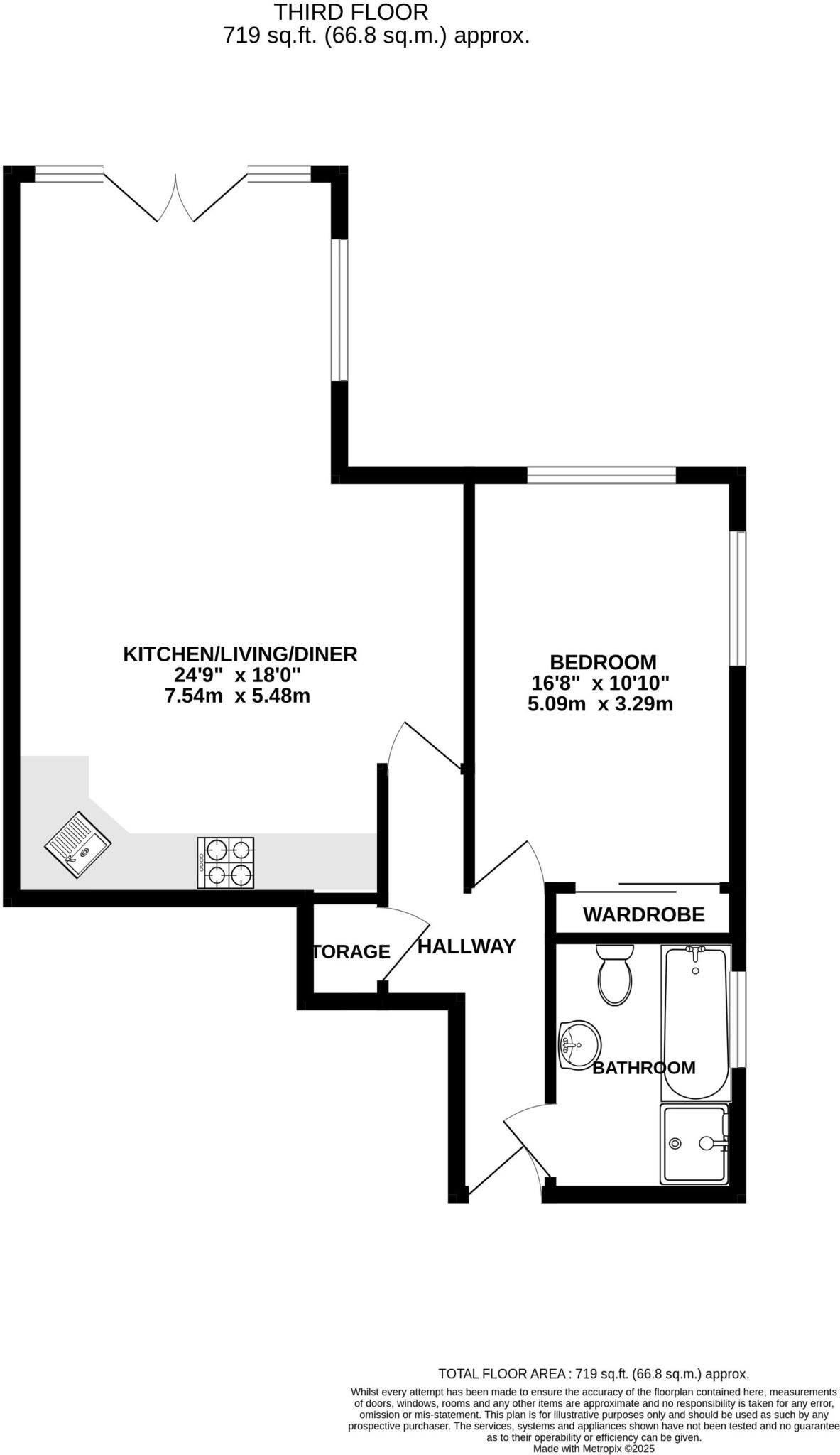
Guide Price £325,000 - £350,000. Modern one-bedroom apartment in prestigious gated development. Immaculately presented with open-plan living and beautiful communal grounds. Prime location with excellent transport links and amenities.
Property Oracle says ..
Therefore, we give this property 7 / 10. *Disclaimer: This is our option and does constitute a recommendation or financial advice. Do your own research. *
- Price
- 9
- Condition
- 9
- Location
- 8
- Land
- 3
- Bedrooms
- 1
- Bathrooms
- 1
- Sqft (est)
- 719.00
The heatmap indicates the level of crime in the area. The color of the heatmap indicates the crime severity and recency.
Metrics Year-on-Year
- Average area value
- 546,714.00 £Increased by 5.40 %
- Est sale value
- 569,448.00 £Increased by 39.68 %
- Average area rental value
- 1,842.00 £/moIncreased by 17.62 %
- Est letting value
- 1,438.00 £/moIncreased by 100.00 %
- Est rental Yield
- 4.04 %Increased by 11.60 %
- Crime Rate
- 7.00 %Unchanged by 0.00 %
from 518,703.00 £
from 407,673.00 £
from 1,566.00 £/mo
from 719.00 £/mo
from 3.62 %
from 7.00 %
Agent Activity
Move Revolution created the listing.
Nearby Schools
| Name | Type | Ofsted | Distance |
|---|---|---|---|
| Wray Common Primary School | Academy Converter | 0.56 KM | |
| Hatchlands Primary | Free Schools | 0.63 KM | |
| Reigate Grammar School | Other Independent School | 0.74 KM | |
| Reigate Parish Church Primary School | Voluntary Aided School | Outstanding | 0.77 KM |
| Dunottar School | Other Independent School | 1.06 KM |
Images
Nearby Streets
| Name | Average Price | Average Sqft | Distance |
|---|---|---|---|
| Oak Road | £ 1,250,000 | 0 | 0.00 KM |
| Highlands Road | £ 2,450,000 | 0 | 0.00 KM |
| Millway | £ 1,850,000 | 0 | 0.00 KM |
| Doods Brow Cottages | £ 0 | 0 | 0.00 KM |
| St. David's Close | £ 0 | 0 | 0.00 KM |
Nearby Transport
| Name | NLC | TLC | Distance |
|---|---|---|---|
| Reigate | 5480 | REI | 1.82 KM |
| Earlswood (Surrey) | 5414 | ELD | 2.34 KM |
| Redhill | 5478 | RDH | 2.38 KM |
| Merstham | 5475 | MHM | 4.90 KM |
| Salfords (Surrey) | 5380 | SAF | 5.11 KM |
Nearby Listings
| Address | Price | Type | Score | Distance |
|---|---|---|---|---|
| Wray Common Road, Valley Court, RH2 | £ 325,000 | BUY | 7 / 10 | 0.00 KM |
| Wray Common Road, Reigate | £ 685,000 | BUY | 7 / 10 | 0.01 KM |
| Doods Way, St. Arnaud Doods Way, RH2 | £ 400,000 | BUY | 7 / 10 | 0.06 KM |
| Wray Common Road, Reigate, Surrey | £ 875,000 | BUY | 7 / 10 | 0.07 KM |
| Wray Common Road, Reigate, RH2 | £ 380,000 | BUY | Unknown | 0.10 KM |
Nearby Properties
| Address | Price | Distance |
|---|---|---|
| Tregoney | £ 1,500,000 | 0.09 KM |
| Sandcliff | £ 750,000 | 0.09 KM |
| Highlands | £ 1,180,000 | 0.09 KM |
| Chalfont | £ 710,000 | 0.09 KM |
| 46 Wray Common Road | £ 705,000 | 0.21 KM |