Langmead Drive, Bideford, EX39
By Stowhill Estates Ltd
£ 950,000
Reviews
2 out of 5 stars
Stowhill Estates Ltd says ..
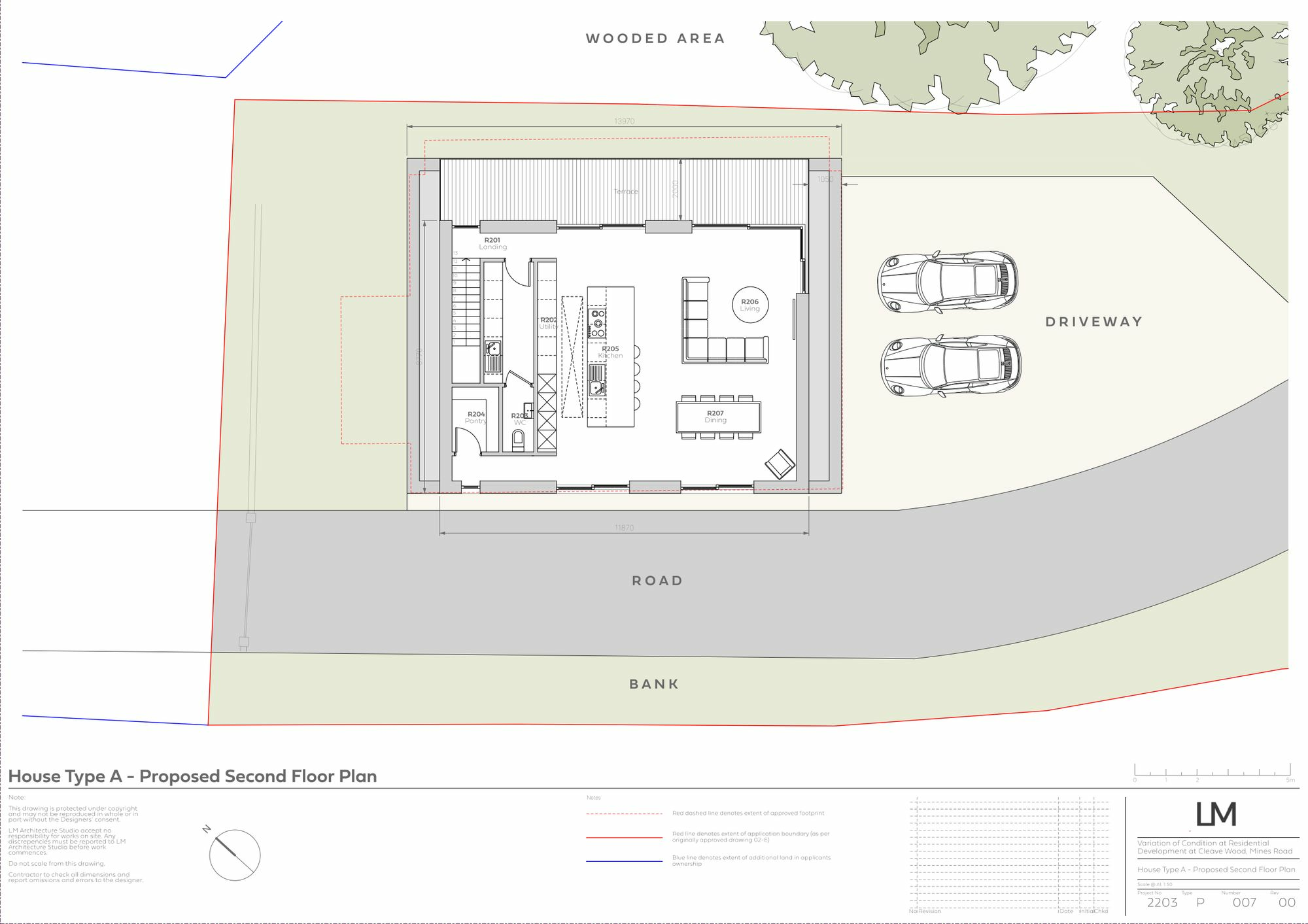
This is an exciting custom build opportunity offering a wide variety of external and internal options to meet your personal requirements. Cleave Wood is an exclusive gated development of just 13 homes surrounded by a peaceful woodland setting just on the outskirts of Bideford.
Property Oracle says ..
This property listing presents a new build or a property under construction located on Langmead Drive in Bideford, Devon. The architectural plans showcase a modern, two-story detached house. Key features appear to include multiple bedrooms and bathrooms, as well as a contemporary design. The property is situated in a peaceful woodland setting on the outskirts of Bideford. Nearby schools, including East-The-Water Community Primary School (rated ‘Good’ by Ofsted), offer educational amenities for families. While the location offers proximity to amenities and nature, there’s limited information available regarding transport and immediate neighborhood specifics. The current lack of detailed specifications and the absence of photographs of the finished property make complete and accurate evaluation challenging. The absence of information regarding the plot size could imply that the property does not have a substantial garden or land. It is important to note that other properties listed on Langmead Drive are significantly more expensive, raising questions about the pricing of this particular property.
Therefore, we give this property 5 / 10. *Disclaimer: This is our option and does constitute a recommendation or financial advice. Do your own research. *
- Price
- 7
- Condition
- 6
- Location
- 7
- Land
- 2
- Bedrooms
- 4
- Bathrooms
- 3
- Sqft (est)
- 1,687.46
The heatmap indicates the level of crime in the area. The color of the heatmap indicates the crime severity and recency.
Metrics Year-on-Year
- Average area value
- 309,173.00 £Increased by 7.80 %
- Est sale value
- 504,550.54 £Increased by 32.30 %
- Average area rental value
- 765.00 £/moDecreased by 21.22 %
- Est letting value
- 0.00 £/mo
- Est rental Yield
- 2.97 %Decreased by 26.85 %
- Crime Rate
- 0.00 %
Agent Activity
Stowhill Estates Ltd created the listing.
Nearby Schools
| Name | Type | Ofsted | Distance |
|---|---|---|---|
| East-The-Water Community Primary School | Community School | Good | 1.15 KM |
| Bideford Bay Children'S Centre | Children's Centre | 2.91 KM | |
| St Mary'S Church Of England Primary School | Voluntary Controlled School | Good | 3.08 KM |
| West Croft School | Community School | Requires improvement | 3.54 KM |
| Kingsley School | Other Independent School | 4.27 KM |
Images
Nearby Streets
| Name | Average Price | Average Sqft | Distance |
|---|---|---|---|
| Trent Close | £ 282,500 | 0 | 0.00 KM |
| North Avenue | £ 210,000 | 0 | 0.00 KM |
| South Avenue | £ 215,000 | 0 | 0.00 KM |
| Hillcrest Road | £ 301,225 | 0 | 0.00 KM |
| Fillablack Way | £ 0 | 0 | 0.00 KM |
Nearby Listings
| Address | Price | Type | Score | Distance |
|---|---|---|---|---|
| Cleave Wood, Langmead Drive, Bideford, EX39 | £ 250,000 | BUY | 7 / 10 | 0.00 KM |
| Cleave Wood, Langmead Drive, Bideford, EX39 | £ 250,000 | BUY | 6 / 10 | 0.00 KM |
| Cleave Wood, Langmead Drive, Bideford, EX39 | £ 250,000 | BUY | 7 / 10 | 0.00 KM |
| Langmead Drive, Bideford, EX39 | £ 950,000 | BUY | 5 / 10 | 0.00 KM |
| Langmead Drive, Bideford, EX39 | £ 1,350,000 | BUY | 6 / 10 | 0.00 KM |
Nearby Properties
| Address | Price | Distance |
|---|---|---|
| 10 Broadlands | £ 131,000 | 0.65 KM |
| 24 Broadlands | £ 132,000 | 0.65 KM |
| 3 Broadlands Court | £ 165,000 | 0.65 KM |
| 15 Broadlands | £ 138,000 | 0.65 KM |
| 26 Broadlands | £ 195,000 | 0.65 KM |