Pearsons says ..
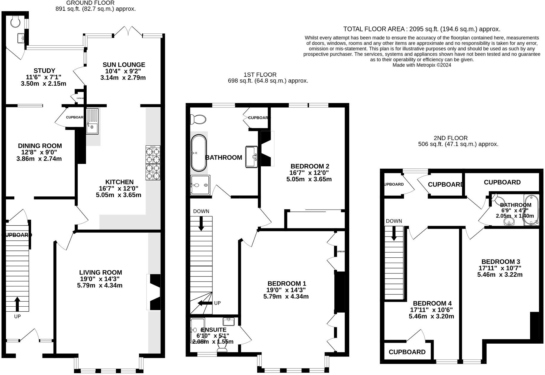
A rarely available four bedroom, three bathroom house with charm and elegance, almost hidden in the heart of Southsea. A striking front elevation with ornate square bay windows is screened from the road with a walled and gated entrance and front garden. The well-proportioned family home has accom...
Property Oracle says ..
This four-bedroom, three-bathroom property located on Grove Road South in Southsea, Portsmouth, presents itself as a charming family home. The property benefits from a desirable location within easy reach of Southsea’s amenities and transport links. The interior photographs showcase a recently updated kitchen, with modern appliances and fittings. The bathrooms are also presented in a good condition. The living areas are spacious and well-lit, suggesting a comfortable family living space. The property boasts attractive architectural features and enjoys a pleasant garden. However, some areas like the bathrooms, could benefit from further modernisation to bring them entirely in line with contemporary standards. There is a garden space to the rear of the property, which is an additional positive, but its size appears to be modest rather than extensive. The list price of £750,000 sits within the price range for similar properties on Grove Road South, making it appear reasonably priced, although a precise price per square foot analysis is not possible due to lack of data. Overall, this property offers buyers a solid family home in a desirable location, and while some potential for further improvements exists, it appears to be a good value property in a fantastic location.
Therefore, we give this property 6 / 10. *Disclaimer: This is our option and does constitute a recommendation or financial advice. Do your own research. *
- Price
- 7
- Condition
- 7
- Location
- 9
- Land
- 4
- Bedrooms
- 4
- Bathrooms
- 3
- Sqft (est)
- 2,095.00
The heatmap indicates the level of crime in the area. The color of the heatmap indicates the crime severity and recency.
Metrics Year-on-Year
- Average area value
- 190,742.00 £Decreased by 45.70 %
- Est sale value
- 756,295.00 £Decreased by 1.10 %
- Average area rental value
- 1,259.00 £/moDecreased by 5.12 %
- Est letting value
- 4,190.00 £/moIncreased by 100.00 %
- Est rental Yield
- 7.92 %Increased by 74.83 %
- Crime Rate
- 5.00 %Unchanged by 0.00 %
Agent Activity
Pearsons created the listing.
Nearby Schools
| Name | Type | Ofsted | Distance |
|---|---|---|---|
| St John'S College | Other Independent School | 0.18 KM | |
| Cottage Grove Primary School | Academy Converter | 0.40 KM | |
| Portsmouth High School | Other Independent School | 0.62 KM | |
| Ark Charter Academy | Academy Sponsor Led | Good | 0.98 KM |
| St Swithun'S Catholic Primary School | Voluntary Aided School | Good | 1.04 KM |
Images
Nearby Streets
| Name | Average Price | Average Sqft | Distance |
|---|---|---|---|
| St Judes Close | £ 1,095,000 | 0 | 0.00 KM |
| Queens Way | £ 0 | 0 | 0.00 KM |
| Worsley Road | £ 0 | 0 | 0.00 KM |
| Castle Close | £ 0 | 0 | 0.00 KM |
| Sussex Road | £ 0 | 0 | 0.00 KM |
Nearby Transport
| Name | NLC | TLC | Distance |
|---|---|---|---|
| Portsmouth And Southsea | 5537 | PMS | 1.27 KM |
| Fratton | 5509 | FTN | 1.85 KM |
| Portsmouth Harbour | 5540 | PMH | 2.43 KM |
| Hilsea | 5539 | HLS | 5.58 KM |
| Cosham | 5896 | CSA | 6.49 KM |
Nearby Listings
| Address | Price | Type | Score | Distance |
|---|---|---|---|---|
| Grove Road South, Southsea | £ 750,000 | BUY | 6 / 10 | 0.00 KM |
| Grove Road South, Southsea | £ 225,000 | BUY | 5 / 10 | 0.02 KM |
| Grove Road South, Southsea | £ 500,000 | BUY | Unknown | 0.02 KM |
| Grove Road South, Southsea | £ 350,000 | BUY | 6 / 10 | 0.02 KM |
| Grove Road South, Southsea | £ 350,000 | BUY | 6 / 10 | 0.02 KM |
Nearby Properties
| Address | Price | Distance |
|---|---|---|
| 3 Grove Road South | £ 750,000 | 0.01 KM |
| 11 Grove Road South | £ 925,000 | 0.01 KM |
| 5 Grove Road South | £ 600,000 | 0.01 KM |
| 2a Grove Road South | £ 212,500 | 0.07 KM |
| 2 Queens Grove | £ 75,000 | 0.10 KM |