Knightswood, 3 decent bedrooms, great conservatory
By Homeweb
£ 229,950
Reviews
3 out of 5 stars
Homeweb says ..
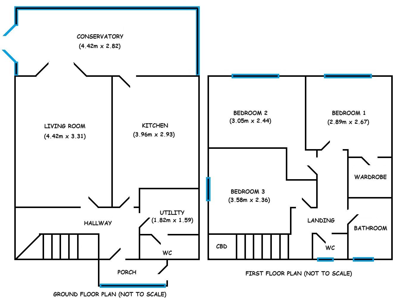
Good sized 3 bedroom staggered town house with the living room having a lovely conservatory extension added, super fitted kitchen with range cooker, separate utility room, cloakroom, 3 decent bedrooms with the master having a large walk in wardrobe and a reasonably sized garden as well.
Property Oracle says ..
This three-bedroom townhouse in Knightswood, Cullompton, is presented as a family-friendly property. The property includes a conservatory, a fitted kitchen and what seems to be a reasonably sized garden, and is described as having a separate utility room and cloakroom. The images suggest a generally well-maintained interior, although a lack of bathroom photos limits a complete assessment. The listing highlights its proximity to schools, which would be a considerable draw to families. However, the lack of specific plot size data and more detailed information on local amenities mean a complete and final assessment is difficult. The list price, while appearing reasonable in comparison to other nearby properties, could be better evaluated with more specific data on property sizes.
Therefore, we give this property 6 / 10. *Disclaimer: This is our option and does constitute a recommendation or financial advice. Do your own research. *
- Price
- 7
- Condition
- 6
- Location
- 7
- Land
- 4
- Bedrooms
- 3
- Bathrooms
- 0
- Sqft (est)
- 825.27
The heatmap indicates the level of crime in the area. The color of the heatmap indicates the crime severity and recency.
Metrics Year-on-Year
- Average area value
- 285,499.00 £Increased by 9.30 %
- Est sale value
- 298,747.74 £Increased by 32.12 %
- Average area rental value
- 1,116.00 £/moIncreased by 28.87 %
- Est letting value
- 825.27 £/mo
- Est rental Yield
- 4.69 %Increased by 17.84 %
- Crime Rate
- 13.00 %Unchanged by 0.00 %
Agent Activity
Homeweb created the listing.
Nearby Schools
| Name | Type | Ofsted | Distance |
|---|---|---|---|
| Cullompton Community College | Foundation School | Good | 0.31 KM |
| Willowbank Primary School | Academy Converter | 0.78 KM | |
| Culm Valley Children'S Centre | Children's Centre | 1.00 KM | |
| St Andrew'S Primary School | Academy Sponsor Led | Good | 1.01 KM |
| The Duchy School Bradninch | Academy Converter | Outstanding | 4.78 KM |
Images
Nearby Streets
| Name | Average Price | Average Sqft | Distance |
|---|---|---|---|
| Bowhill | £ 174,600 | 0 | 0.00 KM |
| Bowling Green View | £ 112,500 | 0 | 0.00 KM |
| Fulford Barnyard | £ 0 | 0 | 0.00 KM |
| Roberts Close | £ 300,000 | 0 | 0.00 KM |
| Hawthorn Close | £ 265,000 | 0 | 0.00 KM |
Nearby Transport
| Name | NLC | TLC | Distance |
|---|---|---|---|
| Tiverton Parkway | 3474 | TVP | 8.47 KM |
Nearby Listings
| Address | Price | Type | Score | Distance |
|---|---|---|---|---|
| Exeter Road, Cullompton, Devon, EX15 | £ 225,000 | BUY | 5 / 10 | 0.12 KM |
| Wheatfield Close, Cullompton, Devon, EX15 | £ 375,000 | BUY | 7 / 10 | 0.12 KM |
| Heyridge Meadow, Cullompton, EX15 | £ 220,000 | BUY | 6 / 10 | 0.14 KM |
| Wheatfield Close, Cullompton, EX15 1RR | £ 425,000 | BUY | 7 / 10 | 0.16 KM |
| Heyridge Meadow, Cullompton, EX15 1FD | £ 200,000 | BUY | 7 / 10 | 0.17 KM |
Nearby Properties
| Address | Price | Distance |
|---|---|---|
| 4 Knightswood | £ 225,000 | 0.08 KM |
| 12 Knightswood | £ 131,500 | 0.08 KM |
| 20 Knightswood | £ 195,000 | 0.08 KM |
| 24 Knightswood | £ 195,000 | 0.08 KM |
| 56 Knightswood | £ 180,000 | 0.08 KM |