Kenbury Close, Ickenham, Uxbridge, UB10
By Kearns Residential
£ 725,000
Reviews
3 out of 5 stars
Kearns Residential says ..
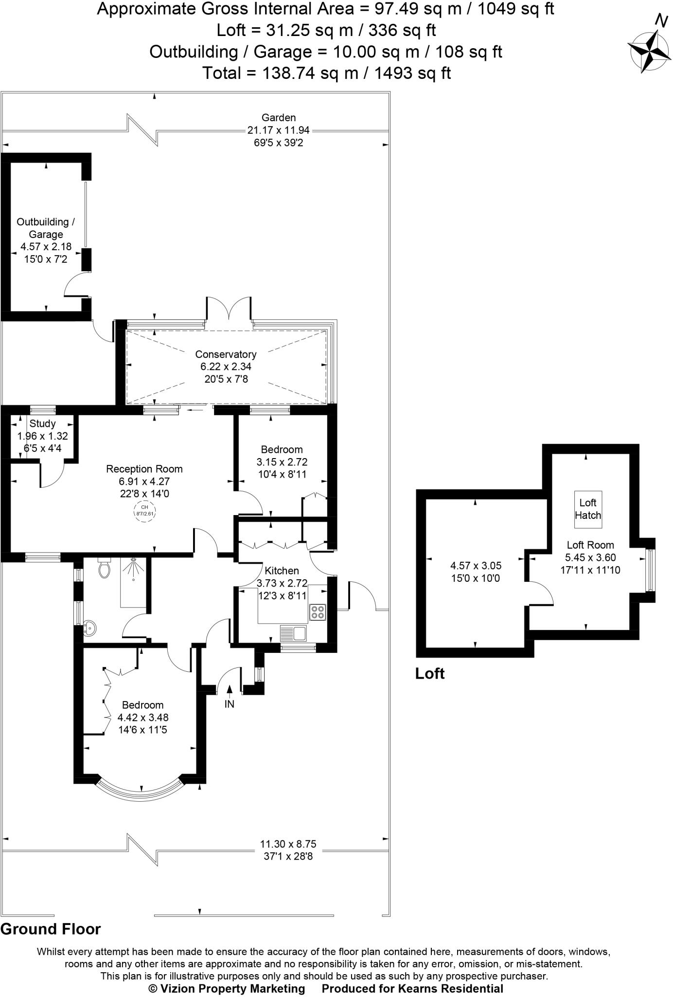
Kearns Residential is delighted to present this charming detached two-bedroom bungalow, ideally situated on the peaceful Kenbury Close in Ickenham. Located within easy walking distance of Ickenham High Street and tube station, this property offers exceptional convenience while maintain...
Property Oracle says ..
This two-bedroom bungalow is located on Kenbury Close in Ickenham, Uxbridge. The property is listed for £725,000.
From the images, the property appears to be in a traditional style and may benefit from some modernisation. The kitchen looks dated, and some of the interior decor could use updating. However, the bathroom looks to have been modernised.
The property benefits from a rear garden and a garage.
Ickenham is a suburban area in the London Borough of Hillingdon, with convenient access to local schools and transportation options, including West Ruislip station (London Underground). The average price in the area is £369,789, with an average price per square foot of £360. Nearby streets, such as The Mead and Windrush Close, have average property prices in the £900,000 range.
Therefore, we give this property 6 / 10. *Disclaimer: This is our option and does constitute a recommendation or financial advice. Do your own research. *
- Price
- 6
- Condition
- 6
- Location
- 7
- Land
- 7
- Bedrooms
- 2
- Bathrooms
- 0
The heatmap indicates the level of crime in the area. The color of the heatmap indicates the crime severity and recency.
Metrics Year-on-Year
- Average area value
- 845,563.00 £Decreased by 7.05 %
- Average area rental value
- 2,280.00 £/moDecreased by 28.32 %
- Est rental Yield
- 3.24 %Decreased by 22.86 %
- Crime Rate
- 3.00 %Unchanged by 0.00 %
Agent Activity
Kearns Residential created the listing.
Nearby Schools
| Name | Type | Ofsted | Distance |
|---|---|---|---|
| The Breakspear School | Community School | Good | 0.51 KM |
| Vyners School | Academy Converter | Outstanding | 1.22 KM |
| The Douay Martyrs Catholic School | Academy Converter | Good | 1.49 KM |
| Pentland Field School | Free Schools Special | Good | 1.78 KM |
| Whiteheath Infant & Nursery School | Community School | Good | 2.22 KM |
Images
Nearby Streets
| Name | Average Price | Average Sqft | Distance |
|---|---|---|---|
| The Mead | £ 940,000 | 0 | 0.00 KM |
| Bushey Close | £ 0 | 0 | 0.00 KM |
| Farm Close | £ 570,000 | 0 | 0.00 KM |
| U48 | £ 0 | 0 | 0.00 KM |
| Windrush Close | £ 900,000 | 0 | 0.00 KM |
Nearby Transport
| Name | NLC | TLC | Distance |
|---|---|---|---|
| West Ruislip | 3059 | WRU | 1.96 KM |
| Denham | 3052 | DNM | 4.84 KM |
| South Ruislip | 3057 | SRU | 6.29 KM |
| West Drayton | 3174 | WDT | 6.62 KM |
| Denham Golf Club | 3060 | DGC | 7.08 KM |
Nearby Listings
| Address | Price | Type | Score | Distance |
|---|---|---|---|---|
| Kenbury Close, Ickenham, Uxbridge, UB10 | £ 725,000 | BUY | 6 / 10 | 0.00 KM |
| Kenbury Close, Ickenham, UB10 | £ 775,000 | BUY | 7 / 10 | 0.03 KM |
| Derwent Avenue, Ickenham, UB10 | £ 900,000 | BUY | 7 / 10 | 0.05 KM |
| Elgar Close, Ickenham, UB10 | £ 685,000 | BUY | 5 / 10 | 0.09 KM |
| Derwent Avenue, Ickenham, Uxbridge | £ 600,000 | BUY | Unknown | 0.13 KM |
Nearby Properties
| Address | Price | Distance |
|---|---|---|
| 4 Kenbury Close | £ 450,000 | 0.09 KM |
| 23 Kenbury Close | £ 420,000 | 0.09 KM |
| 17 Kenbury Close | £ 349,000 | 0.09 KM |
| 6 Kenbury Close | £ 470,000 | 0.09 KM |
| 14 Kenbury Close | £ 625,000 | 0.09 KM |