Redferns says ..
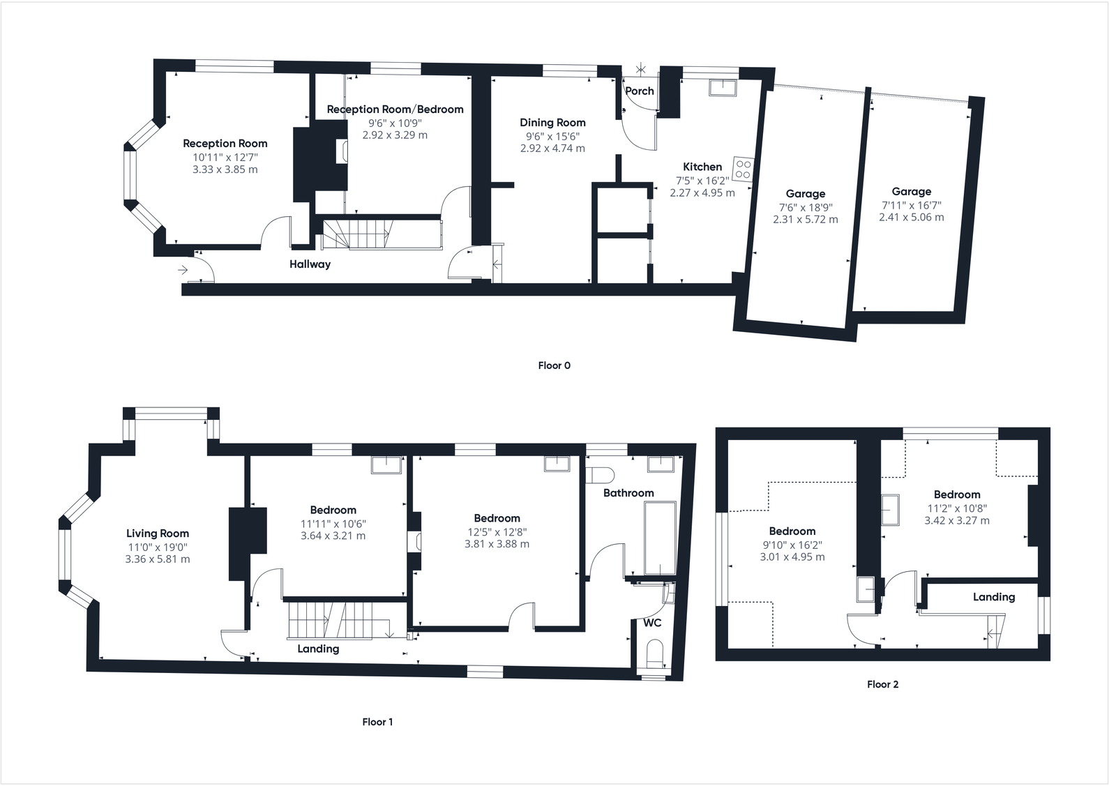
TO BE SOLD BY TRADITIONAL ONLINE AUCTION - AUCTION DATE TBC. A deceptively sized end of terrace house with a double garage and, an adjoining parcel of land ready for refurbishment and repair. The property is situated in an excellent position close to the heart of Sidmouth Town centre and only 150...
Property Oracle says ..
This property is a semi-detached house located in Sidmouth, East Devon. It has 5 bedrooms and 1 bathroom, and is in need of significant renovation. The property benefits from a garage and a small garden, though the overall condition suggests a substantial amount of work is required. While the location in Sidmouth is desirable, the property’s condition significantly impacts its value. The list price of £330,000 is above the average price per square foot for the area, which could be justified if the property were in good condition. However, given the extensive renovation needed, the price may be considered high.
Therefore, we give this property 4 / 10. *Disclaimer: This is our option and does constitute a recommendation or financial advice. Do your own research. *
- Price
- 4
- Condition
- 3
- Location
- 8
- Land
- 4
- Bedrooms
- 5
- Bathrooms
- 1
- Sqft (est)
- 1,889.07
The heatmap indicates the level of crime in the area. The color of the heatmap indicates the crime severity and recency.
Metrics Year-on-Year
- Average area value
- 369,988.00 £Decreased by 30.48 %
- Est sale value
- 1,294,012.95 £Increased by 49.56 %
- Average area rental value
- 1,400.00 £/moIncreased by 12.27 %
- Est letting value
- 3,778.14 £/moIncreased by 100.00 %
- Est rental Yield
- 4.54 %Increased by 61.57 %
- Crime Rate
- 28.00 %Unchanged by 0.00 %
Agent Activity
Redferns created the listing.
Nearby Schools
| Name | Type | Ofsted | Distance |
|---|---|---|---|
| St John'S School | Other Independent School | 1.79 KM | |
| Sidmouth Church Of England (Va) Primary School | Academy Converter | Good | 1.80 KM |
| Sidmouth College | Community School | Good | 1.93 KM |
| Sidmouth Children'S Centre | Children's Centre | 2.35 KM | |
| Sidbury Church Of England Primary School | Academy Converter | Good | 4.66 KM |
Images
Nearby Streets
| Name | Average Price | Average Sqft | Distance |
|---|---|---|---|
| Riverside Road | £ 305,000 | 0 | 0.00 KM |
| Milford Road | £ 950,000 | 0 | 0.00 KM |
| Milford Road | £ 575,000 | 0 | 0.00 KM |
| New Street | £ 0 | 0 | 0.00 KM |
| Kings Lane | £ 280,000 | 0 | 0.00 KM |
Nearby Listings
| Address | Price | Type | Score | Distance |
|---|---|---|---|---|
| Riverside, Sidmouth | £ 330,000 | BUY | 4 / 10 | 0.00 KM |
| York Street, Sidmouth | £ 425,000 | BUY | 5 / 10 | 0.05 KM |
| York Street, Sidmouth | £ 265,000 | BUY | 6 / 10 | 0.05 KM |
| York Street, Sidmouth | £ 260,000 | BUY | 7 / 10 | 0.07 KM |
| York Street, Sidmouth | £ 250,000 | BUY | 5 / 10 | 0.10 KM |
Nearby Properties
| Address | Price | Distance |
|---|---|---|
| 4 Cecil Terrace | £ 235,000 | 0.03 KM |
| 3 Cecil Terrace | £ 251,000 | 0.03 KM |
| 2 Cecil Terrace | £ 248,118 | 0.03 KM |
| 7 Glenisla Terrace | £ 290,000 | 0.04 KM |
| 1 Glenisla Terrace | £ 335,000 | 0.04 KM |