Bowland Close, Paignton
By Taylors (Torbay) Ltd
£ 269,950
Reviews
3 out of 5 stars
Taylors (Torbay) Ltd says ..
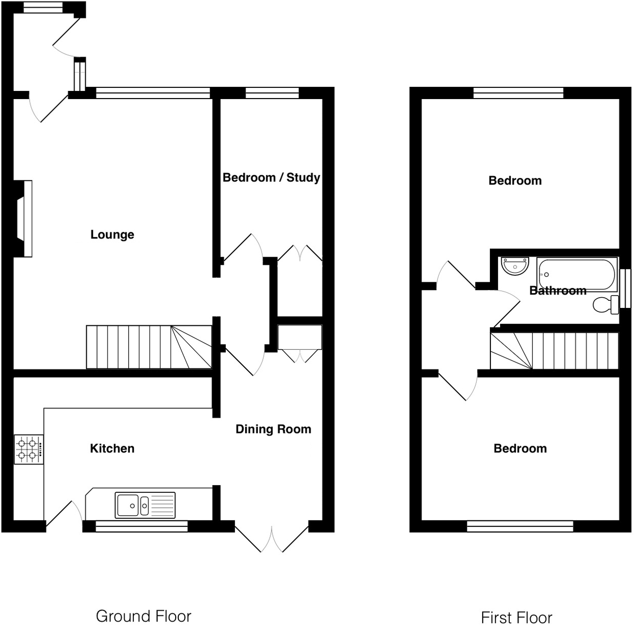
A spacious three bedroom semi detached family home located within a quiet cul-de-sac in the sought after location of Roselands, Paignton. The property comprises of a welcoming entryway, a large living room, a modern kitchen/diner, three double bedrooms, a family bathroom, large sunny gardens a...
Property Oracle says ..
This three-bedroom semi-detached house in Paignton’s Roselands area presents a comfortable family home. The property’s most appealing aspect is its location; Roselands is a popular residential area appreciated for its family-friendly atmosphere. The proximity of good primary schools, Roselands Primary and White Rock Primary, within walking distance, adds to its desirability. The property’s interior shows signs of recent updates; particularly the kitchen is a modern and functional space. The main living space looks spacious. However, the exterior of the house, while not in disrepair, exhibits a somewhat dated aesthetic. This is echoed by the garden, where while space exists, some elements, like the decking, appear to need some maintenance or repairs. The garden space is adequate but not particularly substantial, and again would likely require some effort to fully utilise. The property’s asking price is in line with local market trends for similar properties in the area, making it a relatively reasonable proposition within the current market conditions, although not necessarily exceptional value.
Therefore, we give this property 6 / 10. *Disclaimer: This is our option and does constitute a recommendation or financial advice. Do your own research. *
- Price
- 7
- Condition
- 6
- Location
- 7
- Land
- 5
- Bedrooms
- 3
- Bathrooms
- 1
- Sqft (est)
- 780.00
The heatmap indicates the level of crime in the area. The color of the heatmap indicates the crime severity and recency.
Metrics Year-on-Year
- Average area value
- 277,075.00 £Decreased by 13.22 %
- Est sale value
- 241,020.00 £Decreased by 4.04 %
- Average area rental value
- 1,317.00 £/moIncreased by 38.63 %
- Est letting value
- 780.00 £/mo
- Est rental Yield
- 5.70 %Increased by 59.66 %
- Crime Rate
- 1.00 %Unchanged by 0.00 %
Agent Activity
Taylors (Torbay) Ltd created the listing.
Nearby Schools
| Name | Type | Ofsted | Distance |
|---|---|---|---|
| Roselands Primary School | Academy Converter | Good | 0.50 KM |
| White Rock Primary School | Foundation School | Good | 0.70 KM |
| South Devon College | Further Education | Good | 1.17 KM |
| Hayes School | Academy Converter | Good | 1.47 KM |
| Paignton Academy | Academy Converter | Good | 1.78 KM |
Images
Nearby Streets
| Name | Average Price | Average Sqft | Distance |
|---|---|---|---|
| Furness Close | £ 292,475 | 0 | 0.00 KM |
| Lynmouth Avenue | £ 380,000 | 0 | 0.00 KM |
| Castle Park Close | £ 440,000 | 0 | 0.00 KM |
| Perennial Crescent | £ 0 | 0 | 0.00 KM |
| Pasture Drive | £ 0 | 0 | 0.00 KM |
Nearby Transport
| Name | NLC | TLC | Distance |
|---|---|---|---|
| Paignton | 3427 | PGN | 2.46 KM |
| Torquay | 3434 | TQY | 6.23 KM |
| Torre | 3432 | TRR | 7.17 KM |
Nearby Listings
| Address | Price | Type | Score | Distance |
|---|---|---|---|---|
| Bowland Close, Paignton | £ 269,950 | BUY | 6 / 10 | 0.00 KM |
| Bowland Close, Paignton | £ 220,000 | BUY | 6 / 10 | 0.01 KM |
| Lancaster Drive, Roselands, Paignton | £ 330,000 | BUY | 6 / 10 | 0.14 KM |
| Roselands Drive, Roselands, Paignton | £ 305,000 | BUY | 7 / 10 | 0.14 KM |
| Roselands Drive, Paignton, Torbay | £ 400,000 | BUY | 6 / 10 | 0.14 KM |
Nearby Properties
| Address | Price | Distance |
|---|---|---|
| 4 Bowland Close | £ 208,000 | 0.01 KM |
| 12 Bowland Close | £ 50,000 | 0.01 KM |
| 1 Bowland Close | £ 119,950 | 0.01 KM |
| 7 Bowland Close | £ 185,000 | 0.01 KM |
| 9 Bowland Close | £ 170,000 | 0.01 KM |