Derby Street, Colne, Lancashire, BB8
By McGowan Housing
£ 100,000
Reviews
2 out of 5 stars
McGowan Housing says ..
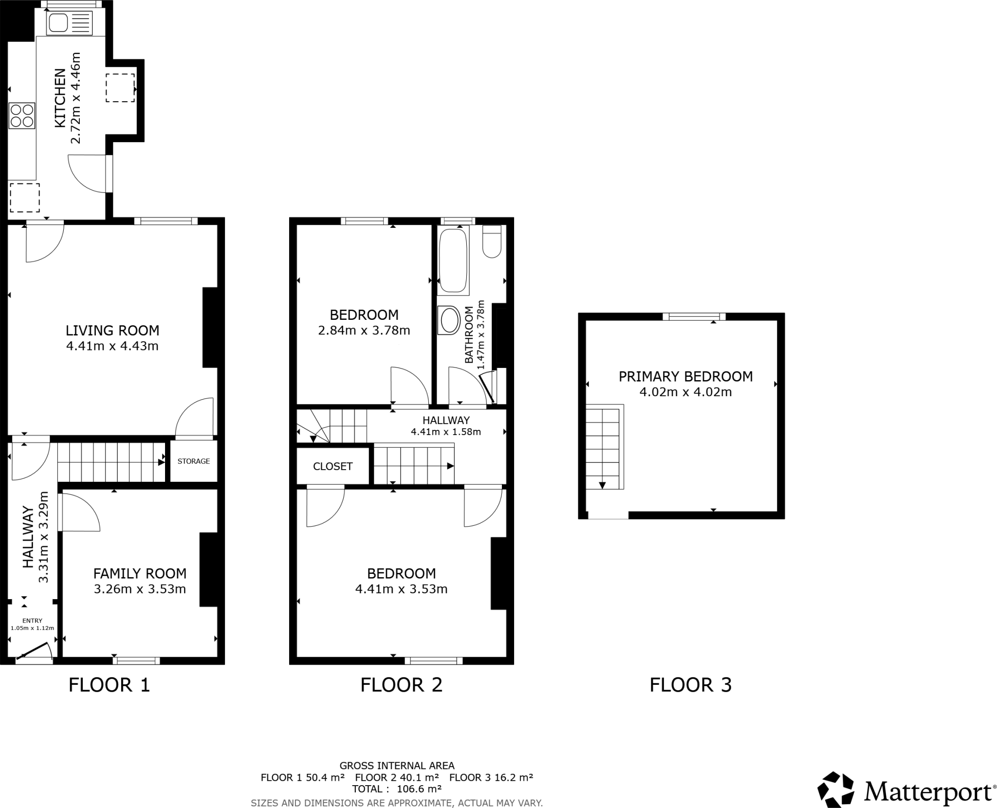
Buy-to-Let Opportunity | Long Term Tenant Currently Situated | 3 Bedroom Mid Terrace House | Bathroom | Spacious Lounge | Prime Rental Location Within Colne
Property Oracle says ..
This is a three-bedroom terraced property located on Derby Street, in Colne, Lancashire. The property is within walking distance of local schools and Colne train station. The property is in need of some renovation, but it is priced reasonably.
Therefore, we give this property 5 / 10. *Disclaimer: This is our option and does constitute a recommendation or financial advice. Do your own research. *
- Price
- 7
- Condition
- 4
- Location
- 6
- Land
- 3
- Bedrooms
- 3
- Bathrooms
- 1
- Sqft (est)
- 332.07
The heatmap indicates the level of crime in the area. The color of the heatmap indicates the crime severity and recency.
Metrics Year-on-Year
- Average area value
- 262,475.00 £Increased by 52.59 %
- Est sale value
- 96,632.37 £Increased by 95.30 %
- Average area rental value
- 950.00 £/moIncreased by 33.05 %
- Est letting value
- 332.07 £/mo
- Est rental Yield
- 4.34 %Decreased by 12.85 %
- Crime Rate
- 20.00 %Unchanged by 0.00 %
Agent Activity
McGowan Housing created the listing.
Nearby Schools
| Name | Type | Ofsted | Distance |
|---|---|---|---|
| Colne Children'S Centre | Children's Centre | 0.40 KM | |
| Colne Lord Street School | Academy Converter | 0.51 KM | |
| West Street Community Primary School | Community School | Good | 0.72 KM |
| Sacred Heart Roman Catholic Primary School, Colne | Voluntary Aided School | Good | 1.01 KM |
| The Nook School | Other Independent School | Good | 1.16 KM |
Images
Nearby Streets
| Name | Average Price | Average Sqft | Distance |
|---|---|---|---|
| Bond Street | £ 0 | 0 | 0.00 KM |
| Birtwistle Hyde Park | £ 0 | 0 | 0.00 KM |
| Chapel Street | £ 0 | 0 | 0.00 KM |
| Back Duke Street | £ 0 | 0 | 0.00 KM |
| Rook Street | £ 110,000 | 0 | 0.00 KM |
Nearby Transport
| Name | NLC | TLC | Distance |
|---|---|---|---|
| Colne | 2562 | CNE | 0.95 KM |
| Nelson | 2565 | NEL | 5.07 KM |
| Brierfield | 2554 | BRF | 7.86 KM |
Nearby Listings
| Address | Price | Type | Score | Distance |
|---|---|---|---|---|
| Derby Street, Colne, Lancashire, BB8 | £ 100,000 | BUY | 5 / 10 | 0.00 KM |
| Derby Street, Colne, BB8 | £ 110,000 | BUY | 5 / 10 | 0.01 KM |
| Derby Street, Colne | £ 101,950 | BUY | 5 / 10 | 0.02 KM |
| Spring Lane, Colne, Lancashire, BB8 | £ 100,000 | BUY | 6 / 10 | 0.04 KM |
| Derby Street, Colne | £ 75,000 | BUY | 4 / 10 | 0.04 KM |
Nearby Properties
| Address | Price | Distance |
|---|---|---|
| 24 Derby Street | £ 72,500 | 0.00 KM |
| 8 Derby Street | £ 58,500 | 0.00 KM |
| 43 Derby Street | £ 82,500 | 0.00 KM |
| 35 Derby Street | £ 80,000 | 0.00 KM |
| 47 Derby Street | £ 100,000 | 0.00 KM |