Bettermove says ..
A SPACIOUS house in Axminster, available VACANT for IMMEDIATE possession and CHAIN FREE. Call to enquire! Bettermove are proud to present this 3 bedroom semi-detached house in Axminster available with no forward chain.The property benefits from double glazing, gas central he...
Property Oracle says ..
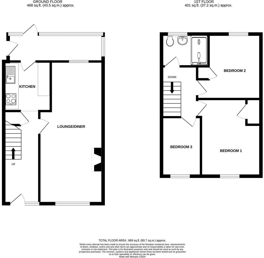
This 3-bedroom semi-detached house in Axminster, East Devon, is listed at £224,000. The property is situated in Woodbury Park, and benefits from being close to Axminster train station (0.53km). There are also several primary schools within a reasonable distance, including St Mary’s Catholic Primary School (1.17km), Axe Valley Academy (1.19km), and Axminster Community Primary Academy (1.40km). The house itself has a dated interior requiring some modernisation. The kitchen and bathroom appear functional but are in need of updating. The flooring and wallpaper are also dated. The property features a garden with a pond and shed, offering potential for outdoor enjoyment. However, the garden also appears to require some maintenance. Compared to the average house price in the area (£309,446) and average price per sqft (£163), the listed price of £224,000 for this 800 sqft property seems relatively reasonable, especially considering its condition and the need for modernisation. However, nearby comparable properties show some variation in pricing, suggesting further market research is advised.
Therefore, we give this property 6 / 10. *Disclaimer: This is our option and does constitute a recommendation or financial advice. Do your own research. *
- Price
- 7
- Condition
- 5
- Location
- 7
- Land
- 6
- Bedrooms
- 3
- Bathrooms
- 1
- Sqft (est)
- 800.00
- Lot (est)
- 869.00
The heatmap indicates the level of crime in the area. The color of the heatmap indicates the crime severity and recency.
Metrics Year-on-Year
- Average area value
- 409,094.00 £Increased by 31.35 %
- Est sale value
- 275,200.00 £Increased by 41.56 %
- Average area rental value
- 1,235.00 £/moIncreased by 34.24 %
- Est letting value
- 800.00 £/mo
- Est rental Yield
- 3.62 %Increased by 2.26 %
- Crime Rate
- 20.00 %Unchanged by 0.00 %
Agent Activity
Bettermove created the listing.
Nearby Schools
| Name | Type | Ofsted | Distance |
|---|---|---|---|
| St Mary'S Catholic Primary School, Axminster | Academy Converter | Good | 1.17 KM |
| Axe Valley Academy | Academy Sponsor Led | Requires improvement | 1.19 KM |
| Axminster Community Primary Academy | Academy Converter | Good | 1.40 KM |
| Kilmington Primary School | Community School | Outstanding | 3.39 KM |
| All Saints Church Of England Primary School | Academy Converter | Good | 3.74 KM |
Images
Nearby Streets
| Name | Average Price | Average Sqft | Distance |
|---|---|---|---|
| King Edward Road | £ 337,500 | 0 | 0.00 KM |
| Norman Close | £ 0 | 0 | 0.00 KM |
| Pig Lane | £ 0 | 0 | 0.00 KM |
| Trill Lane | £ 0 | 0 | 0.00 KM |
Nearby Transport
| Name | NLC | TLC | Distance |
|---|---|---|---|
| Axminster | 5714 | AXM | 0.53 KM |
Nearby Listings
| Address | Price | Type | Score | Distance |
|---|---|---|---|---|
| Woodbury Park, Axminster, EX13 | £ 224,000 | BUY | 6 / 10 | 0.00 KM |
| Woodbury Park, Axminster | £ 250,000 | BUY | 7 / 10 | 0.12 KM |
| Dukes Way, Axminster | £ 350,000 | BUY | 6 / 10 | 0.15 KM |
| Woodbury Park, Axminster, Devon | £ 275,000 | BUY | 7 / 10 | 0.15 KM |
| Musbury Road, Axminster | £ 450,000 | BUY | 7 / 10 | 0.17 KM |
Nearby Properties
| Address | Price | Distance |
|---|---|---|
| 66 Woodbury Park | £ 172,000 | 0.00 KM |
| 72 Woodbury Park | £ 248,000 | 0.00 KM |
| 80 Woodbury Park | £ 224,000 | 0.00 KM |
| 69 Woodbury Park | £ 200,000 | 0.00 KM |
| 82 Woodbury Park | £ 130,000 | 0.01 KM |