Ashtons Estate Agents says ..
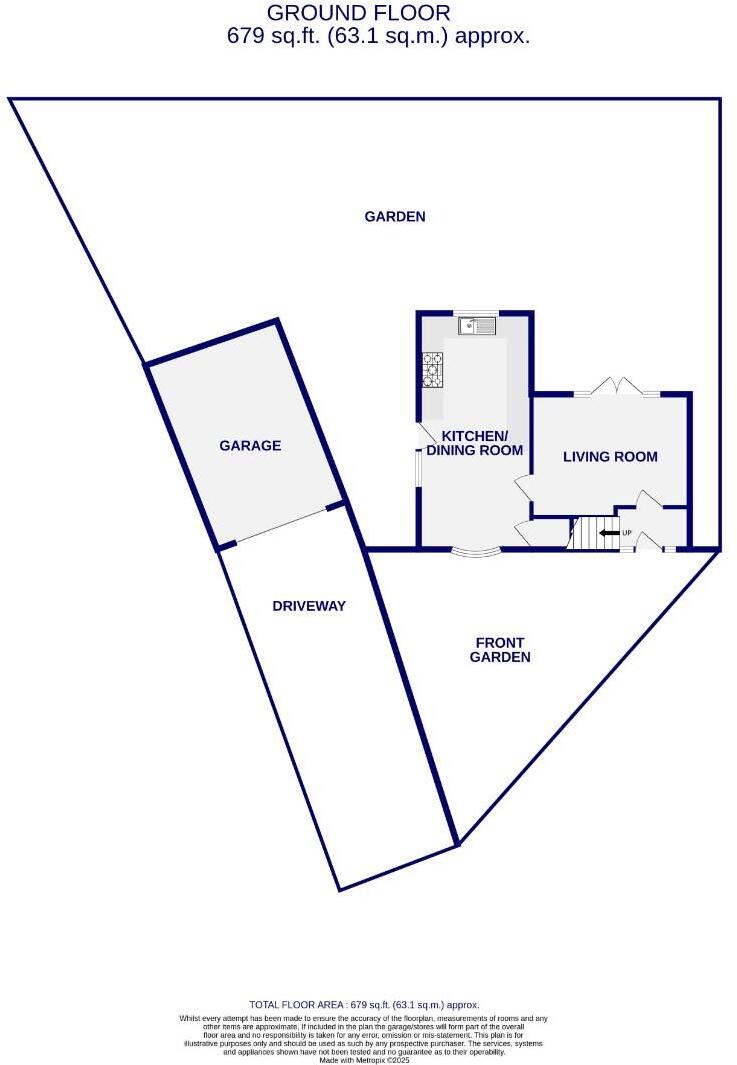
Located in the sought after residential area of Rawcliffe, to the north of York, is this beautifully presented detached family home. Tucked away at the head of a quiet cul-de-sac and set on a larger than expected plot, this property is ideal for growing families, thanks to its proximity to a rang...
Property Oracle says ..
Therefore, we give this property 7 / 10. *Disclaimer: This is our option and does constitute a recommendation or financial advice. Do your own research. *
- Price
- 8
- Condition
- 8
- Location
- 7
- Land
- 7
- Bedrooms
- 3
- Bathrooms
- 2
- Sqft (est)
- 741.78
The heatmap indicates the level of crime in the area. The color of the heatmap indicates the crime severity and recency.
Metrics Year-on-Year
- Average area value
- 591,875.00 £Increased by 5.13 %
- Est sale value
- 353,829.06 £Decreased by 6.47 %
- Average area rental value
- 1,194.00 £/moDecreased by 3.63 %
- Est letting value
- 0.00 £/moDecreased by 100.00 %
- Est rental Yield
- 2.42 %Decreased by 8.33 %
- Crime Rate
- 5.00 %Unchanged by 0.00 %
from 562,987.00 £
from 378,307.80 £
from 1,239.00 £/mo
from 741.78 £/mo
from 2.64 %
from 5.00 %
Agent Activity
Ashtons Estate Agents created the listing.
Nearby Schools
| Name | Type | Ofsted | Distance |
|---|---|---|---|
| Clifton With Rawcliffe Primary School | Academy Converter | Good | 0.54 KM |
| Lakeside Primary Academy | Academy Converter | 0.66 KM | |
| Vale Of York Academy | Academy Sponsor Led | Good | 0.81 KM |
| Clifton Children'S Centre | Children's Centre | 1.71 KM | |
| Burton Green Primary School | Academy Converter | Good | 1.78 KM |
Images
Nearby Streets
| Name | Average Price | Average Sqft | Distance |
|---|---|---|---|
| Devonshire Court | £ 0 | 0 | 0.00 KM |
| Fairway | £ 0 | 0 | 0.00 KM |
| Miller Road | £ 300,000 | 0 | 0.00 KM |
| Coniston Close | £ 330,000 | 0 | 0.00 KM |
| Hurricane Way | £ 0 | 0 | 0.00 KM |
Nearby Transport
| Name | NLC | TLC | Distance |
|---|---|---|---|
| York | 8263 | YRK | 2.91 KM |
| Poppleton | 8254 | POP | 4.65 KM |
Nearby Listings
| Address | Price | Type | Score | Distance |
|---|---|---|---|---|
| Chelkar Way, York | £ 385,000 | BUY | 7 / 10 | 0.00 KM |
| Grasmere Grove, York | £ 295,000 | BUY | 5 / 10 | 0.09 KM |
| Eastholme Drive, York | £ 600,000 | BUY | 6 / 10 | 0.10 KM |
| Grasmere Grove, York | £ 280,000 | BUY | 6 / 10 | 0.14 KM |
| Byron Drive, Rawcliffe | £ 345,000 | BUY | 6 / 10 | 0.16 KM |
Nearby Properties
| Address | Price | Distance |
|---|---|---|
| 2 Eastholme Drive | £ 277,500 | 0.10 KM |
| 14 Eastholme Drive | £ 180,000 | 0.10 KM |
| 5 Barden Court | £ 170,000 | 0.10 KM |
| 3 Barden Court | £ 245,000 | 0.10 KM |
| 4 Barden Court | £ 162,000 | 0.10 KM |