Devonshire Avenue, Roundhay, Leeds
By Propertynest
£ 595,000
Reviews
3 out of 5 stars
Propertynest says ..
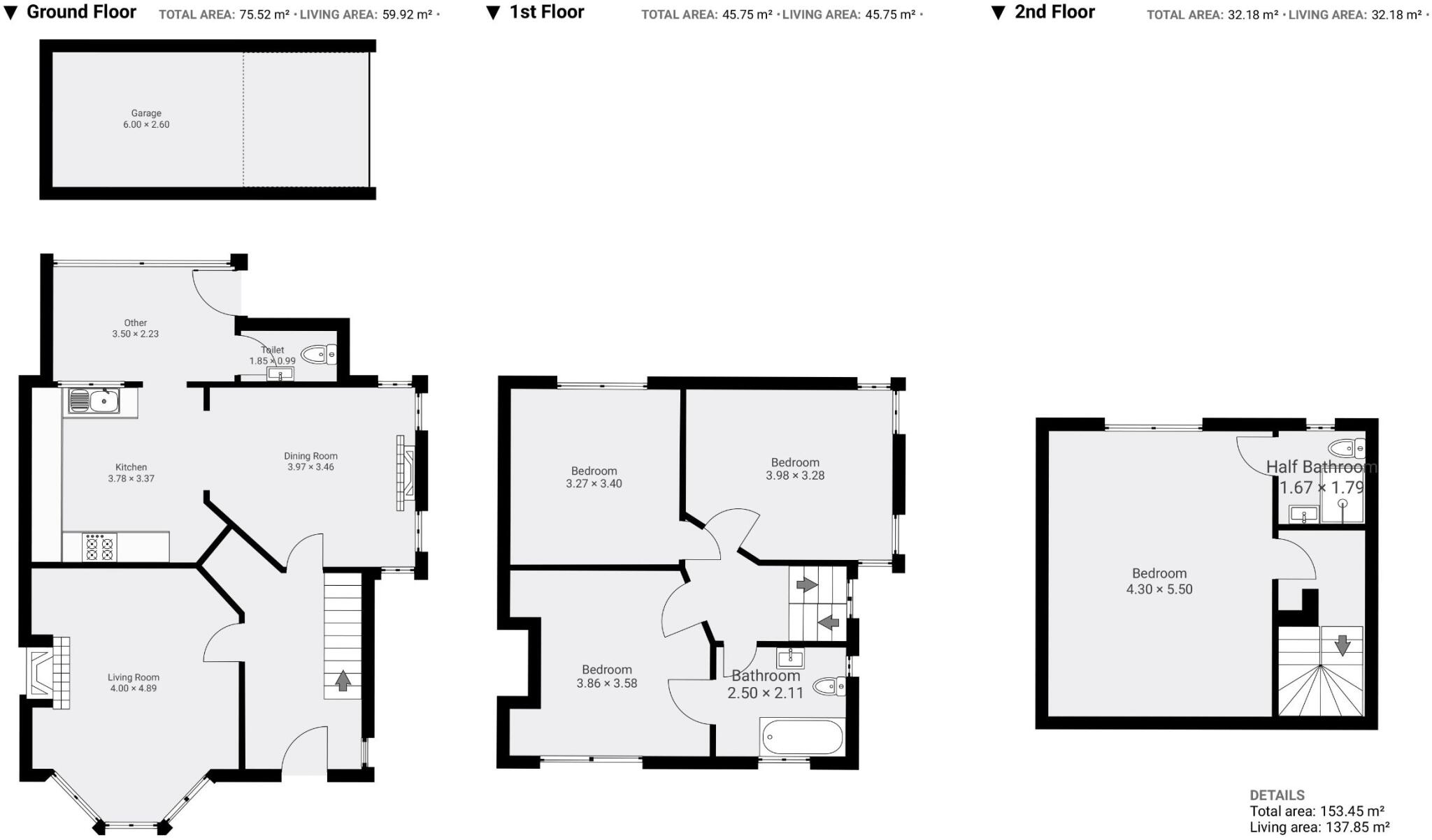
Spacious and stylish 4 double bedroom semi detached home with brand new dormer extension, on Devonshire Avenue in central Roundhay.
Property Oracle says ..
This is a 4-bedroom semi-detached house in Roundhay, Leeds. The property benefits from a modern interior, a well-maintained garden, and proximity to good schools and transportation links. The house includes two bathrooms, a modern kitchen, and a conservatory. The location is ideal for families seeking a balance between suburban tranquility and access to city amenities. The price seems high compared to the average in the area, but this could be due to the condition of the property.
Therefore, we give this property 7 / 10. *Disclaimer: This is our option and does constitute a recommendation or financial advice. Do your own research. *
- Price
- 6
- Condition
- 8
- Location
- 8
- Land
- 7
- Bedrooms
- 4
- Bathrooms
- 2
The heatmap indicates the level of crime in the area. The color of the heatmap indicates the crime severity and recency.
Metrics Year-on-Year
- Average area value
- 428,500.00 £Increased by 0.70 %
- Average area rental value
- 977.00 £/moDecreased by 11.74 %
- Est rental Yield
- 2.74 %Decreased by 12.18 %
- Crime Rate
- 6.00 %Unchanged by 0.00 %
Agent Activity
Propertynest created the listing.
Nearby Schools
| Name | Type | Ofsted | Distance |
|---|---|---|---|
| Talbot Primary School | Community School | Good | 0.46 KM |
| Moor Allerton Hall Primary School | Community School | Good | 1.18 KM |
| Allerton Grange School | Community School | Good | 1.23 KM |
| Roundhay School | Community School | Outstanding | 1.45 KM |
| Gledhow Primary School | Community School | Good | 1.45 KM |
Images
Nearby Streets
| Name | Average Price | Average Sqft | Distance |
|---|---|---|---|
| Back Shaftesbury Avenue | £ 0 | 0 | 0.00 KM |
| West Park Drive (West) | £ 465,000 | 0 | 0.00 KM |
| Denton Grove | £ 0 | 0 | 0.00 KM |
| Southfield Avenue | £ 650,000 | 0 | 0.00 KM |
| Larkhill Road | £ 0 | 0 | 0.00 KM |
Nearby Transport
| Name | NLC | TLC | Distance |
|---|---|---|---|
| Leeds | 8487 | LDS | 6.50 KM |
| Burley Park | 8500 | BUY | 7.92 KM |
| Cross Gates | 8473 | CRG | 7.99 KM |
| Headingley | 8498 | HDY | 9.37 KM |
Nearby Listings
| Address | Price | Type | Score | Distance |
|---|---|---|---|---|
| Devonshire Avenue, Roundhay, Leeds | £ 595,000 | BUY | 7 / 10 | 0.00 KM |
| Devonshire Grange, Devonshire Avenue, Roundhay, Leeds, LS8 1AN | £ 380,000 | BUY | 7 / 10 | 0.03 KM |
| Sutherland Crescent, Roundhay, Leeds | £ 750,000 | BUY | 7 / 10 | 0.05 KM |
| Sutherland Crescent, Roundhay, Leeds | £ 575,000 | BUY | 7 / 10 | 0.06 KM |
| Devonshire Grange, Devonshire Avenue, Roundhay, Leeds, LS8 1AN | £ 200,000 | BUY | 6 / 10 | 0.10 KM |
Nearby Properties
| Address | Price | Distance |
|---|---|---|
| 57 Devonshire Avenue | £ 350,000 | 0.01 KM |
| 53 Devonshire Avenue | £ 246,950 | 0.01 KM |
| 59 Devonshire Avenue | £ 122,500 | 0.01 KM |
| 73 Devonshire Avenue | £ 310,000 | 0.01 KM |
| 51 Devonshire Avenue | £ 335,000 | 0.01 KM |