Joyford Close, Skelmersdale, WN8
By Arnold & Phillips
£ 62,500
Reviews
3 out of 5 stars
Arnold & Phillips says ..
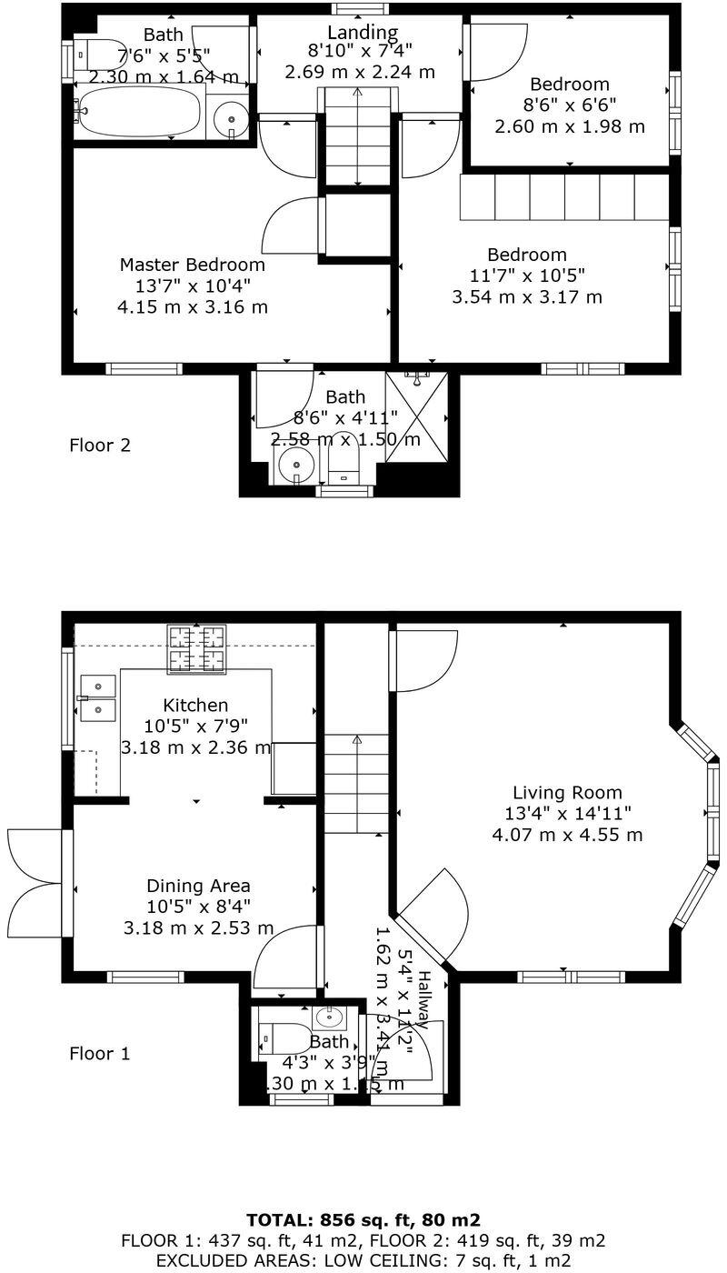
Arnold & Phillips are pleased to offer this exciting opportunity to acquire a 25% share of an outstanding three-bedroom detached property, attractively located on the popular Joyford Close in Skelmersdale, West Lancs.Perfect for first-time buyers and working professionals, this contemporary h...
Property Oracle says ..
This three-bedroom detached house in Skelmersdale, Lancashire is listed at £62,500. The property appears to be in good condition, with modern fixtures and fittings throughout. Images show a well-maintained kitchen and bathrooms, and a garden with a patio area, shed and pergola. The location is close to several primary schools with good Ofsted ratings, including St James’ Catholic Primary School (0.18km), Maharishi Free School (1.11km), and Cobbs Brow School (1.22km). Several train stations are also within a reasonable distance, offering convenient access to other areas. However, the average house price in the area is significantly higher (£404,387), suggesting this property might be undervalued. More information on the plot size would be helpful in determining the overall value. The lack of plot size information in the listing is a concern. The list price is significantly below the average price for the area, making it potentially a very good deal, but further investigation into the reason for the low price is warranted.
Therefore, we give this property 6 / 10. *Disclaimer: This is our option and does constitute a recommendation or financial advice. Do your own research. *
- Price
- 4
- Condition
- 9
- Location
- 7
- Land
- 6
- Bedrooms
- 3
- Bathrooms
- 2
- Sqft (est)
- 933.66
The heatmap indicates the level of crime in the area. The color of the heatmap indicates the crime severity and recency.
Metrics Year-on-Year
- Average area value
- 382,533.00 £Increased by 3.77 %
- Est sale value
- 343,586.88 £Increased by 5.44 %
- Average area rental value
- 1,090.00 £/moDecreased by 17.67 %
- Est letting value
- 933.66 £/moUnchanged by 0.00 %
- Est rental Yield
- 3.42 %Decreased by 20.65 %
- Crime Rate
- 29.00 %Unchanged by 0.00 %
Agent Activity
Arnold & Phillips created the listing.
Nearby Schools
| Name | Type | Ofsted | Distance |
|---|---|---|---|
| St James' Catholic Primary School, Skelmersdale | Voluntary Aided School | Good | 0.18 KM |
| Maharishi Free School | Free Schools | Good | 1.11 KM |
| Dalton St Michael'S Church Of England Primary School | Voluntary Aided School | Good | 1.12 KM |
| Cobbs Brow School | Community School | Outstanding | 1.22 KM |
| Woodlands Community Primary School | Community School | Good | 1.26 KM |
Images
Nearby Streets
| Name | Average Price | Average Sqft | Distance |
|---|---|---|---|
| Vinescross Way | £ 0 | 0 | 0.00 KM |
| Oxton Road | £ 0 | 0 | 0.00 KM |
| Higher Lane | £ 1,800,000 | 0 | 0.00 KM |
| Houghtons Road | £ 0 | 0 | 0.00 KM |
| Oak Tree Court | £ 0 | 0 | 0.00 KM |
Nearby Transport
| Name | NLC | TLC | Distance |
|---|---|---|---|
| Parbold | 2402 | PBL | 2.75 KM |
| Hoscar | 2399 | HSC | 4.90 KM |
| Upholland | 2364 | UPL | 5.50 KM |
| Rainford | 2404 | RNF | 5.74 KM |
| Appley Bridge | 2396 | APB | 6.15 KM |
Nearby Listings
| Address | Price | Type | Score | Distance |
|---|---|---|---|---|
| Joyford Close, Skelmersdale, WN8 | £ 62,500 | BUY | 6 / 10 | 0.00 KM |
| Jackfield Way, Skelmersdale, Lancashire | £ 219,995 | BUY | 7 / 10 | 0.05 KM |
| Yewdale, Skelmersdale, Lancashire, WN8 | £ 135,000 | BUY | 7 / 10 | 0.06 KM |
| Jackfield Way, Skelmersdale, Lancashire, WN8 | £ 220,000 | BUY | 7 / 10 | 0.10 KM |
| Jackfield Way, Skelmersdale, WN8 6EU | £ 200,000 | BUY | 7 / 10 | 0.12 KM |
Nearby Properties
| Address | Price | Distance |
|---|---|---|
| 1 Newburn Close | £ 178,000 | 0.16 KM |
| 9 Newburn Close | £ 139,000 | 0.16 KM |
| 5 Newburn Close | £ 143,000 | 0.16 KM |
| 7 Newburn Close | £ 130,000 | 0.16 KM |
| 18 Newburn Close | £ 157,500 | 0.16 KM |