Pearsons says ..
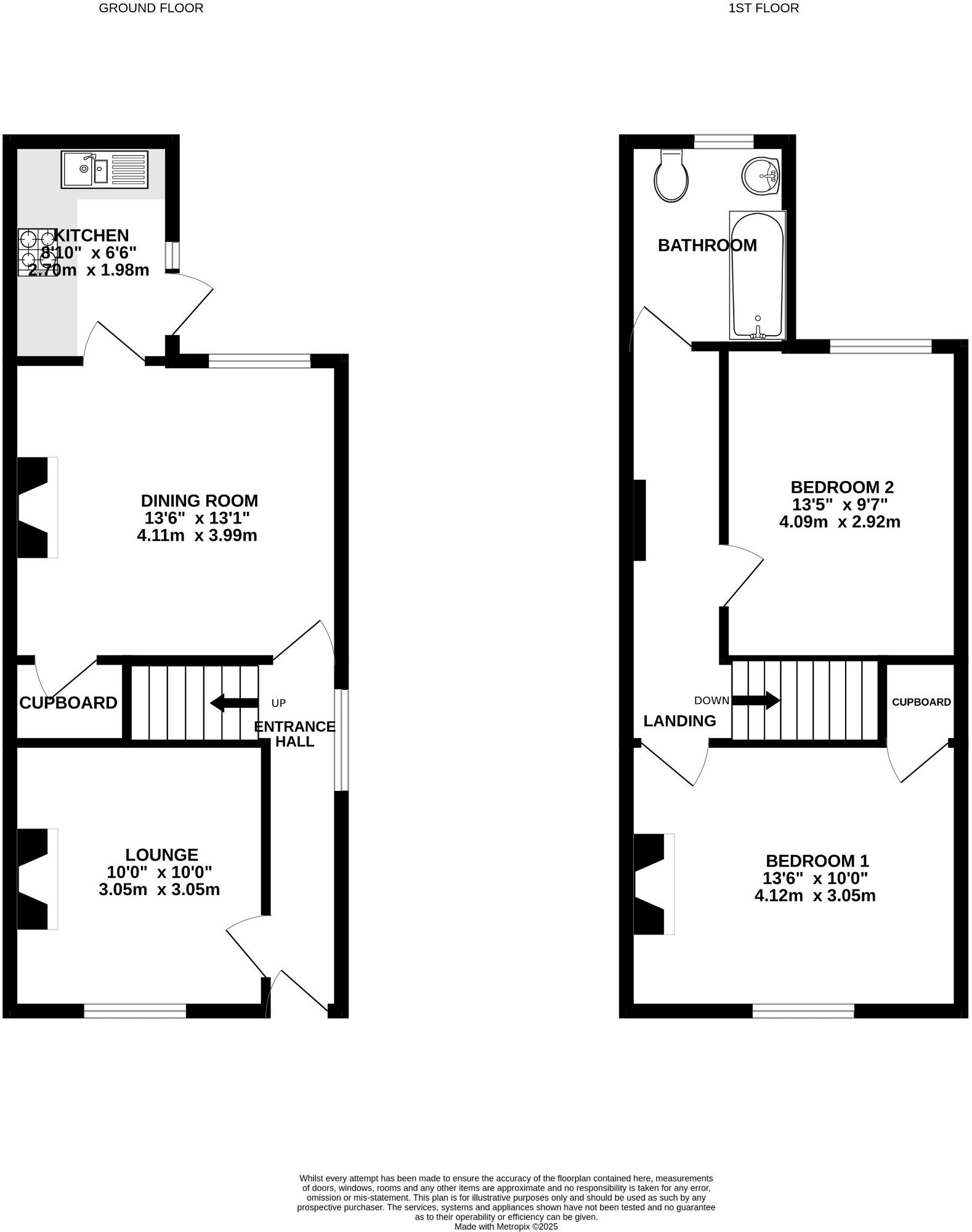
NO FORWARD CHAIN. An older style two bedroom end terrace house located within walking distance of Fareham train station and town centre and benefitting from off road parking. The property briefly comprises; entrance hall, lounge, separate dining room and kitchen. On the first floor, two bedrooms ...
Property Oracle says ..
This end-of-terrace property in Fareham offers a blend of convenience and potential. Its location is a strong point, being close to transport links and reputable schools. While the kitchen and bathroom have been updated, the rest of the house would benefit from some modernisation. The garden, though present, requires landscaping. The asking price is slightly above the local average per square foot, which may reflect its end-of-terrace position, but could be more competitive given the property’s condition.
Therefore, we give this property 6 / 10. *Disclaimer: This is our option and does constitute a recommendation or financial advice. Do your own research. *
- Price
- 6
- Condition
- 5
- Location
- 7
- Land
- 6
- Bedrooms
- 2
- Bathrooms
- 1
- Sqft (est)
- 651.83
The heatmap indicates the level of crime in the area. The color of the heatmap indicates the crime severity and recency.
Metrics Year-on-Year
- Average area value
- 326,999.00 £Increased by 18.52 %
- Est sale value
- 271,161.28 £Increased by 10.34 %
- Average area rental value
- 1,223.00 £/moIncreased by 7.00 %
- Est letting value
- 651.83 £/moUnchanged by 0.00 %
- Est rental Yield
- 4.49 %Decreased by 9.66 %
- Crime Rate
- 15.00 %Unchanged by 0.00 %
Agent Activity
Pearsons created the listing.
Nearby Schools
| Name | Type | Ofsted | Distance |
|---|---|---|---|
| Kingsgate School | Other Independent Special School | Good | 0.37 KM |
| Fareham Academy | Academy Converter | Good | 0.69 KM |
| Merryfields Children'S Centre | Children's Centre | 0.75 KM | |
| Wallisdean Junior School | Community School | Good | 0.75 KM |
| Fareham College | Further Education | Outstanding | 0.76 KM |
Images
Nearby Streets
| Name | Average Price | Average Sqft | Distance |
|---|---|---|---|
| Faregrove Court | £ 402,500 | 0 | 0.00 KM |
| Tennyson Gardens | £ 0 | 0 | 0.00 KM |
| Gold Close | £ 0 | 0 | 0.00 KM |
| Malus Close | £ 315,000 | 0 | 0.00 KM |
| Hillary Close | £ 355,000 | 0 | 0.00 KM |
Nearby Transport
| Name | NLC | TLC | Distance |
|---|---|---|---|
| Fareham | 5900 | FRM | 0.18 KM |
| Portchester | 5928 | PTC | 7.54 KM |
| Swanwick | 5920 | SNW | 8.56 KM |
Nearby Listings
| Address | Price | Type | Score | Distance |
|---|---|---|---|---|
| PAXTON ROAD, FAREHAM | £ 275,000 | BUY | 6 / 10 | 0.00 KM |
| Paxton Road, Fareham | £ 200,000 | BUY | 7 / 10 | 0.01 KM |
| Paxton Road, Fareham, Hampshire, PO14 | £ 250,000 | BUY | 6 / 10 | 0.02 KM |
| Paxton Road, FAREHAM | £ 325,000 | BUY | 6 / 10 | 0.07 KM |
| Paxton Road, Fareham | £ 210,000 | BUY | 5 / 10 | 0.07 KM |
Nearby Properties
| Address | Price | Distance |
|---|---|---|
| 53 Paxton Road | £ 225,000 | 0.07 KM |
| 2a Paxton Road | £ 200,000 | 0.07 KM |
| 19 Paxton Road | £ 184,300 | 0.07 KM |
| 59 Paxton Road | £ 146,000 | 0.07 KM |
| 61 Paxton Road | £ 221,000 | 0.07 KM |