Abinger Way, Guildford, Surrey, GU4
By Seymours
£ 295,000
Reviews
3 out of 5 stars
Seymours says ..
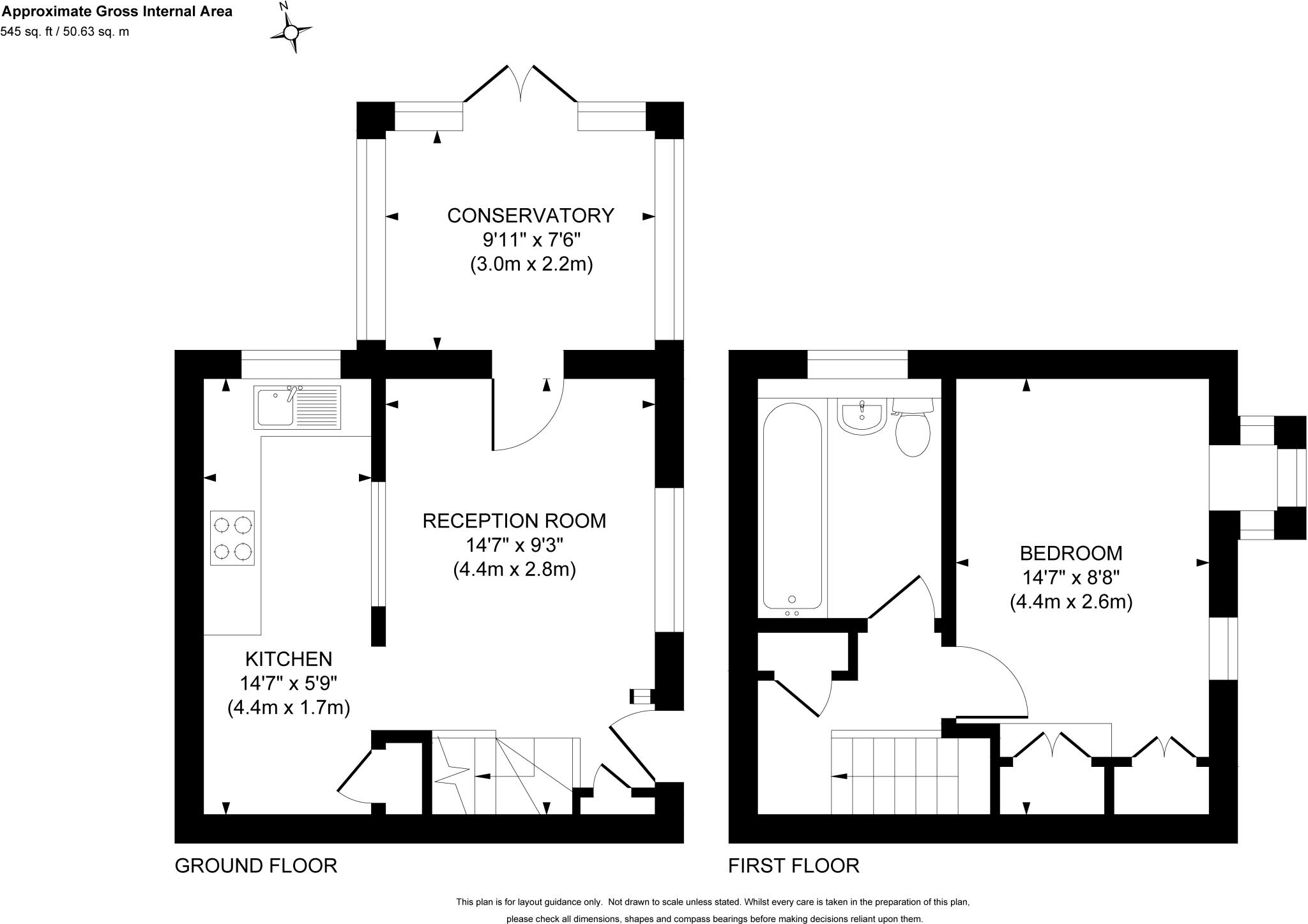
This charming semi-detached one-bedroom home is nestled in the heart of Burpham, offering a peaceful residential setting with the convenience of nearby amenities. With an allocated parking space and excellent transport links, it’s ideally positioned for both local living and commuting to Gu...
Property Oracle says ..
This is a one-bedroom semi-detached property located in Burpham, Guildford. The property benefits from a modern kitchen and bathroom, a conservatory, and a garden. While generally well-maintained, some areas could use some cosmetic improvements. The location is convenient, with good schools and transportation links nearby. The asking price of £295,000 seems reasonable given the property’s features and location, although potentially a little high.
Therefore, we give this property 6 / 10. *Disclaimer: This is our option and does constitute a recommendation or financial advice. Do your own research. *
- Price
- 7
- Condition
- 7
- Location
- 7
- Land
- 6
- Bedrooms
- 1
- Bathrooms
- 1
- Sqft (est)
- 416.84
The heatmap indicates the level of crime in the area. The color of the heatmap indicates the crime severity and recency.
Metrics Year-on-Year
- Average area value
- 176,875.00 £Decreased by 63.05 %
- Est sale value
- 163,818.12 £Increased by 0.26 %
- Average area rental value
- 1,454.00 £/moDecreased by 26.68 %
- Est letting value
- 1,250.52 £/moIncreased by 200.00 %
- Est rental Yield
- 9.86 %Increased by 98.39 %
- Crime Rate
- 31.00 %Unchanged by 0.00 %
Agent Activity
Seymours created the listing.
Nearby Schools
| Name | Type | Ofsted | Distance |
|---|---|---|---|
| Burpham Foundation Primary School | Foundation School | Outstanding | 0.48 KM |
| George Abbot School | Academy Converter | Good | 1.10 KM |
| Boxgrove Sure Start Children'S Centre | Children's Centre | 1.95 KM | |
| Boxgrove Primary School | Academy Converter | Good | 1.96 KM |
| St Peter'S Catholic School | Academy Converter | 2.12 KM |
Images
Nearby Streets
| Name | Average Price | Average Sqft | Distance |
|---|---|---|---|
| Paddocks Road | £ 1,195,000 | 0 | 0.00 KM |
| Meadow Road | £ 1,400,000 | 0 | 0.00 KM |
| The Cloisters | £ 0 | 0 | 0.00 KM |
| Belmont Place | £ 0 | 0 | 0.00 KM |
| Hawthorne Way | £ 855,000 | 0 | 0.00 KM |
Nearby Transport
| Name | NLC | TLC | Distance |
|---|---|---|---|
| London Road (Guildford) | 5632 | LRD | 3.31 KM |
| Clandon | 5555 | CLA | 4.79 KM |
| Guildford | 5631 | GLD | 4.82 KM |
| Worplesdon | 5686 | WPL | 4.93 KM |
| Chilworth | 5296 | CHL | 5.88 KM |
Nearby Listings
| Address | Price | Type | Score | Distance |
|---|---|---|---|---|
| Abinger Way, Guildford, Surrey, GU4 | £ 295,000 | BUY | 6 / 10 | 0.00 KM |
| Abinger Way, Burpham, Guildford, Surrey, GU4 | £ 280,000 | BUY | 6 / 10 | 0.00 KM |
| Abinger Way, Guildford, Surrey, GU4 | £ 300,000 | BUY | 6 / 10 | 0.00 KM |
| Ladygrove Drive, Burpham, Guildford, GU4 | £ 210,000 | BUY | Unknown | 0.04 KM |
| Ladygrove Drive, Burpham, Guildford, Surrey, GU4 | £ 210,000 | BUY | 6 / 10 | 0.04 KM |
Nearby Properties
| Address | Price | Distance |
|---|---|---|
| 9 Abinger Way | £ 131,000 | 0.02 KM |
| 22 Abinger Way | £ 200,000 | 0.02 KM |
| 16 Abinger Way | £ 97,500 | 0.02 KM |
| 5 Abinger Way | £ 114,950 | 0.02 KM |
| 8 Abinger Way | £ 170,000 | 0.02 KM |