84 Vansittart Road, Forest Gate, London, E7 0AA
SA

84 Vansittart Road, Forest Gate, London, E7 0AA

By Savills

£ 320,000

Reviews

3 out of 5 stars

Savills says ..

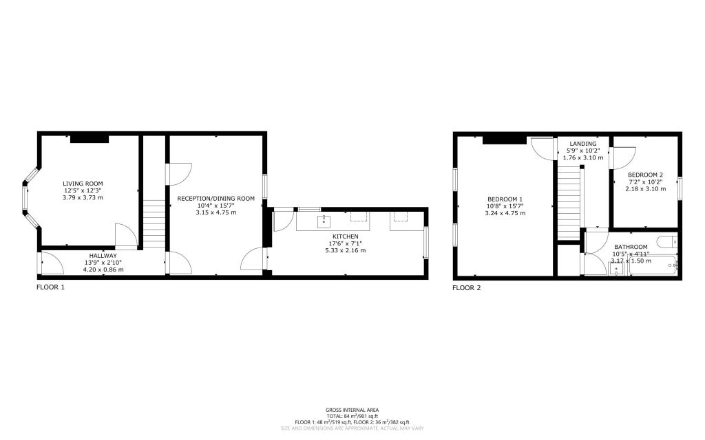
Auction Sale - 09/12/2025 - To book viewings, view the legal pack and register to bid please refer to the full sales particulars on the Savills Auctions website A two bedroom mid terrace house, benefitting from a rear garden, in need of modernisation, well located for the amenities of Fores...

Property Oracle says ..

This is a two-bedroom terraced house on Vansittart Road, Forest Gate, London. The property requires extensive renovation but offers a good opportunity for buyers to add value. The location is convenient, with good transport links and nearby schools. The property also benefits from a garden, although it needs landscaping. The asking price of £320,000 seems reasonable given the condition and location, especially when compared to the average property price in the area.

Therefore, we give this property 6 / 10. *Disclaimer: This is our option and does constitute a recommendation or financial advice. Do your own research. *

Price
8
Condition
3
Location
7
Land
6
Bedrooms
2
Bathrooms
0

The heatmap indicates the level of crime in the area. The color of the heatmap indicates the crime severity and recency.

Metrics Year-on-Year

Average area value
439,656.00 £
Increased by 12.48 %
from 390,872.00 £
Average area rental value
2,161.00 £/mo
Increased by 12.61 %
from 1,919.00 £/mo
Est rental Yield
5.90 %
Increased by 0.17 %
from 5.89 %
Crime Rate
5.00 %
Unchanged by 0.00 %
from 5.00 %

Agent Activity

  • Savills created the listing.

Nearby Schools

NameTypeOfstedDistance
Odessa Infant SchoolCommunity SchoolGood0.56 KM
St James' Cofe Junior SchoolVoluntary Controlled SchoolGood0.62 KM
Buxton SchoolFoundation SchoolGood0.65 KM
Forest Gate Community SchoolAcademy Converter0.66 KM
Earlham Primary SchoolAcademy ConverterGood0.86 KM

Images

84 Vansittart Road, Forest Gate, London, E7 0AA 84 Vansittart Road, Forest Gate, London, E7 0AA 84 Vansittart Road, Forest Gate, London, E7 0AA 84 Vansittart Road, Forest Gate, London, E7 0AA 84 Vansittart Road, Forest Gate, London, E7 0AA 84 Vansittart Road, Forest Gate, London, E7 0AA 84 Vansittart Road, Forest Gate, London, E7 0AA 84 Vansittart Road, Forest Gate, London, E7 0AA 84 Vansittart Road, Forest Gate, London, E7 0AA 84 Vansittart Road, Forest Gate, London, E7 0AA 84 Vansittart Road, Forest Gate, London, E7 0AA 84 Vansittart Road, Forest Gate, London, E7 0AA 84 Vansittart Road, Forest Gate, London, E7 0AA 84 Vansittart Road, Forest Gate, London, E7 0AA 84 Vansittart Road, Forest Gate, London, E7 0AA

Nearby Streets

NameAverage PriceAverage SqftDistance
Field Road £ 000.00 KM
Eric Road £ 000.00 KM
Albert Court £ 000.00 KM
Sheridan Road £ 000.00 KM
Vansittart Road £ 000.00 KM

Nearby Transport

NameNLCTLCDistance
Forest Gate6876FOG0.77 KM
Wanstead Park7408WNP0.80 KM
Leytonstone High Road7403LER1.60 KM
Maryland6970MYL1.78 KM
Woodgrange Park7467WGR2.81 KM

Nearby Listings

AddressPriceTypeScoreDistance
84 Vansittart Road, Forest Gate, London, E7 0AA £ 320,000BUY6 / 100.00 KM
Vansittart Road, London £ 650,000BUY6 / 100.07 KM
Field Point, Station Road, London, E7 £ 425,000BUYUnknown0.10 KM
Pevensey Road, Forest Gate £ 775,000BUYUnknown0.10 KM
Winchelsea Road, Forest Gate £ 325,000BUYUnknown0.12 KM

Nearby Properties

AddressPriceDistance
133 Vansittart Road £ 413,0000.00 KM
105 Vansittart Road £ 450,0000.00 KM
86 Vansittart Road £ 79,9950.00 KM
100 Vansittart Road £ 565,0000.00 KM
112 Vansittart Road £ 525,0000.00 KM