Zetland Street, Southport, Merseyside, PR9 9DL
By Bailey Estates
£ 235,000
Reviews
3 out of 5 stars
Bailey Estates says ..
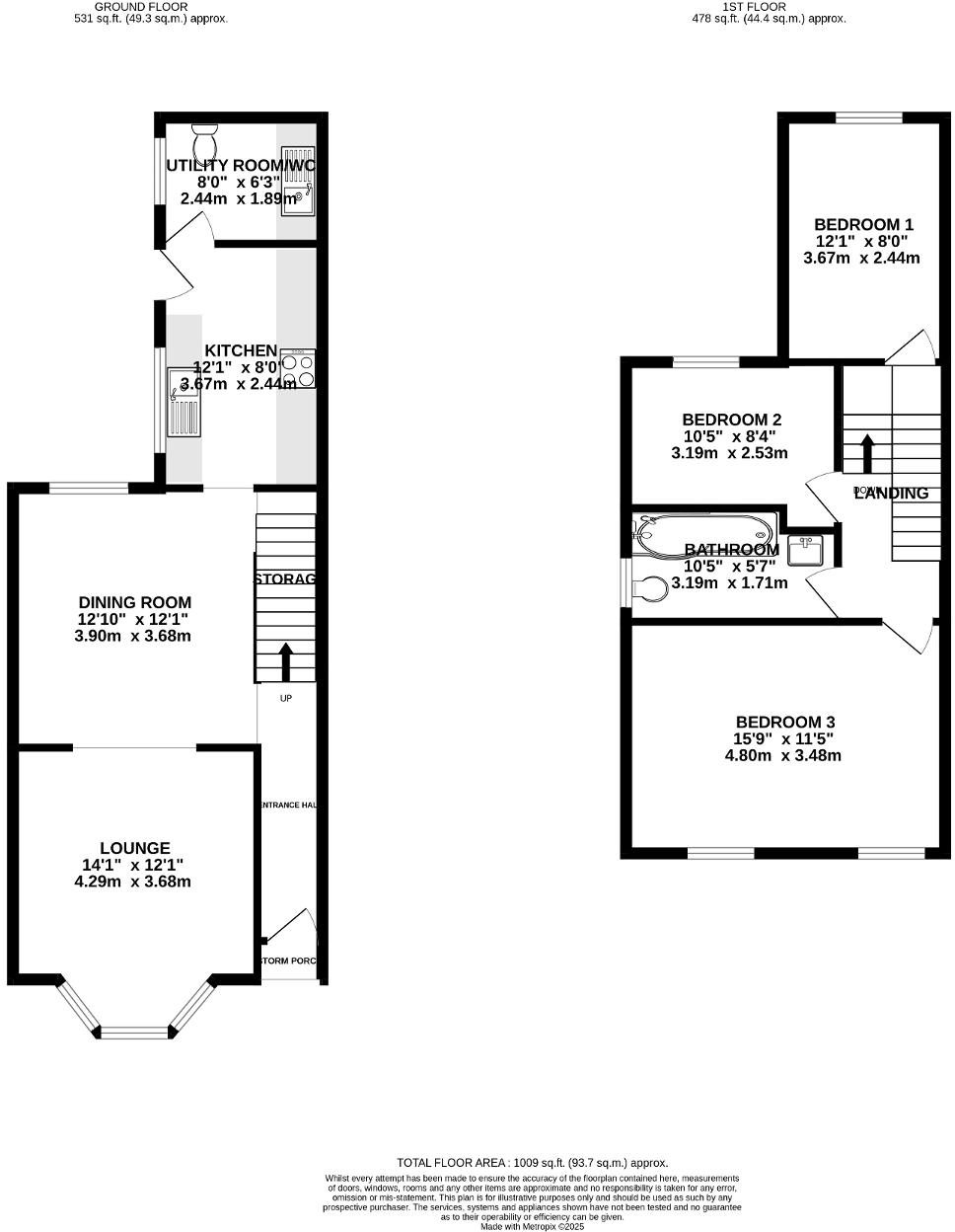
Bailey Estates is thrilled to present for sale this beautifully modernised and well-maintained 3-bedroom semi-detached property, ideally located on Zetland Street in the popular seaside town of Southp...
Property Oracle says ..
This is a 3-bedroom semi-detached property located on Zetland Street, in Norwood, Southport. The property is in good condition, with a modern kitchen and bathroom. It has recently been renovated. The property has a good sized garden with a shed. The property is located within close proximity to a number of schools and the closest train station is Meols Cop which is 1.37KM away. The property is listed for £235,000, which is below the average price for a property on Zetland Street of £273,000.
Therefore, we give this property 7 / 10. *Disclaimer: This is our option and does constitute a recommendation or financial advice. Do your own research. *
- Price
- 8
- Condition
- 8
- Location
- 7
- Land
- 7
- Bedrooms
- 3
- Bathrooms
- 1
The heatmap indicates the level of crime in the area. The color of the heatmap indicates the crime severity and recency.
Metrics Year-on-Year
- Average area value
- 273,000.00 £Increased by 27.13 %
- Average area rental value
- 938.00 £/moDecreased by 8.75 %
- Est rental Yield
- 4.12 %Decreased by 28.22 %
- Crime Rate
- 4.00 %Unchanged by 0.00 %
Agent Activity
Bailey Estates created the listing.
Nearby Schools
| Name | Type | Ofsted | Distance |
|---|---|---|---|
| Holy Family Catholic Primary School | Voluntary Aided School | Good | 0.87 KM |
| Norwood Primary School | Community School | Good | 0.93 KM |
| St Philip'S Church Of England Primary School | Voluntary Aided School | Good | 0.95 KM |
| Arden College | Special Post 16 Institution | Good | 0.96 KM |
| Holy Trinity Church Of England Primary School, Southport | Academy Converter | 0.99 KM |
Images
Nearby Streets
| Name | Average Price | Average Sqft | Distance |
|---|---|---|---|
| Manchester Road | £ 177,000 | 0 | 0.00 KM |
| Sussex Road | £ 0 | 0 | 0.00 KM |
| Tithebarn Road | £ 120,000 | 0 | 0.00 KM |
| Willow Grove | £ 0 | 0 | 0.00 KM |
| Hall Street | £ 0 | 0 | 0.00 KM |
Nearby Transport
| Name | NLC | TLC | Distance |
|---|---|---|---|
| Meols Cop | 2357 | MEC | 1.37 KM |
| Southport | 2262 | SOP | 1.64 KM |
| Birkdale | 2352 | BDL | 3.39 KM |
| Hillside | 2231 | HIL | 5.07 KM |
| Ainsdale | 2350 | ANS | 8.02 KM |
Nearby Listings
| Address | Price | Type | Score | Distance |
|---|---|---|---|---|
| Zetland Street, Southport, Merseyside, PR9 9DL | £ 235,000 | BUY | 7 / 10 | 0.00 KM |
| Zetland Street, Southport, Merseyside, PR9 9DL | £ 210,000 | BUY | 7 / 10 | 0.11 KM |
| Manchester Road, Southport, Merseyside, PR9 | £ 60,000 | BUY | 5 / 10 | 0.12 KM |
| Windsor Road, Southport, Merseyside, PR9 | £ 225,000 | BUY | Unknown | 0.14 KM |
| Windsor Road, Southport, PR9 | £ 400,000 | BUY | 6 / 10 | 0.15 KM |
Nearby Properties
| Address | Price | Distance |
|---|---|---|
| 104 Zetland Street | £ 89,950 | 0.05 KM |
| 98a Zetland Street | £ 108,000 | 0.05 KM |
| 83 Zetland Street | £ 105,000 | 0.05 KM |
| 87 Zetland Street | £ 155,000 | 0.05 KM |
| 79 Zetland Street | £ 148,000 | 0.05 KM |