Hound Green Close, Hound Green, Hook, Hampshire, RG27
By Mackenzie Smith
£ 550,000
Reviews
3 out of 5 stars
Mackenzie Smith says ..
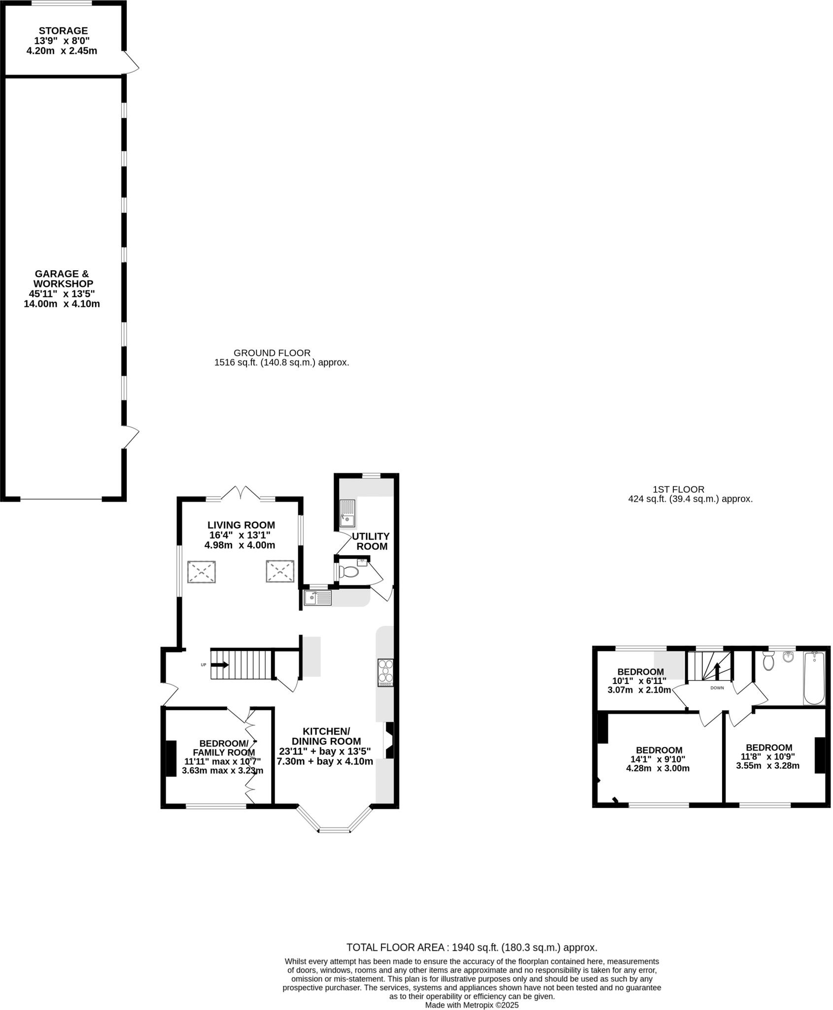
A beautifully presented three-bedroom semi-detached home in sought-after Hound Green. Features include a vaulted sitting room, modern kitchen/family space, study, utility, and cloakroom. Detached garage, outbuilding, ample parking and a private garden complete this appealing property
Property Oracle says ..
This property is a 3-bedroom, 1-bathroom semi-detached house located in Hound Green, Hook, Hampshire. The property benefits from a modern extension, creating a spacious living area and kitchen. The extension is well-designed and integrates seamlessly with the original structure. The kitchen is modern and well-equipped, and the living area is bright and airy. The property also has a good-sized garden, which is well-maintained and offers plenty of space for outdoor entertaining. The location is convenient, with good access to local amenities and transportation links. The property is in good condition and has been well-maintained. Overall, this is a desirable property that offers excellent value for money.
Therefore, we give this property 7 / 10. *Disclaimer: This is our option and does constitute a recommendation or financial advice. Do your own research. *
- Price
- 7
- Condition
- 9
- Location
- 8
- Land
- 7
- Bedrooms
- 3
- Bathrooms
- 1
- Sqft (est)
- 1,690.00
- Lot (est)
- 1,940.00
The heatmap indicates the level of crime in the area. The color of the heatmap indicates the crime severity and recency.
Metrics Year-on-Year
- Average area value
- 605,000.00 £Decreased by 12.61 %
- Est sale value
- 1,275,950.00 £Increased by 45.19 %
- Average area rental value
- 1,924.00 £/moDecreased by 7.72 %
- Est letting value
- 3,380.00 £/moIncreased by 100.00 %
- Est rental Yield
- 3.82 %Increased by 5.82 %
- Crime Rate
- 83.00 %Unchanged by 0.00 %
Agent Activity
Mackenzie Smith marked this listing as sold.
Mackenzie Smith created the listing.
Nearby Schools
| Name | Type | Ofsted | Distance |
|---|---|---|---|
| Daneshill School | Other Independent School | 3.53 KM | |
| Whitewater Church Of England Primary School | Voluntary Controlled School | Requires improvement | 3.75 KM |
| Hook Junior School | Community School | Outstanding | 4.76 KM |
| Hook Infant School | Community School | Outstanding | 4.76 KM |
| Greenfields Junior School | Community School | Good | 6.36 KM |
Images
Nearby Streets
| Name | Average Price | Average Sqft | Distance |
|---|---|---|---|
| Bottle Lane | £ 1,033,333 | 0 | 0.00 KM |
Nearby Transport
| Name | NLC | TLC | Distance |
|---|---|---|---|
| Hook | 5523 | HOK | 5.16 KM |
| Winchfield | 5528 | WNF | 7.12 KM |
Nearby Listings
| Address | Price | Type | Score | Distance |
|---|---|---|---|---|
| Hound Green Close, Hound Green, Hook, Hampshire, RG27 | £ 550,000 | BUY | 7 / 10 | 0.00 KM |
| Vicarage Lane, Hound Green, Hook, Hampshire, RG27 | £ 1,535,000 | BUY | Unknown | 0.20 KM |
| Hound Green, Hook, Hampshire, RG27 | £ 875,000 | BUY | 7 / 10 | 0.28 KM |
| Vicarage Lane, Hound Green | £ 1,000,000 | BUY | 7 / 10 | 0.29 KM |
| Mattingley, Hound Green | £ 850,000 | BUY | 7 / 10 | 0.42 KM |
Nearby Properties
| Address | Price | Distance |
|---|---|---|
| 13 Hound Green Close | £ 424,000 | 0.00 KM |
| 2 Hound Green Close | £ 382,500 | 0.00 KM |
| 11 Hound Green Close | £ 270,000 | 0.00 KM |
| 9 Hound Green Close | £ 247,000 | 0.00 KM |
| 22 Hound Green Close | £ 440,000 | 0.00 KM |