Great Oldbury Drive, Stonehouse, Gloucester, GL10 3WL
By Sage Homes
£ 190,000
Reviews
3 out of 5 stars
Sage Homes says ..
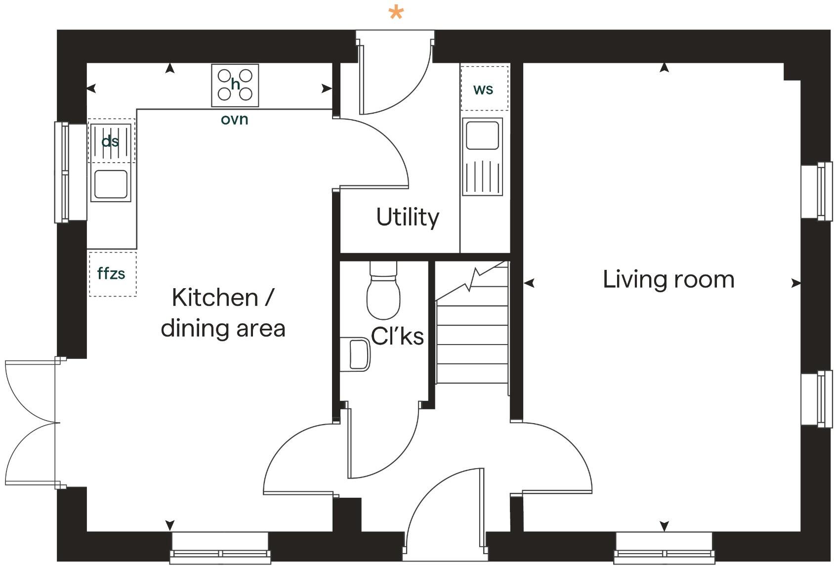
Brand new 3 bedroom house on the Great Oldbury development. The price advertised represents purchasing a 50% share of the home. This home comes complete with French doors leading from both the living room and dining, separate utility room, and PV solar panels.
Property Oracle says ..
This property is a 3 bedroom, 2 bathroom detached house located in Stonehouse, Gloucestershire. The property is newly built and presented in excellent condition throughout. The location is convenient for access to local amenities and transport links, with a train station approximately 2km away. There are several primary and secondary schools within a reasonable distance. The plot size is small, which is typical for new-build properties in this area. The list price of £190,000 appears reasonable when compared to similar properties in the area, although it is significantly lower than the average house price in the wider Stroud area. This is likely due to the smaller plot size and the fact that the average house price includes a mix of older and newer properties.
Therefore, we give this property 7 / 10. *Disclaimer: This is our option and does constitute a recommendation or financial advice. Do your own research. *
- Price
- 8
- Condition
- 10
- Location
- 7
- Land
- 3
- Bedrooms
- 3
- Bathrooms
- 2
- Sqft (est)
- 575.00
The heatmap indicates the level of crime in the area. The color of the heatmap indicates the crime severity and recency.
Metrics Year-on-Year
- Average area value
- 468,189.00 £Increased by 38.49 %
- Est sale value
- 283,475.00 £Increased by 75.44 %
- Average area rental value
- 2,227.00 £/moIncreased by 30.77 %
- Est letting value
- 1,150.00 £/moIncreased by 100.00 %
- Est rental Yield
- 5.71 %Decreased by 5.46 %
- Crime Rate
- 0.00 %
Agent Activity
Sage Homes created the listing.
Nearby Schools
| Name | Type | Ofsted | Distance |
|---|---|---|---|
| Great Oldbury Primary Academy | Free Schools | 0.63 KM | |
| The Shrubberies School | Community Special School | Good | 1.23 KM |
| Stonehouse The Park Children'S Centre | Children's Centre | 1.35 KM | |
| Stonehouse Park Infant School | Community School | Good | 1.39 KM |
| Park Junior School | Community School | Requires improvement | 1.39 KM |
Images
Nearby Streets
| Name | Average Price | Average Sqft | Distance |
|---|---|---|---|
| Compton Close | £ 425,000 | 0 | 0.00 KM |
| Marston Everett Close | £ 0 | 0 | 0.00 KM |
| Marling Way | £ 0 | 0 | 0.00 KM |
| Daniels Way | £ 380,000 | 0 | 0.00 KM |
| Budloe Field | £ 480,000 | 0 | 0.00 KM |
Nearby Transport
| Name | NLC | TLC | Distance |
|---|---|---|---|
| Stonehouse | 4770 | SHU | 2.06 KM |
| Stroud (Gloucs) | 4771 | STD | 8.33 KM |
| Cam And Dursley | 3238 | CDU | 8.54 KM |
Nearby Listings
| Address | Price | Type | Score | Distance |
|---|---|---|---|---|
| Great Oldbury Drive, Stonehouse, Gloucester, GL10 3WL | £ 182,500 | BUY | 9 / 10 | 0.00 KM |
| Great Oldbury Drive, Stonehouse, Gloucester, GL10 3WL | £ 190,000 | BUY | 7 / 10 | 0.00 KM |
| Great Oldbury Drive, Stonehouse, Gloucester, GL10 3WL | £ 190,000 | BUY | Unknown | 0.00 KM |
| Great Oldbury Drive, Stonehouse, Gloucester, GL10 3WL | £ 212,500 | BUY | 8 / 10 | 0.00 KM |
| Great Oldbury Drive, Stonehouse, Gloucester, GL10 3XP | £ 106,000 | BUY | 7 / 10 | 0.01 KM |
Nearby Properties
| Address | Price | Distance |
|---|---|---|
| 2 Spa Cottages | £ 100,000 | 0.70 KM |
| 4 Spa Cottages | £ 131,000 | 0.70 KM |
| 14 Oldends Lane | £ 184,000 | 0.76 KM |
| 16 Oldends Lane | £ 195,000 | 0.76 KM |
| 12 Oldends Lane | £ 157,000 | 0.79 KM |