Sandham Grove, Heswall, Wirral
By Move Residential
£ 850,000
Reviews
3 out of 5 stars
Move Residential says ..
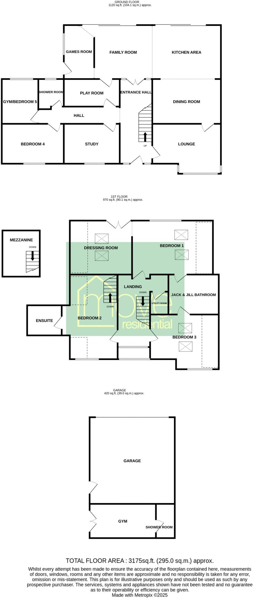
Far surpassing all expectations is this spectacular five bedroom detached residence, enjoying an enviable location in the sought-after suburb of Heswall. Proudly showcased to the sales market courtesy of appointed agents Move Residential, this property boasts a striking contemporary frontage whic...
Property Oracle says ..
This is a modern detached property located in a desirable area of Heswall, Wirral. The house features 5 bedrooms and 3 bathrooms, making it suitable for a family. The interior is well-presented with a modern kitchen, stylish living spaces, and well-appointed bathrooms. The property also benefits from a good-sized garden with an outdoor kitchen and covered seating area, perfect for entertaining. While the list price is higher than the average for the area, the property’s condition and features may justify the premium. The proximity to local transportation and schools adds to the appeal of this home.
Therefore, we give this property 7 / 10. *Disclaimer: This is our option and does constitute a recommendation or financial advice. Do your own research. *
- Price
- 6
- Condition
- 9
- Location
- 8
- Land
- 8
- Bedrooms
- 5
- Bathrooms
- 3
The heatmap indicates the level of crime in the area. The color of the heatmap indicates the crime severity and recency.
Metrics Year-on-Year
- Average area value
- 476,574.00 £Decreased by 12.58 %
- Average area rental value
- 1,200.00 £/moDecreased by 11.24 %
- Est rental Yield
- 3.02 %Increased by 1.34 %
- Crime Rate
- 11.00 %Unchanged by 0.00 %
Agent Activity
Move Residential created the listing.
Nearby Schools
| Name | Type | Ofsted | Distance |
|---|---|---|---|
| Barnston Primary School | Community School | Good | 0.38 KM |
| Heswall Primary School | Community School | Good | 2.06 KM |
| Gayton Primary School | Community School | Good | 2.56 KM |
| Stanley School | Community Special School | Good | 3.02 KM |
| Heswall St Peter'S Cofe Primary School | Voluntary Aided School | Good | 3.15 KM |
Images
Nearby Streets
| Name | Average Price | Average Sqft | Distance |
|---|---|---|---|
| Aspen Close | £ 0 | 0 | 0.00 KM |
| St Stephens Close | £ 0 | 0 | 0.00 KM |
| Pine Wood Drive | £ 500,000 | 0 | 0.00 KM |
| Chester Road | £ 711,000 | 0 | 0.00 KM |
| Kingsway | £ 0 | 0 | 0.00 KM |
Nearby Transport
| Name | NLC | TLC | Distance |
|---|---|---|---|
| Heswall | 2138 | HSW | 0.44 KM |
| Neston | 2139 | NES | 3.96 KM |
| Upton (Merseyside) | 2141 | UPT | 6.84 KM |
| Bebington | 2188 | BEB | 8.55 KM |
| Rock Ferry | 2189 | RFY | 8.72 KM |
Nearby Listings
| Address | Price | Type | Score | Distance |
|---|---|---|---|---|
| Sandham Grove, Heswall, Wirral | £ 850,000 | BUY | 7 / 10 | 0.00 KM |
| Sandham Grove, Heswall, Wirral | £ 625,000 | BUY | 7 / 10 | 0.09 KM |
| Dovesmead Road, Heswall, Wirral | £ 500,000 | BUY | 8 / 10 | 0.10 KM |
| Dovesmead Road, Heswall, Wirral | £ 500,000 | BUY | 7 / 10 | 0.10 KM |
| Sandham Grove, Heswall, Wirral | £ 899,999 | BUY | 9 / 10 | 0.12 KM |
Nearby Properties
| Address | Price | Distance |
|---|---|---|
| 63 Sandham Grove | £ 210,000 | 0.01 KM |
| 3 Sandham Grove | £ 355,000 | 0.01 KM |
| 43 Sandham Grove | £ 395,000 | 0.01 KM |
| 17 Sandham Grove | £ 365,000 | 0.01 KM |
| 33 Sandham Grove | £ 245,000 | 0.01 KM |