Formby Avenue, Stanmore
GI

Formby Avenue, Stanmore

By Gibbs Gillespie

£ 565,000

Reviews

2 out of 5 stars

Gibbs Gillespie says ..

Ideally located for the amenities and transport links of Stanmore, is this three-bedroom semi-detached family home with no upper chain. Situated on a highly desirable residential road close to several highly regarded schools. The property offers excellent potential to extend and a fantastic oppor...

Property Oracle says ..

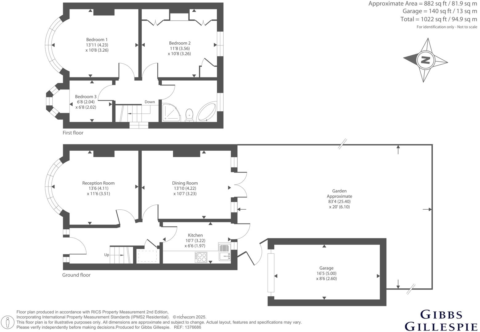
This is a 3-bedroom semi-detached house located on Formby Avenue in Queensbury, Harrow. The property is in need of extensive renovation, as evidenced by the condition of the kitchen, bathroom, and general interior. However, it benefits from a good location, with proximity to schools and transportation links. The property also has a garden. The asking price of £565,000 seems reasonable, considering the location and potential for improvement, but may be slightly above the average for the street due to the property’s size.

Therefore, we give this property 5 / 10. *Disclaimer: This is our option and does constitute a recommendation or financial advice. Do your own research. *

Price
5
Condition
3
Location
7
Land
6
Bedrooms
3
Bathrooms
1
Sqft (est)
1,022.00

The heatmap indicates the level of crime in the area. The color of the heatmap indicates the crime severity and recency.

Metrics Year-on-Year

Average area value
343,889.00 £
Increased by 1.30 %
from 339,466.00 £
Est sale value
399,602.00 £
Increased by 24.52 %
from 320,908.00 £
Average area rental value
2,052.00 £/mo
Increased by 11.64 %
from 1,838.00 £/mo
Est letting value
2,044.00 £/mo
Increased by 100.00 %
from 1,022.00 £/mo
Est rental Yield
7.16 %
Increased by 10.15 %
from 6.50 %
Crime Rate
4.00 %
Unchanged by 0.00 %
from 4.00 %

Agent Activity

  • Gibbs Gillespie created the listing.

Nearby Schools

NameTypeOfstedDistance
Priestmead Primary School And NurseryAcademy Converter0.64 KM
Park High SchoolAcademy ConverterOutstanding0.94 KM
Kenmore Park Children'S CentreChildren's Centre Linked Site1.16 KM
Stanburn Primary SchoolCommunity SchoolGood1.28 KM
Kenmore Park Junior SchoolCommunity SchoolGood1.33 KM

Images

1376686-1-690cd61... 1376686-3-690cd62... 1376686-15-690cd9... 1376686-19-690cd9... 1376686-6-690cd66... 1376686-8-690cd83... 1376686-18-690cd9... 1376686-4-690cd63... 1376686-17-690cd9... 1376686-9-690cd89... 1376686-5-690cd65... 1376686-11-690cd9... 1376686-16-690cd9... 1376686-12-690cd9... 1376686-10-690cd8... 1376686-13-690cd9... 1376686-14-690cd9... 1376686-2-690cd61... 1376686-20-690cd9... 1376686-7-690cd79...

Nearby Streets

NameAverage PriceAverage SqftDistance
Clifton Avenue £ 000.00 KM
Saint Leonards Avenue £ 000.00 KM
Kenton Park Parade £ 185,00000.00 KM
Westfield Drive £ 000.00 KM
Belmont Trail £ 000.00 KM

Nearby Transport

NameNLCTLCDistance
Kenton1399KNT1.71 KM
South Kenton1453SOK2.77 KM
Harrow And Wealdstone1397HRW2.82 KM
Harrow-On-The-Hill598HOH3.57 KM
North Wembley1422NWB3.66 KM

Nearby Listings

AddressPriceTypeScoreDistance
Formby Avenue, Stanmore £ 565,000BUY5 / 100.00 KM
Formby Avenue, Stanmore, HA7 £ 415,000BUY6 / 100.04 KM
Formby Avenue, Stanmore, HA7 £ 395,000BUY8 / 100.04 KM
Formby Avenue, Stanmore £ 539,950BUY5 / 100.09 KM
Ennerdale Avenue, Stanmore £ 850,000BUYUnknown0.11 KM

Nearby Properties

AddressPriceDistance
6 Formby Avenue £ 330,0000.01 KM
4 Formby Avenue £ 285,0000.01 KM
28 Formby Avenue £ 614,0000.01 KM
60 Formby Avenue £ 425,0000.01 KM
56 Formby Avenue £ 535,0000.01 KM