Ben Rose says ..
Ben Rose Estate Agents are pleased to present to market this beautifully maintained three-bedroom semi-detached bungalow, located in a quiet and much sought-after area of Leyland. This immaculate property is the perfect choice for couples, small families, or those looking to downsize without comp...
Property Oracle says ..
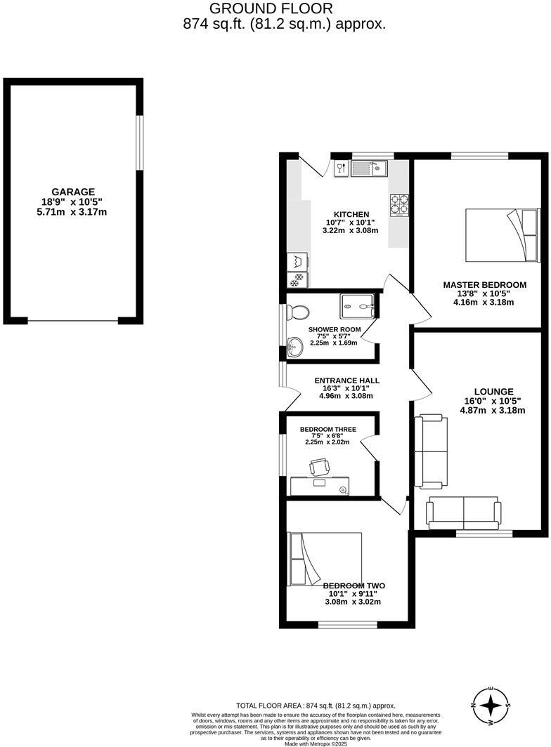
This is a 3-bedroom semi-detached property located on St. Annes Road, Leyland. The house is in good condition, with modern interior finishes. It features a garden with a lawn, decking, and a shed. The property is situated in a convenient location, close to schools and transportation links. The asking price of £220,000 appears reasonable in the context of the local market. The property offers a good balance of modern living, outdoor space, and accessibility, making it an attractive option for potential buyers.
Therefore, we give this property 7 / 10. *Disclaimer: This is our option and does constitute a recommendation or financial advice. Do your own research. *
- Price
- 7
- Condition
- 8
- Location
- 7
- Land
- 7
- Bedrooms
- 3
- Bathrooms
- 1
- Sqft (est)
- 974.08
The heatmap indicates the level of crime in the area. The color of the heatmap indicates the crime severity and recency.
Metrics Year-on-Year
- Average area value
- 472,750.00 £Decreased by 21.88 %
- Est sale value
- 749,067.52 £Increased by 27.74 %
- Average area rental value
- 1,418.00 £/moDecreased by 35.04 %
- Est letting value
- 1,948.16 £/moUnchanged by 0.00 %
- Est rental Yield
- 3.60 %Decreased by 16.86 %
- Crime Rate
- 8.00 %Unchanged by 0.00 %
Agent Activity
Ben Rose created the listing.
Nearby Schools
| Name | Type | Ofsted | Distance |
|---|---|---|---|
| Farington Primary School | Academy Sponsor Led | 0.40 KM | |
| Lever House Primary School | Community School | Good | 0.44 KM |
| St Catherine'S Rc Primary School | Voluntary Aided School | Good | 0.51 KM |
| Roselyn House School | Other Independent Special School | Good | 0.84 KM |
| Leyland Methodist Infant School | Voluntary Controlled School | Outstanding | 1.15 KM |
Images
Nearby Streets
| Name | Average Price | Average Sqft | Distance |
|---|---|---|---|
| St Margaret's Road | £ 0 | 0 | 0.00 KM |
| Brookside Cottages | £ 0 | 0 | 0.00 KM |
| St Marlow Avenue | £ 0 | 0 | 0.00 KM |
| The Chase | £ 360,000 | 0 | 0.00 KM |
| Bow Street | £ 260,000 | 0 | 0.00 KM |
Nearby Transport
| Name | NLC | TLC | Distance |
|---|---|---|---|
| Leyland | 2710 | LEY | 0.68 KM |
| Lostock Hall | 2689 | LOH | 2.51 KM |
| Bamber Bridge | 2561 | BMB | 3.61 KM |
| Buckshaw Parkway | 7501 | BSV | 3.98 KM |
| Euxton Balshaw Lane | 2080 | EBA | 4.78 KM |
Nearby Listings
| Address | Price | Type | Score | Distance |
|---|---|---|---|---|
| St. Annes Road, Leyland | £ 220,000 | BUY | 7 / 10 | 0.00 KM |
| Lever House Lane, Leyland | £ 200,000 | BUY | 6 / 10 | 0.05 KM |
| St. Annes Road, Leyland, Lancashire, PR25 | £ 200,000 | BUY | 6 / 10 | 0.05 KM |
| St. Annes Road, Leyland | £ 230,000 | BUY | 7 / 10 | 0.06 KM |
| St. Annes Road, Leyland, Lancashire, PR25 | £ 220,000 | BUY | 7 / 10 | 0.07 KM |
Nearby Properties
| Address | Price | Distance |
|---|---|---|
| 52 St Annes Road | £ 151,500 | 0.05 KM |
| 105 St Annes Road | £ 122,000 | 0.05 KM |
| 115 St Annes Road | £ 144,000 | 0.05 KM |
| 111 St Annes Road | £ 125,000 | 0.05 KM |
| 107 St Annes Road | £ 149,950 | 0.05 KM |