Highridge, Hythe, Kent, CT21
TH

Highridge, Hythe, Kent, CT21

By The London Broker

£ 795,000

Reviews

4 out of 5 stars

The London Broker says ..

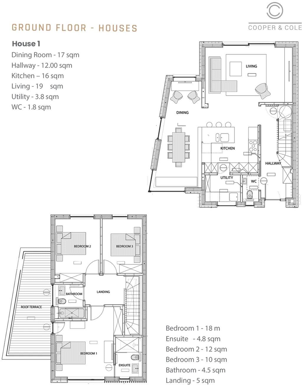
Set on the Kent coast in the historic town of Hythe, this thoughtfully built 3 bedroom home offers a rare blend of quality, space and exceptional sea views. Just over 50 minutes from London by train. Ideal for those seeking a quieter pace of life without compromising on standards, the proper...

Property Oracle says ..

This property is a modern detached house located in Highridge, Hythe, Kent. The images show a newly built, high-quality home with a contemporary design. The interior is bright, spacious, and features an open-plan living area, modern kitchen, and three well-appointed bedrooms and bathrooms. The property benefits from a good-sized garden and enjoys views of the sea. The location is desirable, being close to local amenities, schools, and transport links. The average house price in the area is significantly lower than the list price of this property, but this is likely due to the superior quality and modern design of this new build. The lack of plot size data in the listing is unusual.

Therefore, we give this property 8 / 10. *Disclaimer: This is our option and does constitute a recommendation or financial advice. Do your own research. *

Price
8
Condition
10
Location
9
Land
7
Bedrooms
3
Bathrooms
3
Sqft (est)
1,333.65

The heatmap indicates the level of crime in the area. The color of the heatmap indicates the crime severity and recency.

Metrics Year-on-Year

Average area value
695,750.00 £
Increased by 35.80 %
from 512,325.00 £
Est sale value
777,517.95 £
Increased by 15.22 %
from 674,826.90 £
Average area rental value
1,400.00 £/mo
Decreased by 11.56 %
from 1,583.00 £/mo
Est letting value
1,333.65 £/mo
Unchanged by 0.00 %
from 1,333.65 £/mo
Est rental Yield
2.41 %
Decreased by 35.04 %
from 3.71 %
Crime Rate
7.00 %
Unchanged by 0.00 %
from 7.00 %

Agent Activity

  • The London Broker created the listing.

Nearby Schools

NameTypeOfstedDistance
Seabrook Church Of England Primary SchoolVoluntary Controlled SchoolOutstanding0.72 KM
Folkestone, St Martin'S Church Of England Primary SchoolVoluntary Controlled SchoolOutstanding1.73 KM
Cheriton Primary SchoolFoundation SchoolGood2.40 KM
All Soul'S Church Of England Primary SchoolAcademy Converter3.42 KM
Harcourt Primary SchoolFoundation SchoolGood3.67 KM

Images

Picture No. 23 Picture No. 43 Picture No. 40 Picture No. 14 Picture No. 41 Picture No. 31 Picture No. 42 Picture No. 33 Picture No. 32 Picture No. 08 Picture No. 35 Picture No. 16 Picture No. 18 Picture No. 15 Picture No. 30 Picture No. 21 Picture No. 22 Picture No. 09 Picture No. 11 Picture No. 12 Picture No. 19 Picture No. 24 Picture No. 20 Picture No. 26 Picture No. 28 Picture No. 34 Picture No. 07 Picture No. 13 Picture No. 39

Nearby Streets

NameAverage PriceAverage SqftDistance
Highridge £ 000.00 KM
Colin's Way £ 000.00 KM
Owens Close £ 000.00 KM
Brook Close £ 000.00 KM
Victoria Terrace £ 000.00 KM

Nearby Transport

NameNLCTLCDistance
Folkestone West5027FKW4.57 KM
Sandling5025SDG5.59 KM
Folkestone Central5035FKC6.22 KM
Westenhanger5030WHA8.70 KM

Nearby Listings

AddressPriceTypeScoreDistance
Highridge, Hythe, Kent, CT21 £ 795,000BUY8 / 100.00 KM
Highridge, Hythe, Kent, CT21 £ 695,000BUY8 / 100.00 KM
Naildown Road, Hythe, Kent, CT21 £ 550,000BUY6 / 100.01 KM
Naildown Road, Hythe, Kent, CT21 £ 850,000BUY7 / 100.03 KM
Coastlands, Naildown Road, Hythe, Kent, CT21 £ 550,000BUY7 / 100.04 KM

Nearby Properties

AddressPriceDistance
2 Seabrook Mount £ 520,0000.05 KM
29 Naildown Road £ 1,350,0000.06 KM
27 Naildown Road £ 475,0000.06 KM
25 Naildown Road £ 390,0000.06 KM
21 Naildown Road £ 575,0000.06 KM