Walcot Close, Oundle, Northamptonshire, PE8
Woodford & Co logo

Walcot Close, Oundle, Northamptonshire, PE8

By Woodford & Co

£ 450,000

Reviews

3 out of 5 stars

Woodford & Co says ..

A detached four bedroom house, with a double garage and ample parking, set on a popular development - offered with no onward chain.

Property Oracle says ..

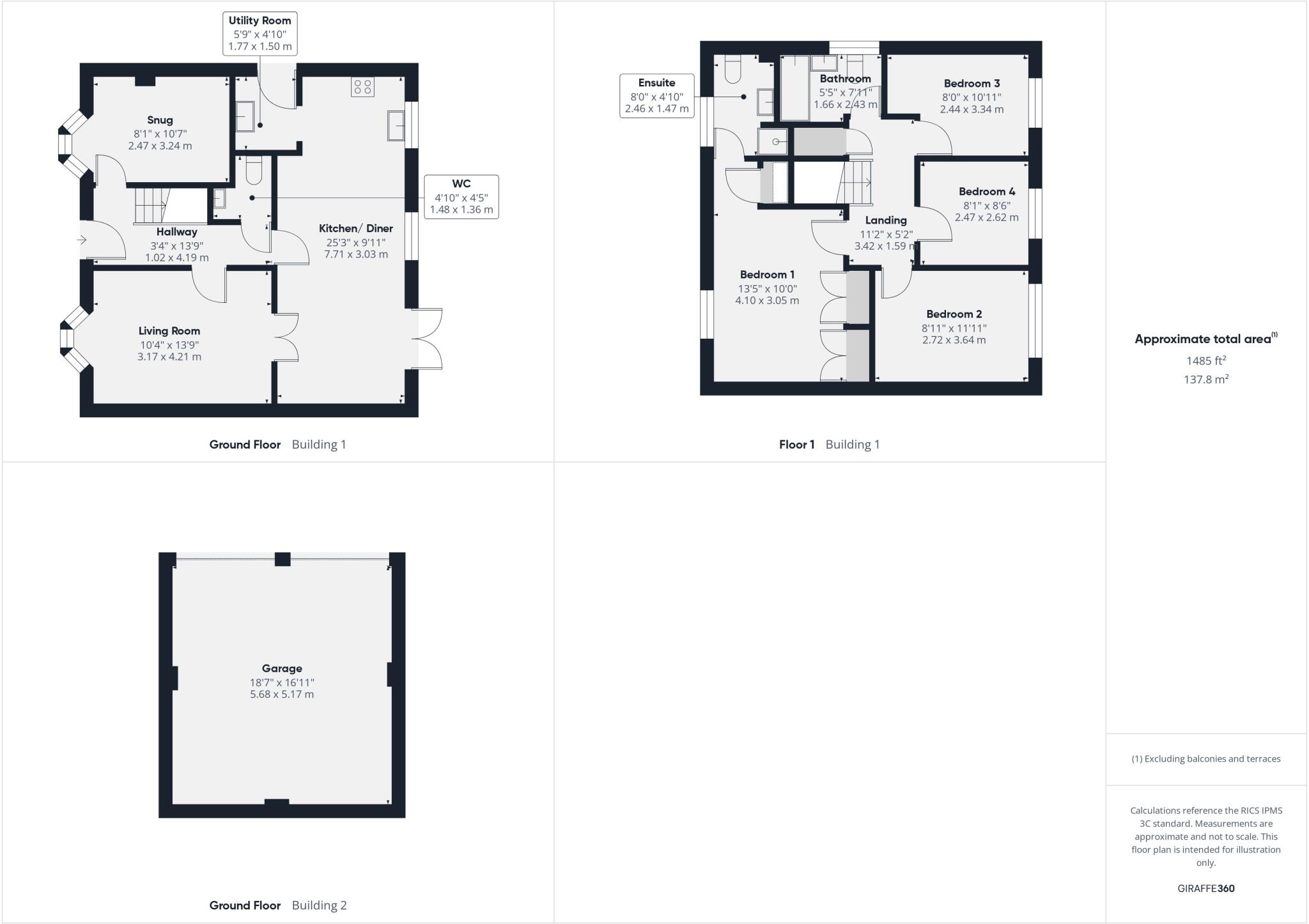
This is a detached property in Oundle, Northamptonshire, featuring four bedrooms and two bathrooms. The house offers 1,432.78 sqft of living space and includes a garden. The property is located within a reasonable distance of local schools and amenities. While generally well-maintained, some areas could benefit from modernization. The listing price of £450,000 appears competitive for the area and the size of the property. It also benefits from off street parking and a garage.

Therefore, we give this property 6 / 10. *Disclaimer: This is our option and does constitute a recommendation or financial advice. Do your own research. *

Price
7
Condition
7
Location
7
Land
6
Bedrooms
4
Bathrooms
2
Sqft (est)
1,432.78

The heatmap indicates the level of crime in the area. The color of the heatmap indicates the crime severity and recency.

Metrics Year-on-Year

Average area value
456,979.00 £
Decreased by 5.11 %
from 481,596.00 £
Est sale value
580,275.90 £
Increased by 34.55 %
from 431,266.78 £
Average area rental value
1,544.00 £/mo
Increased by 21.96 %
from 1,266.00 £/mo
Est letting value
1,432.78 £/mo
from 0.00 £/mo
Est rental Yield
4.05 %
Increased by 28.57 %
from 3.15 %
Crime Rate
10.00 %
Unchanged by 0.00 %
from 10.00 %

Agent Activity

  • Woodford & Co created the listing.

Nearby Schools

NameTypeOfstedDistance
Oundle Church Of England Primary SchoolAcademy Converter0.48 KM
Oundle Children'S CentreChildren's Centre0.88 KM
Oundle SchoolOther Independent School1.37 KM
Laxton Junior SchoolOther Independent School1.92 KM
Prince William SchoolAcademy Sponsor LedGood2.37 KM

Images

Picture No. 06 Picture No. 02 Picture No. 28 Picture No. 26 Picture No. 23 Picture No. 17 Picture No. 30 Picture No. 31 Picture No. 35 Picture No. 13 Picture No. 11 Picture No. 14 Picture No. 08 Picture No. 25 Picture No. 21 Picture No. 19 Picture No. 29

Nearby Streets

NameAverage PriceAverage SqftDistance
Watson Close £ 000.00 KM
Ray Close £ 650,00000.00 KM
Lime Avenue £ 000.00 KM
Oak Close £ 000.00 KM
Primrose Drive £ 112,50000.00 KM

Nearby Listings

AddressPriceTypeScoreDistance
Walcot Close, Oundle, Northamptonshire, PE8 £ 450,000BUY6 / 100.00 KM
Creed Road, Oundle, Northamptonshire, PE8 £ 315,000BUY7 / 100.09 KM
Siddons Close, Oundle £ 270,000BUY7 / 100.14 KM
Mclaren Street, South Cambridgeshire, Cambridgeshire, CB23 £ 87,500BUYUnknown0.17 KM
Tilley Hill Close, Oundle, Peterborough £ 400,000BUY7 / 100.18 KM

Nearby Properties

AddressPriceDistance
22 Creed Road £ 220,0000.05 KM
58 Creed Road £ 160,0000.05 KM
98 Creed Road £ 205,0000.05 KM
68 Creed Road £ 59,9950.05 KM
26 Creed Road £ 208,0000.05 KM