Chancellors says ..
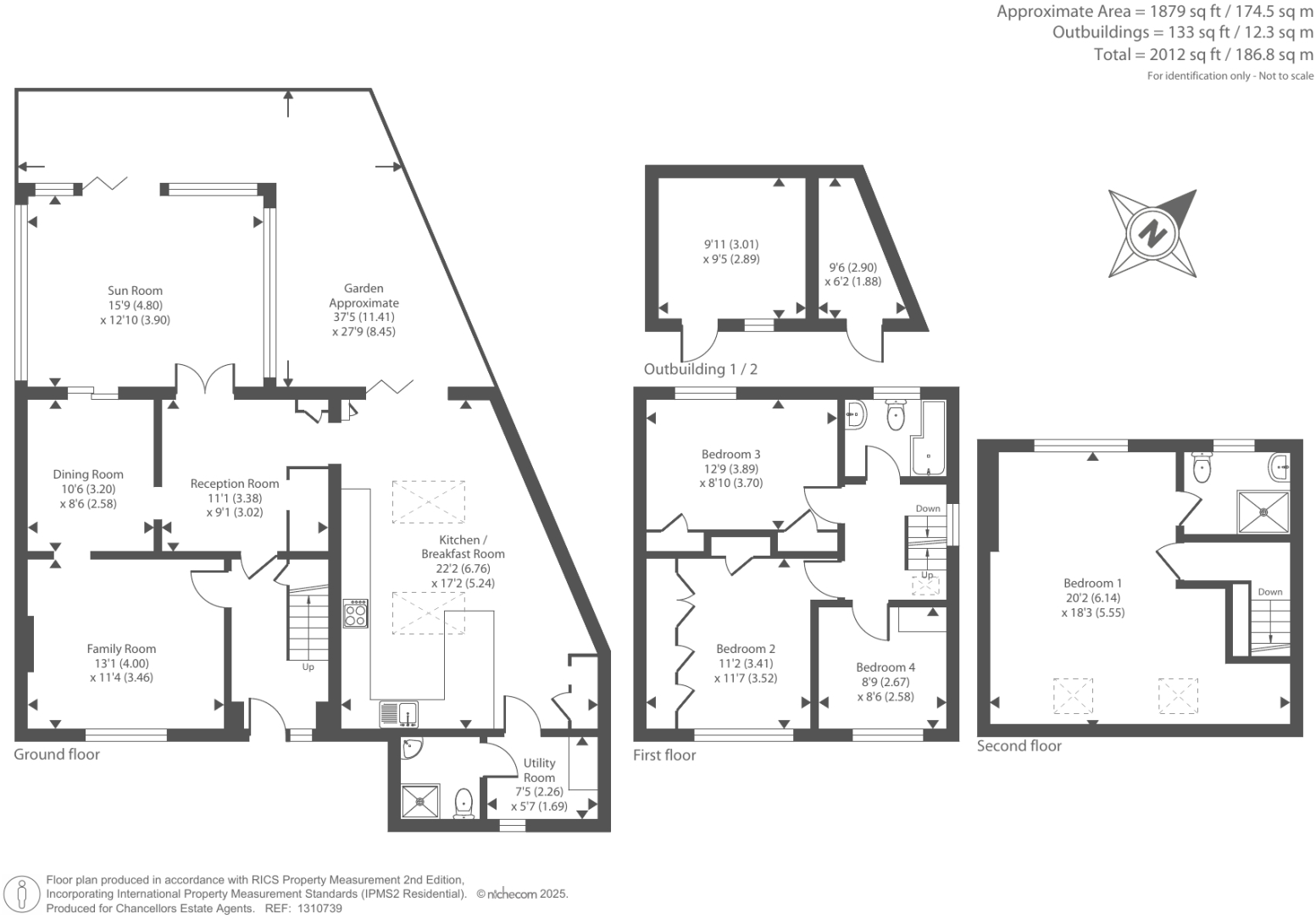
Presenting to market a four bedroom property located in Staines with the potential to convert it into a HMO. This property comes with a private garden and is located near schools and transport facilities. Viewings are highly recommended.
Property Oracle says ..
Therefore, we give this property 6 / 10. *Disclaimer: This is our option and does constitute a recommendation or financial advice. Do your own research. *
- Price
- 6
- Condition
- 7
- Location
- 7
- Land
- 7
- Bedrooms
- 3
- Bathrooms
- 1
- Sqft (est)
- 1,650.79
The heatmap indicates the level of crime in the area. The color of the heatmap indicates the crime severity and recency.
Metrics Year-on-Year
- Average area value
- 675,000.00 £Increased by 43.07 %
- Est sale value
- 673,522.32 £Decreased by 18.24 %
- Average area rental value
- 2,200.00 £/moIncreased by 22.22 %
- Est letting value
- 1,650.79 £/moUnchanged by 0.00 %
- Est rental Yield
- 3.91 %Decreased by 14.63 %
- Crime Rate
- 19.00 %Unchanged by 0.00 %
from 471,809.00 £
from 823,744.21 £
from 1,800.00 £/mo
from 1,650.79 £/mo
from 4.58 %
from 19.00 %
Agent Activity
Chancellors created the listing.
Nearby Schools
| Name | Type | Ofsted | Distance |
|---|---|---|---|
| Buckland Sure Start Children'S Centre | Children's Centre | 0.90 KM | |
| Buckland Primary School | Community School | Good | 0.99 KM |
| The Matthew Arnold School | Academy Converter | Good | 1.09 KM |
| Ashford Park Primary School | Community School | Good | 1.39 KM |
| Fordway Centre | Academy Alternative Provision Converter | 1.75 KM |
Images
Nearby Streets
| Name | Average Price | Average Sqft | Distance |
|---|---|---|---|
| Ashford Road | £ 800,000 | 0 | 0.00 KM |
| Berryscroft Court | £ 131,667 | 0 | 0.00 KM |
| Buxton Road | £ 0 | 0 | 0.00 KM |
| Warwick Avenue | £ 0 | 0 | 0.00 KM |
| Strode's Crescent | £ 0 | 0 | 0.00 KM |
Nearby Transport
| Name | NLC | TLC | Distance |
|---|---|---|---|
| Ashford (Surrey) | 5667 | AFS | 1.69 KM |
| Staines | 5670 | SNS | 2.90 KM |
| Shepperton | 5605 | SHP | 4.67 KM |
| Heathrow Terminal 4 | 7091 | HAF | 5.16 KM |
| Heathrow Terminal 5 | 9846 | HWV | 5.21 KM |
Nearby Listings
| Address | Price | Type | Score | Distance |
|---|---|---|---|---|
| Gloucester Crescent, Staines-upon-Thames, TW18 | £ 675,000 | BUY | 7 / 10 | 0.00 KM |
| Staines, Surrey TW18, TW18 | £ 675,000 | BUY | 6 / 10 | 0.00 KM |
| Gloucester Crescent, Staines-upon-Thames, Surrey, TW18 | £ 640,000 | BUY | 6 / 10 | 0.05 KM |
| Booth Drive, Staines-upon-Thames, Surrey, TW18 | £ 335,000 | BUY | 6 / 10 | 0.10 KM |
| Booth Drive, Staines-upon-Thames, Surrey, TW18 | £ 325,000 | BUY | 7 / 10 | 0.10 KM |
Nearby Properties
| Address | Price | Distance |
|---|---|---|
| 17 Gloucester Crescent | £ 220,000 | 0.02 KM |
| 15 Gloucester Crescent | £ 432,000 | 0.02 KM |
| 35 Gloucester Crescent | £ 422,500 | 0.02 KM |
| 37 Gloucester Crescent | £ 399,950 | 0.02 KM |
| 298 Kingston Road | £ 541,000 | 0.11 KM |