Roderick Thomas says ..
An attractive rural, Georgian property with four bedrooms on the outskirts of a popular village with a thriving pub and village hall.
Property Oracle says ..
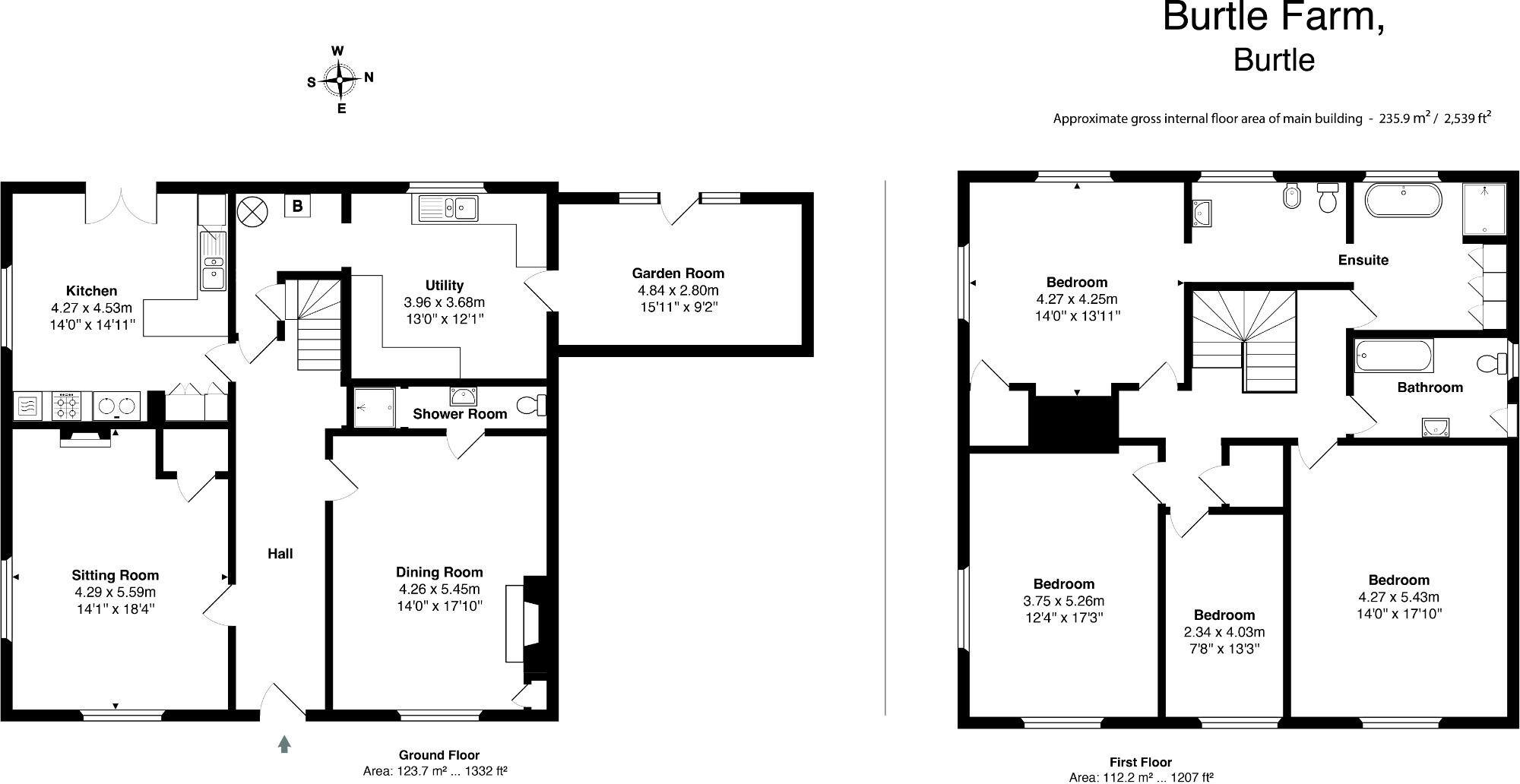
This property in Burtle, near Wedmore, Somerset, presents a charming Georgian-style home. The house boasts four bedrooms and three bathrooms, suggesting ample living space. The interior photographs reveal a mix of traditional and updated elements. The kitchen appears somewhat dated, while other rooms show signs of recent or ongoing updates. There’s a blend of traditional features and modern amenities. The house sits on a plot of land that includes a garden, although the exact size of the land is not provided. The home appears habitable but could benefit from some updating to fully realize its potential. The location is rural, offering tranquility and views of the natural surroundings but limits access to amenities and transportation options. The closest schools are within reasonable travelling distance, though access relies on private transportation. Determining the overall value necessitates accurate square footage and price per square foot data for comparable properties in the area. Without a solid comparison for pricing per square foot, it’s difficult to give an absolute opinion on whether the asking price accurately reflects its current market worth. The house presents a comfortable environment but buyers should carefully assess their transport needs and the potential renovation requirements based on a complete home inspection before purchasing. The pictures reveal a quaint, well-maintained property in a picturesque location.
Therefore, we give this property 5 / 10. *Disclaimer: This is our option and does constitute a recommendation or financial advice. Do your own research. *
- Price
- 7
- Condition
- 6
- Location
- 4
- Land
- 5
- Bedrooms
- 4
- Bathrooms
- 3
- Sqft (est)
- 2,539.21
The heatmap indicates the level of crime in the area. The color of the heatmap indicates the crime severity and recency.
Metrics Year-on-Year
- Average area value
- 206,045.00 £Increased by 4.02 %
- Est sale value
- 424,048.07 £Decreased by 11.17 %
- Average area rental value
- 803.00 £/moIncreased by 3.61 %
- Est letting value
- 0.00 £/mo
- Est rental Yield
- 4.68 %Decreased by 0.21 %
- Crime Rate
- 0.00 %
Agent Activity
Roderick Thomas created the listing.
Nearby Schools
| Name | Type | Ofsted | Distance |
|---|---|---|---|
| Catcott Primary School | Community School | Good | 3.95 KM |
| Sedgemoor Manor School | Other Independent Special School | Good | 4.60 KM |
| Hugh Sexey Church Of England Middle School | Academy Converter | 5.34 KM | |
| Mark First And Pre-School Ce Academy | Academy Converter | Good | 6.44 KM |
| Wedmore First School Academy | Academy Converter | Good | 7.22 KM |
Images
Nearby Listings
| Address | Price | Type | Score | Distance |
|---|---|---|---|---|
| Burtle, Nr. Wedmore | £ 610,000 | BUY | 5 / 10 | 0.00 KM |
| Station Road, Burtle, Bridgwater, TA7 | £ 595,000 | BUY | 7 / 10 | 0.69 KM |
| Edington Road, Burtle, Burtle , TA7 | £ 45,000 | BUY | 6 / 10 | 1.46 KM |
| Burtle Village, Near Mark and Wedmore | £ 525,000 | BUY | 7 / 10 | 1.47 KM |
Nearby Properties
| Address | Price | Distance |
|---|---|---|
| Robins Cottage | £ 205,000 | 0.08 KM |
| 3 Robins Lane | £ 176,500 | 0.08 KM |
| Blagdon Cottage | £ 320,500 | 0.08 KM |
| 5 Robins Lane | £ 189,500 | 0.08 KM |
| 3 Station Road | £ 220,000 | 0.63 KM |