Modern Move says ..
2 Double bedrooms - Courtyard Garden - Character features throughout - Town centre location - Chain free - New gas combination boiler - Council tax band B - EPC D - Grade II listed
Property Oracle says ..
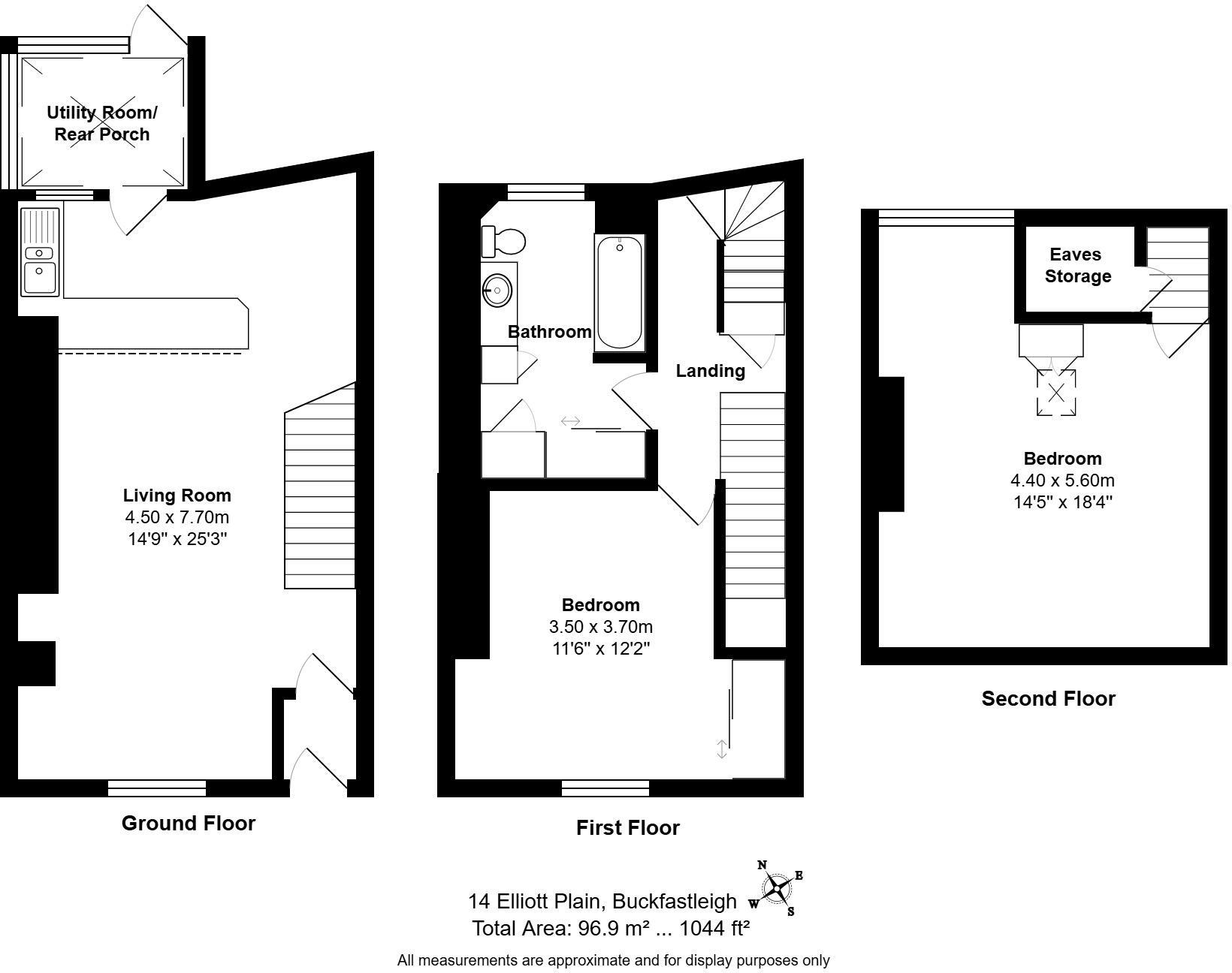
This terraced property is located in Buckfastleigh, Devon, and is listed at £179,950. The property has two bedrooms and one bathroom, spanning 1,043.02 square feet. While the average price per square foot in the area is £329, this property is significantly lower. This could be due to its condition, which appears to require some modernisation or renovation, as shown in the provided images. The property includes a small rear garden, which is a positive aspect. The location is in a residential area with nearby schools, including Buckfastleigh Primary School (Requires Improvement Ofsted rating) and St Mary’s Catholic Primary School (Good Ofsted rating), both within a reasonable distance. However, information on nearby transportation is not provided. Considering the need for potential renovations and the smaller plot size compared to the area average, the price may be reasonable for a buyer looking for a project.
Therefore, we give this property 5 / 10. *Disclaimer: This is our option and does constitute a recommendation or financial advice. Do your own research. *
- Price
- 7
- Condition
- 4
- Location
- 6
- Land
- 3
- Bedrooms
- 2
- Bathrooms
- 1
- Sqft (est)
- 1,043.02
The heatmap indicates the level of crime in the area. The color of the heatmap indicates the crime severity and recency.
Metrics Year-on-Year
- Average area value
- 347,013.00 £Decreased by 8.81 %
- Est sale value
- 294,131.64 £Increased by 12.35 %
- Average area rental value
- 940.00 £/moIncreased by 0.53 %
- Est letting value
- 0.00 £/mo
- Est rental Yield
- 3.25 %Increased by 10.17 %
- Crime Rate
- 24.00 %Unchanged by 0.00 %
Agent Activity
Modern Move created the listing.
Nearby Schools
| Name | Type | Ofsted | Distance |
|---|---|---|---|
| Abc Ashburton And Buckfastleigh Children'S Centre | Children's Centre | 0.35 KM | |
| Buckfastleigh Primary School | Academy Converter | Requires improvement | 0.55 KM |
| St Mary'S Catholic Primary School, Buckfast | Academy Converter | Good | 1.21 KM |
| Ashburton Primary School | Academy Converter | Good | 4.52 KM |
| Sands School | Other Independent School | 4.58 KM |
Images
Nearby Streets
| Name | Average Price | Average Sqft | Distance |
|---|---|---|---|
| Stroud Road | £ 0 | 0 | 0.00 KM |
| Stormsdown Cottages | £ 0 | 0 | 0.00 KM |
| New Road | £ 0 | 0 | 0.00 KM |
| Pioneer Terrace | £ 350,000 | 0 | 0.00 KM |
| Oaklands Close | £ 0 | 0 | 0.00 KM |
Nearby Listings
| Address | Price | Type | Score | Distance |
|---|---|---|---|---|
| Elliott Plain, Buckfastleigh | £ 179,950 | BUY | 5 / 10 | 0.00 KM |
| Elliott Plain, Buckfastleigh | £ 295,000 | BUY | 6 / 10 | 0.01 KM |
| Station Road, Buckfastleigh | £ 120,000 | BUY | 5 / 10 | 0.06 KM |
| Elliott Plain, Buckfastleigh | £ 250,000 | BUY | 7 / 10 | 0.06 KM |
| Fore Street, Buckfastleigh | £ 695,000 | BUY | 7 / 10 | 0.07 KM |
Nearby Properties
| Address | Price | Distance |
|---|---|---|
| 10 Elliott Plain | £ 163,400 | 0.06 KM |
| 17 Elliott Plain | £ 162,500 | 0.06 KM |
| 1a Elliott Plain | £ 125,000 | 0.06 KM |
| 19 Elliott Plain | £ 255,000 | 0.06 KM |
| 16 Elliott Plain | £ 159,950 | 0.06 KM |