Palmerston Place, Edinburgh, EH12
By Macgregor
£ 550,000
Reviews
3 out of 5 stars
Macgregor says ..
31 2F Palmerston Place is a beautifully presented and recently modernised two-bedroom, second-floor apartment in the heart of Edinburgh's West End.
Property Oracle says ..
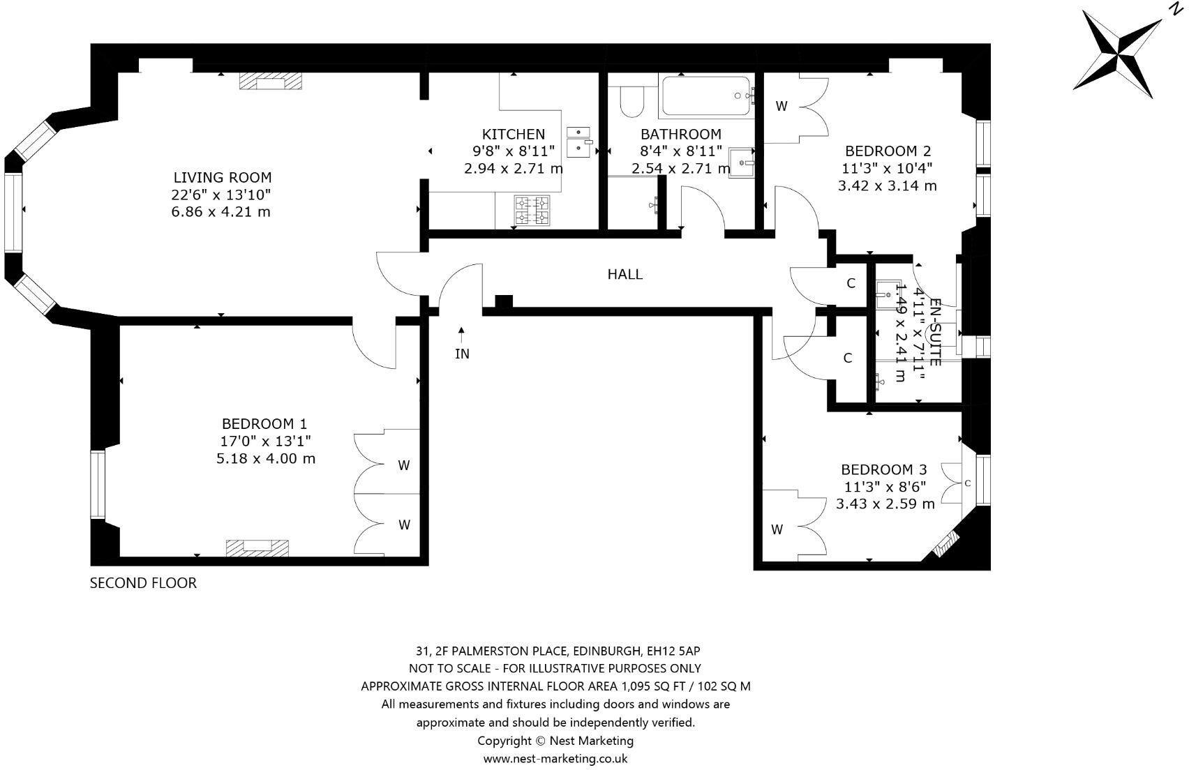
This three-bedroom, two-bathroom property is located on Palmerston Place in Edinburgh’s West End. The images depict a well-presented, tastefully renovated flat within a grand period building. The interior boasts a modern, stylish design with updated kitchen and bathrooms, which complement the period features of the building. The lack of outdoor space is a notable downside, given the absence of a garden or significant private land. The property is in a prime location, offering easy access to Haymarket Train station which is a considerable advantage for commuters. The lack of information on specific nearby schools prevents a complete assessment of this aspect. Based on the limited information on nearby properties, pricing appears to be relatively competitive for the area, but additional information, especially regarding square footage of the comparable properties is required for more definitive conclusion. Overall, it is a desirable property in a great location but prospective buyers should weigh the lack of outdoor space against its other strong attributes.
Therefore, we give this property 6 / 10. *Disclaimer: This is our option and does constitute a recommendation or financial advice. Do your own research. *
- Price
- 7
- Condition
- 8
- Location
- 9
- Land
- 1
- Bedrooms
- 3
- Bathrooms
- 2
- Sqft (est)
- 1,097.92
The heatmap indicates the level of crime in the area. The color of the heatmap indicates the crime severity and recency.
Metrics Year-on-Year
- Average area value
- 322,952.00 £Decreased by 27.89 %
- Est sale value
- 377,684.48 £Decreased by 6.52 %
- Average area rental value
- 1,604.00 £/moDecreased by 7.50 %
- Est letting value
- 1,097.92 £/moUnchanged by 0.00 %
- Est rental Yield
- 5.96 %Increased by 28.17 %
- Crime Rate
- 0.00 %
Agent Activity
Macgregor created the listing.
Nearby Schools
| Name | Type | Ofsted | Distance |
|---|---|---|---|
| Merchiston Castle School | Offshore Schools | 5.71 KM | |
| Cargilfield School | Offshore Schools | 9.33 KM |
Images
Nearby Streets
| Name | Average Price | Average Sqft | Distance |
|---|---|---|---|
| Palmerston Place Lane | £ 0 | 0 | 0.00 KM |
| Grosvenor Gardens | £ 0 | 0 | 0.00 KM |
| Sunbury Bridge | £ 0 | 0 | 0.00 KM |
| Distillery Lane | £ 0 | 0 | 0.00 KM |
| Torphichen Place Lane | £ 0 | 0 | 0.00 KM |
Nearby Transport
| Name | NLC | TLC | Distance |
|---|---|---|---|
| Haymarket | 9419 | HYM | 0.40 KM |
| Edinburgh | 9328 | EDB | 3.33 KM |
| Slateford | 9236 | SLA | 3.76 KM |
| Kingsknowe | 9217 | KGE | 6.18 KM |
| Wester Hailes | 9231 | WTA | 8.28 KM |
Nearby Listings
| Address | Price | Type | Score | Distance |
|---|---|---|---|---|
| Palmerston Place, Edinburgh, EH12 | £ 550,000 | BUY | 6 / 10 | 0.00 KM |
| Palmerston Place, Edinburgh | £ 525,000 | BUY | 6 / 10 | 0.01 KM |
| Palmerston Place, West End, Edinburgh, EH12 | £ 460,000 | BUY | 8 / 10 | 0.06 KM |
| Chester Street, West End, Edinburgh, EH3 | £ 895,000 | BUY | 6 / 10 | 0.07 KM |
| 14A Rothesay Place, West End, Edinburgh EH3 7SQ | £ 525,000 | BUY | 7 / 10 | 0.07 KM |