Marina Way, Ripon, HG4
By Dacre Son & Hartley
£ 235,000
Reviews
3 out of 5 stars
Dacre Son & Hartley says ..
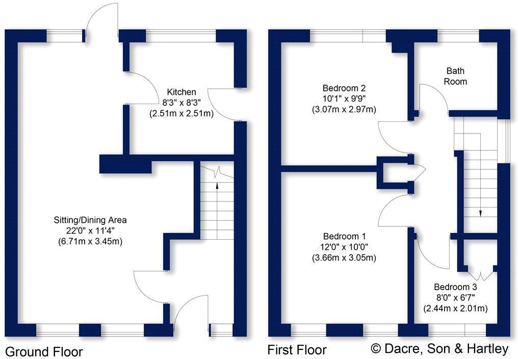
This attractive three bedroom property offers light, flexible living space with a natural flow throughout and convenient access to the rear garden via glazed doors. The first floor provides well-balanced accommodation alongside a modern bathroom. Outside, there is a manageable rear garden and off...
Property Oracle says ..
This is a three-bedroom semi-detached property located on Marina Way in Ripon, North Yorkshire. The property is in a good location, close to schools and local amenities. The property itself would benefit from some modernisation, particularly the bathroom and kitchen. The property has a good-sized garden with a shed, as well as a driveway with parking. The property is listed for £235,000, which appears to be good value for money given the location and the land.
Therefore, we give this property 7 / 10. *Disclaimer: This is our option and does constitute a recommendation or financial advice. Do your own research. *
- Price
- 8
- Condition
- 6
- Location
- 7
- Land
- 7
- Bedrooms
- 3
- Bathrooms
- 1
- Sqft (est)
- 65.91
The heatmap indicates the level of crime in the area. The color of the heatmap indicates the crime severity and recency.
Metrics Year-on-Year
- Average area value
- 688,333.00 £Decreased by 8.54 %
- Est sale value
- 48,180.21 £Increased by 26.03 %
- Average area rental value
- 1,650.00 £/moDecreased by 35.09 %
- Est letting value
- 65.91 £/moUnchanged by 0.00 %
- Est rental Yield
- 2.88 %Decreased by 28.89 %
- Crime Rate
- 6.00 %Unchanged by 0.00 %
Agent Activity
Dacre Son & Hartley created the listing.
Nearby Schools
| Name | Type | Ofsted | Distance |
|---|---|---|---|
| Moorside Primary School & Nursery | Community School | Good | 0.86 KM |
| Outwood Primary Academy Greystone | Academy Sponsor Led | 1.41 KM | |
| Outwood Academy Ripon | Academy Converter | Outstanding | 1.50 KM |
| St Wilfrid'S Catholic Primary School | Voluntary Aided School | Outstanding | 1.63 KM |
| Ripon Grammar School | Community School | Outstanding | 1.76 KM |
Images
Nearby Streets
| Name | Average Price | Average Sqft | Distance |
|---|---|---|---|
| Sycamore Road | £ 200,000 | 0 | 0.00 KM |
| Catherdral Mews | £ 625,000 | 0 | 0.00 KM |
| Grove Close | £ 0 | 0 | 0.00 KM |
| Harewood Road | £ 0 | 0 | 0.00 KM |
| Greystone Close | £ 599,998 | 0 | 0.00 KM |
Nearby Listings
| Address | Price | Type | Score | Distance |
|---|---|---|---|---|
| Marina Way, Ripon, HG4 | £ 235,000 | BUY | 7 / 10 | 0.00 KM |
| Marina Way, Ripon, HG4 2LJ | £ 260,000 | BUY | Unknown | 0.00 KM |
| Heather Road, Ripon | £ 80,000 | BUY | Unknown | 0.04 KM |
| Heather Road, Ripon | £ 152,500 | BUY | 8 / 10 | 0.04 KM |
| West Lane , Ripon, North Yorkshire, HG4 2LQ | £ 344,995 | BUY | Unknown | 0.05 KM |
Nearby Properties
| Address | Price | Distance |
|---|---|---|
| 25 Marina Way | £ 271,000 | 0.01 KM |
| 16 Marina Way | £ 183,000 | 0.01 KM |
| 23 Marina Way | £ 257,000 | 0.01 KM |
| 22 Marina Way | £ 385,000 | 0.01 KM |
| 14 Marina Way | £ 178,000 | 0.01 KM |