Chester Road, Whitby, Ellesmere Port
By Cavendish Residential
£ 200,000
Reviews
3 out of 5 stars
Cavendish Residential says ..
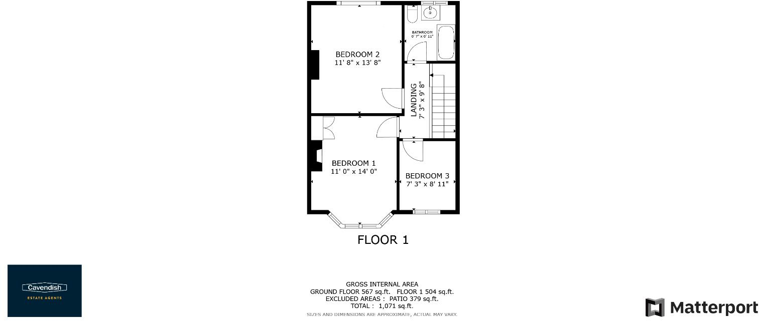
* BEAUTIFULLY PRESENTED HOME * DRIVEWAY PARKING & EASY TO MAINTAIN GARDEN * CLOSE TO WHITBY HIGH SCHOOL. An attractive three bedroom terraced house conveniently located along Chester Road in Whitby. The accommodation briefly comprises: reception hall, living room with bay window overlooking the f...
Property Oracle says ..
This three-bedroom terraced house located on Chester Road in Whitby, Ellesmere Port, presents a compelling proposition for potential buyers. The property benefits from a recent renovation, evidenced by a modern kitchen, updated bathroom and contemporary interior design. The aesthetic improvements create a comfortable and stylish living space. The location is convenient for families with the close proximity to Whitby High School, and access to additional schools and the train station. The paved garden, though not expansive, offers a private outdoor area. The asking price of £200,000 appears reasonable, in line with nearby property values. While a complete absence of square footage data for local properties hampers a fully comprehensive analysis, this property makes a strong overall first impression with a lot of potential. However, prospective buyers might want to verify local amenities availability and undertake a thorough survey of the property before committing to a purchase. The absence of a plot size is an important data point missing from this assessment.
Therefore, we give this property 6 / 10. *Disclaimer: This is our option and does constitute a recommendation or financial advice. Do your own research. *
- Price
- 7
- Condition
- 8
- Location
- 7
- Land
- 4
- Bedrooms
- 3
- Bathrooms
- 1
- Sqft (est)
- 1,071.00
The heatmap indicates the level of crime in the area. The color of the heatmap indicates the crime severity and recency.
Metrics Year-on-Year
- Average area value
- 258,571.00 £Decreased by 18.16 %
- Est sale value
- 351,288.00 £Increased by 11.95 %
- Average area rental value
- 1,230.00 £/moIncreased by 21.30 %
- Est letting value
- 1,071.00 £/mo
- Est rental Yield
- 5.71 %Increased by 48.31 %
- Crime Rate
- 15.00 %Unchanged by 0.00 %
Agent Activity
Cavendish Residential marked this listing as sold.
Cavendish Residential created the listing.
Nearby Schools
| Name | Type | Ofsted | Distance |
|---|---|---|---|
| The Whitby High School | Foundation School | Requires improvement | 0.17 KM |
| Ellesmere Port Christ Church Cofe Primary School | Voluntary Aided School | Good | 0.73 KM |
| Woodlands Primary School | Community School | Requires improvement | 0.79 KM |
| Whitby Heath Primary School | Community School | Outstanding | 0.85 KM |
| Our Lady Star Of The Sea Catholic Primary School | Voluntary Aided School | Good | 0.88 KM |
Images
Nearby Streets
| Name | Average Price | Average Sqft | Distance |
|---|---|---|---|
| Fairview Road | £ 250,000 | 0 | 0.00 KM |
| Clare Drive | £ 0 | 0 | 0.00 KM |
| Holmwood Drive | £ 0 | 0 | 0.00 KM |
| Queens Avenue | £ 365,000 | 0 | 0.00 KM |
| Salters Gate | £ 0 | 0 | 0.00 KM |
Nearby Transport
| Name | NLC | TLC | Distance |
|---|---|---|---|
| Ellesmere Port | 2121 | ELP | 2.56 KM |
| Overpool | 2157 | OVE | 2.74 KM |
| Capenhurst | 2186 | CPU | 3.57 KM |
| Little Sutton | 2156 | LTT | 4.40 KM |
| Bache | 2187 | BAC | 6.43 KM |
Nearby Listings
| Address | Price | Type | Score | Distance |
|---|---|---|---|---|
| Heath Avenue, Whitby, Ellesmere Port, Cheshire, CH65 | £ 230,000 | BUY | Unknown | 0.09 KM |
| Heath Avenue, Whitby, Ellesmere Port, CH65 | £ 190,000 | BUY | 7 / 10 | 0.10 KM |
| Woodland Road, Whitby, Ellesmere Port | £ 250,000 | BUY | 7 / 10 | 0.20 KM |
| Woodland Road, Whitby, Ellesmere Port | £ 350,000 | BUY | 7 / 10 | 0.20 KM |
| Birch Grove, Whitby, Ellesmere Port | £ 270,000 | BUY | 7 / 10 | 0.24 KM |
Nearby Properties
| Address | Price | Distance |
|---|---|---|
| 229 Chester Road | £ 220,500 | 0.08 KM |
| 231 Chester Road | £ 146,000 | 0.08 KM |
| 239 Chester Road | £ 167,500 | 0.09 KM |
| 223 Chester Road | £ 130,000 | 0.09 KM |
| 221 Chester Road | £ 181,000 | 0.09 KM |