Pearsons says ..
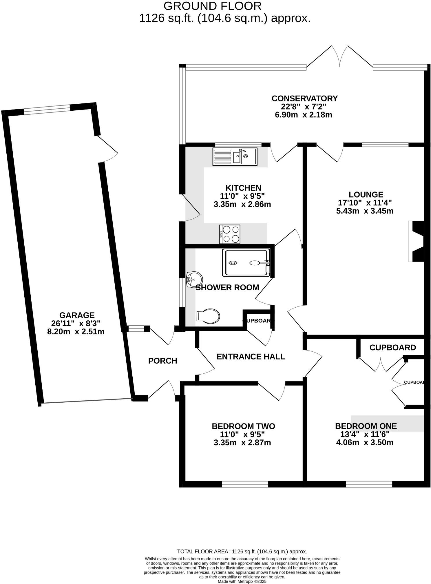
An extremely well-presented two bedroom semi-detached bungalow which has been greatly improved by its present owners to create a beautiful home. The bungalow's accommodation briefly comprises entrance porch leading to an 'L' shaped entrance hall, two bedrooms; the principal bedroom with built-in ...
Property Oracle says ..
This is a well-presented semi-detached bungalow in Fareham North-West. The property benefits from a modern kitchen and bathroom, a conservatory, and a good-sized garden with a shed. Solar panels have been installed, which is a bonus. The location is convenient for schools and transportation. However, the asking price appears to be on the higher side compared to similar properties in the area. Potential buyers should consider this in light of the property’s condition and features.
Therefore, we give this property 7 / 10. *Disclaimer: This is our option and does constitute a recommendation or financial advice. Do your own research. *
- Price
- 6
- Condition
- 8
- Location
- 7
- Land
- 7
- Bedrooms
- 2
- Bathrooms
- 1
- Sqft (est)
- 1,126.00
The heatmap indicates the level of crime in the area. The color of the heatmap indicates the crime severity and recency.
Metrics Year-on-Year
- Average area value
- 323,750.00 £Increased by 2.59 %
- Est sale value
- 380,588.00 £Increased by 9.03 %
- Average area rental value
- 1,309.00 £/moIncreased by 25.26 %
- Est letting value
- 1,126.00 £/moUnchanged by 0.00 %
- Est rental Yield
- 4.85 %Increased by 22.17 %
- Crime Rate
- 5.00 %Unchanged by 0.00 %
Agent Activity
Pearsons created the listing.
Nearby Schools
| Name | Type | Ofsted | Distance |
|---|---|---|---|
| Orchard Lea Infant School | Community School | Good | 0.50 KM |
| Orchard Lea Junior School | Community School | Good | 0.57 KM |
| St Jude'S Catholic Primary School | Voluntary Aided School | Good | 1.00 KM |
| Fareham College | Further Education | Outstanding | 1.07 KM |
| Uplands Primary School | Community School | Good | 1.25 KM |
Images
Nearby Streets
| Name | Average Price | Average Sqft | Distance |
|---|---|---|---|
| Braemar Close | £ 0 | 0 | 0.00 KM |
| Craven Court | £ 315,000 | 0 | 0.00 KM |
| Hillary Close | £ 355,000 | 0 | 0.00 KM |
| Coppice Way | £ 440,000 | 0 | 0.00 KM |
| Gold Close | £ 0 | 0 | 0.00 KM |
Nearby Transport
| Name | NLC | TLC | Distance |
|---|---|---|---|
| Fareham | 5900 | FRM | 1.34 KM |
| Swanwick | 5920 | SNW | 7.30 KM |
| Portchester | 5928 | PTC | 8.66 KM |
| Botley | 5894 | BOE | 8.91 KM |
Nearby Listings
| Address | Price | Type | Score | Distance |
|---|---|---|---|---|
| DUNDEE CLOSE, FAREHAM | £ 375,000 | BUY | 7 / 10 | 0.00 KM |
| Angus Close, Fareham, Hampshire, PO15 | £ 300,000 | BUY | 7 / 10 | 0.06 KM |
| Inverness Avenue, Fareham, Hampshire, PO15 | £ 400,000 | BUY | 6 / 10 | 0.14 KM |
| BALMORAL ROAD, FAREHAM | £ 400,000 | BUY | 6 / 10 | 0.15 KM |
| Stirling Court, Inverness Avenue, Fareham | £ 172,500 | BUY | 6 / 10 | 0.17 KM |
Nearby Properties
| Address | Price | Distance |
|---|---|---|
| 7 Dundee Close | £ 172,000 | 0.01 KM |
| 4 Dundee Close | £ 160,000 | 0.01 KM |
| 9 Dundee Close | £ 269,950 | 0.01 KM |
| 8 Dundee Close | £ 240,000 | 0.01 KM |
| 10 Dundee Close | £ 175,000 | 0.01 KM |