eXp UK says ..
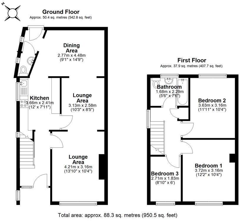
We will be conducting viewings on Saturday 5th July 2025 - BY APPOINTMENT ONLY! Owned by the same family since it was built in 1956 and offered with NO CHAIN is this fantastic Three bedroom extended semi-detached family home located in the ever popular Coombfield Drive. The property com...
Property Oracle says ..
Therefore, we give this property 6 / 10. *Disclaimer: This is our option and does constitute a recommendation or financial advice. Do your own research. *
- Price
- 7
- Condition
- 6
- Location
- 7
- Land
- 5
- Bedrooms
- 3
- Bathrooms
- 1
- Sqft (est)
- 950.45
The heatmap indicates the level of crime in the area. The color of the heatmap indicates the crime severity and recency.
Metrics Year-on-Year
- Average area value
- 680,617.00 £Decreased by 16.07 %
- Est sale value
- 425,801.60 £Decreased by 14.18 %
- Average area rental value
- 1,914.00 £/moIncreased by 14.68 %
- Est letting value
- 950.45 £/moUnchanged by 0.00 %
- Est rental Yield
- 3.37 %Increased by 36.44 %
- Crime Rate
- 5.00 %Unchanged by 0.00 %
from 810,933.00 £
from 496,134.90 £
from 1,669.00 £/mo
from 950.45 £/mo
from 2.47 %
from 5.00 %
Agent Activity
eXp UK created the listing.
Nearby Schools
| Name | Type | Ofsted | Distance |
|---|---|---|---|
| Greenlands Primary School | Academy Converter | 0.90 KM | |
| Greenlands At Darenth Children'S Centre | Children's Centre | 0.94 KM | |
| Fleetdown Primary Academy | Academy Converter | 1.94 KM | |
| Stone St Mary'S Cofe Primary School | Academy Converter | Good | 2.26 KM |
| The Brent Primary School | Academy Converter | Outstanding | 2.70 KM |
Images
Nearby Streets
| Name | Average Price | Average Sqft | Distance |
|---|---|---|---|
| Hillside | £ 0 | 0 | 0.00 KM |
| Roman Villa Road | £ 0 | 0 | 0.00 KM |
| St Margarets Road | £ 0 | 0 | 0.00 KM |
| Gore Road | £ 375,000 | 0 | 0.00 KM |
| Watling Street | £ 0 | 0 | 0.00 KM |
Nearby Transport
| Name | NLC | TLC | Distance |
|---|---|---|---|
| Stone Crossing | 5248 | SCG | 3.29 KM |
| Farningham Road | 5105 | FNR | 3.45 KM |
| Greenhithe For Bluewater | 5138 | GNH | 3.94 KM |
| Dartford | 5101 | DFD | 5.19 KM |
| Longfield | 5114 | LGF | 5.44 KM |
Nearby Listings
| Address | Price | Type | Score | Distance |
|---|---|---|---|---|
| Coombfield Drive, Dartford, Kent | £ 425,000 | BUY | 6 / 10 | 0.00 KM |
| Coombfield Drive, Darenth, Dartford, Kent, DA2 | £ 325,000 | BUY | 6 / 10 | 0.01 KM |
| Coombfield Drive, Darenth, Kent, DA2 | £ 400,000 | BUY | 6 / 10 | 0.01 KM |
| Coombfield Drive, Darenth, Kent, DA2 | £ 375,000 | BUY | 5 / 10 | 0.04 KM |
| Coombfield Drive, Dartford | £ 350,000 | BUY | Unknown | 0.08 KM |
Nearby Properties
| Address | Price | Distance |
|---|---|---|
| 22 Coombfield Drive | £ 410,000 | 0.01 KM |
| 20 Coombfield Drive | £ 355,000 | 0.01 KM |
| 48 Coombfield Drive | £ 230,000 | 0.01 KM |
| 44 Coombfield Drive | £ 181,000 | 0.01 KM |
| 6 Coombfield Drive | £ 205,000 | 0.01 KM |