Hunters says ..
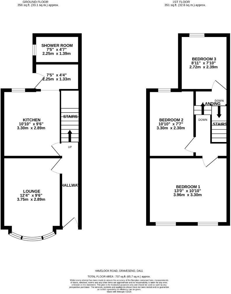
Offered for sale with NO FORWARD CHAIN is this three bedroom terrace property located on Havelock Road. The accommodation comprises of entrance hall, lounge, kitchen, shower room, three bedrooms to the first floor and features a low maintenance rear garden. The property is con...
Property Oracle says ..
The property is located on Havelock Road in Gravesend, Kent, specifically in the Pelham locality. It’s a terraced house with 3 bedrooms and 1 bathroom. The location benefits from being located close to schooling and transport links. Based on the images, the property is in need of renovation. The property has a garden. The listing price of £270,000 is above the average for the area. Given the condition of the property, it may be considered overpriced.
Therefore, we give this property 5 / 10. *Disclaimer: This is our option and does constitute a recommendation or financial advice. Do your own research. *
- Price
- 4
- Condition
- 3
- Location
- 8
- Land
- 6
- Bedrooms
- 3
- Bathrooms
- 1
- Sqft (est)
- 707.00
The heatmap indicates the level of crime in the area. The color of the heatmap indicates the crime severity and recency.
Metrics Year-on-Year
- Average area value
- 238,083.00 £Decreased by 19.19 %
- Est sale value
- 212,807.00 £Decreased by 17.31 %
- Average area rental value
- 1,361.00 £/moIncreased by 8.10 %
- Est letting value
- 707.00 £/moUnchanged by 0.00 %
- Est rental Yield
- 6.86 %Increased by 33.72 %
- Crime Rate
- 10.00 %Unchanged by 0.00 %
Agent Activity
Hunters created the listing.
Nearby Schools
| Name | Type | Ofsted | Distance |
|---|---|---|---|
| Cecil Road Primary And Nursery School | Foundation School | Good | 0.32 KM |
| Mayfield Grammar School, Gravesend | Academy Converter | Outstanding | 0.36 KM |
| Copperfield Academy | Academy Sponsor Led | Good | 0.61 KM |
| Bronte School | Other Independent School | 0.90 KM | |
| Saint George'S Church Of England School | Academy Converter | Good | 1.04 KM |
Images
Nearby Streets
| Name | Average Price | Average Sqft | Distance |
|---|---|---|---|
| Victoria Road | £ 0 | 0 | 0.00 KM |
| Wycliffe Row | £ 0 | 0 | 0.00 KM |
| Lennox Road | £ 0 | 0 | 0.00 KM |
| May Avenue | £ 185,000 | 0 | 0.00 KM |
| Bedford Road | £ 0 | 0 | 0.00 KM |
Nearby Transport
| Name | NLC | TLC | Distance |
|---|---|---|---|
| Gravesend | 5172 | GRV | 1.29 KM |
| Tilbury Town | 7462 | TIL | 2.91 KM |
| Northfleet | 5120 | NFL | 3.68 KM |
| Ebbsfleet International | 5566 | EBD | 3.97 KM |
| Swanscombe | 5156 | SWM | 5.35 KM |
Nearby Listings
| Address | Price | Type | Score | Distance |
|---|---|---|---|---|
| Havelock Road, Gravesend, DA11 | £ 270,000 | BUY | 5 / 10 | 0.00 KM |
| Havelock Road, Gravesend, Kent | £ 280,000 | BUY | 5 / 10 | 0.05 KM |
| Havelock Road, Gravesend, Kent, DA11 | £ 290,000 | BUY | 7 / 10 | 0.08 KM |
| Pelham Road, Gravesend, Kent | £ 248,000 | BUY | Unknown | 0.10 KM |
| Pelham Road, Gravesend, Kent | £ 375,000 | BUY | Unknown | 0.10 KM |
Nearby Properties
| Address | Price | Distance |
|---|---|---|
| 24 Granville Road | £ 295,000 | 0.05 KM |
| 58 Granville Road | £ 155,000 | 0.05 KM |
| 28 Granville Road | £ 133,000 | 0.05 KM |
| 29 Granville Road | £ 312,500 | 0.05 KM |
| 46 Granville Road | £ 130,000 | 0.05 KM |