Aston Rowe says ..
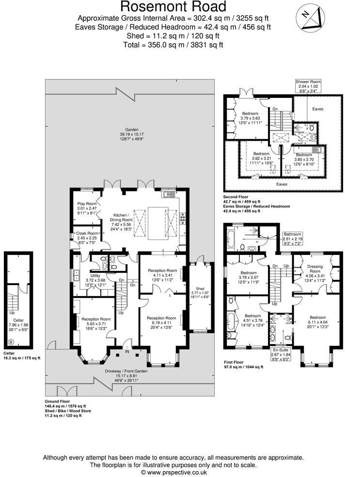
This magnificent and imposing six bedroom double fronted detached Victorian home, situated on one of Acton's premier roads. This one-of-a-kind lateral family home is spread across 3,711 sqft (including eaves) of accommodation space with a modern and spectacular 24 ft open plan kitchen/dining room...
Property Oracle says ..
Therefore, we give this property 8 / 10. *Disclaimer: This is our option and does constitute a recommendation or financial advice. Do your own research. *
- Price
- 7
- Condition
- 10
- Location
- 9
- Land
- 8
- Bedrooms
- 6
- Bathrooms
- 4
- Sqft (est)
- 10,101.50
- Lot (est)
- 3,831.95
The heatmap indicates the level of crime in the area. The color of the heatmap indicates the crime severity and recency.
Metrics Year-on-Year
- Average area value
- 633,524.00 £Decreased by 17.79 %
- Est sale value
- 8,758,000.50 £Increased by 19.92 %
- Average area rental value
- 2,128.00 £/moIncreased by 15.40 %
- Est letting value
- 20,203.00 £/moIncreased by 100.00 %
- Est rental Yield
- 4.03 %Increased by 40.42 %
- Crime Rate
- 2.00 %Unchanged by 0.00 %
from 770,616.00 £
from 7,303,384.50 £
from 1,844.00 £/mo
from 10,101.50 £/mo
from 2.87 %
from 2.00 %
Agent Activity
Aston Rowe created the listing.
Nearby Schools
| Name | Type | Ofsted | Distance |
|---|---|---|---|
| St Vincent'S Catholic Primary School | Voluntary Aided School | Good | 0.09 KM |
| Greek Primary School Of London | Other Independent School | Good | 0.09 KM |
| Twyford Church Of England High School | Academy Converter | Outstanding | 0.39 KM |
| Ark Soane Academy | Free Schools | 0.48 KM | |
| Derwentwater Primary School | Community School | Good | 0.58 KM |
Images
Nearby Streets
| Name | Average Price | Average Sqft | Distance |
|---|---|---|---|
| Rectory Road | £ 0 | 0 | 0.00 KM |
| Mount Place | £ 350,000 | 0 | 0.00 KM |
| Mill Hill Terrace | £ 0 | 0 | 0.00 KM |
| Mill Hill Grove | £ 391,213 | 0 | 0.00 KM |
| High Street | £ 0 | 0 | 0.00 KM |
Nearby Transport
| Name | NLC | TLC | Distance |
|---|---|---|---|
| Acton Main Line | 3000 | AML | 1.07 KM |
| Acton Central | 1404 | ACC | 1.30 KM |
| South Acton | 1452 | SAT | 1.38 KM |
| Gunnersbury | 5588 | GUN | 2.19 KM |
| Kew Bridge | 5593 | KWB | 2.80 KM |
Nearby Listings
| Address | Price | Type | Score | Distance |
|---|---|---|---|---|
| Rosemont Road,Acton, London | £ 3,000,000 | BUY | 8 / 10 | 0.00 KM |
| Rosemont Road, London | £ 650,000 | BUY | 7 / 10 | 0.00 KM |
| Rosemont Road, London | £ 800,000 | BUY | 7 / 10 | 0.04 KM |
| Rosemont Road, London | £ 425,000 | BUY | 6 / 10 | 0.06 KM |
| Rosemont Road, London | £ 650,000 | BUY | 6 / 10 | 0.06 KM |
Nearby Properties
| Address | Price | Distance |
|---|---|---|
| 12 Rosemont Road | £ 990,000 | 0.06 KM |
| 6 Rosemont Road | £ 207,000 | 0.06 KM |
| 10 Rosemont Road | £ 622,500 | 0.06 KM |
| 4 Rosemont Road | £ 1,225,000 | 0.06 KM |
| 16 Rosemont Road | £ 460,000 | 0.12 KM |