The Street, Poslingford, Sudbury
By Jamie Warner Estate Agents
£ 185,000
Reviews
3 out of 5 stars
Jamie Warner Estate Agents says ..
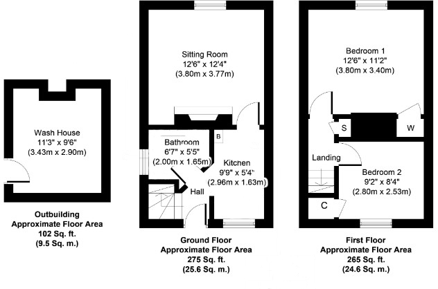
A delightful period cottage located in the quiet Suffolk Village of Poslignford. The property sits in an elevated position and benefits from features including a garden in excess of 100ft, two generous bedrooms and a spacious sitting room with feature fireplace. Outside area benefits from fo...
Property Oracle says ..
This property is a 2-bedroom, 1-bathroom semi-detached house located in Poslingford, Suffolk. The list price is £185,000, and the property has a small garden. The house is in need of some modernisation, but the location is good, with several primary schools within a reasonable distance. The average price for properties in the area is significantly higher than the list price, suggesting it could be good value for money, however, it is important to note that the average sqft in the area is significantly larger than this property.
Therefore, we give this property 6 / 10. *Disclaimer: This is our option and does constitute a recommendation or financial advice. Do your own research. *
- Price
- 8
- Condition
- 6
- Location
- 7
- Land
- 4
- Bedrooms
- 2
- Bathrooms
- 1
- Sqft (est)
- 275.00
The heatmap indicates the level of crime in the area. The color of the heatmap indicates the crime severity and recency.
Metrics Year-on-Year
- Average area value
- 653,333.00 £Increased by 42.36 %
- Est sale value
- 150,975.00 £Increased by 78.25 %
- Average area rental value
- 1,015.00 £/moDecreased by 30.19 %
- Est letting value
- 0.00 £/mo
- Est rental Yield
- 1.86 %Decreased by 51.05 %
- Crime Rate
- 72.00 %Unchanged by 0.00 %
Agent Activity
Jamie Warner Estate Agents created the listing.
Nearby Schools
| Name | Type | Ofsted | Distance |
|---|---|---|---|
| Clare Community Primary School | Academy Sponsor Led | Good | 2.74 KM |
| Stour Valley Community School | Free Schools | Good | 2.83 KM |
| Hundon Community Primary School | Community School | Good | 5.19 KM |
| Cavendish Church Of England Primary School | Voluntary Controlled School | Good | 5.92 KM |
| Belchamp St Paul Church Of England Primary School | Academy Converter | 6.92 KM |
Images
Nearby Listings
| Address | Price | Type | Score | Distance |
|---|---|---|---|---|
| The Street, Poslingford, Sudbury | £ 185,000 | BUY | 6 / 10 | 0.00 KM |
| The Street, Poslingford, Suffolk | £ 525,000 | BUY | Unknown | 0.12 KM |
| The Street, Poslingford, Sudbury | £ 650,000 | BUY | 7 / 10 | 0.14 KM |
| Poslingford, Suffollk | £ 375,000 | BUY | Unknown | 0.21 KM |
| Snow Hill, Clare, Sudbury, Suffolk | £ 375,000 | BUY | 7 / 10 | 1.90 KM |
Nearby Properties
| Address | Price | Distance |
|---|---|---|
| School Cottage | £ 263,000 | 0.09 KM |
| Tudor Lodge | £ 512,000 | 0.09 KM |
| Church Cottage | £ 622,500 | 0.10 KM |
| Highbanks | £ 265,000 | 0.11 KM |
| Marigold Cottage | £ 215,000 | 0.11 KM |