6 Kenilworth Close, Macclesfield, SK11 8PF
By McHugh & Co
£ 40,000
Reviews
2 out of 5 stars
McHugh & Co says ..
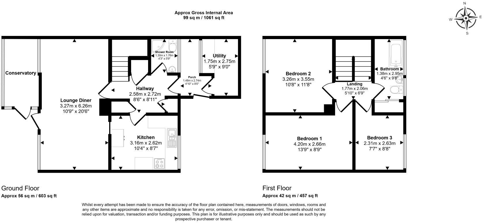
LOT 31 **FOR SALE BY ONLINE AUCTION** on 4th December 2025 Eight Week Completion or Earlier Freehold House Vacant Possession
Property Oracle says ..
The terraced property at 6 Kenilworth Close, Macclesfield, presents a renovation opportunity. While the location offers proximity to schools and transportation, the property’s condition requires significant investment. The garden provides outdoor space, and the price reflects the renovation needs. The property is a traditional build.
Therefore, we give this property 5 / 10. *Disclaimer: This is our option and does constitute a recommendation or financial advice. Do your own research. *
- Price
- 8
- Condition
- 3
- Location
- 6
- Land
- 6
- Bedrooms
- 3
- Bathrooms
- 0
The heatmap indicates the level of crime in the area. The color of the heatmap indicates the crime severity and recency.
Metrics Year-on-Year
- Average area value
- 246,667.00 £Increased by 6.08 %
- Average area rental value
- 1,000.00 £/moDecreased by 7.41 %
- Est rental Yield
- 4.86 %Decreased by 12.75 %
- Crime Rate
- 22.00 %Unchanged by 0.00 %
Agent Activity
McHugh & Co created the listing.
Nearby Schools
| Name | Type | Ofsted | Distance |
|---|---|---|---|
| Ivy Bank Primary School | Academy Converter | Good | 0.67 KM |
| St John The Evangelist Cofe Primary School Macclesfield | Voluntary Aided School | Good | 0.67 KM |
| Broken Cross Primary Academy And Nursery | Academy Sponsor Led | Good | 0.90 KM |
| Broken Cross Children'S Centre | Children's Centre | 0.92 KM | |
| All Hallows Catholic College | Academy Converter | Outstanding | 1.51 KM |
Images
Nearby Streets
| Name | Average Price | Average Sqft | Distance |
|---|---|---|---|
| Ivy Meade Road | £ 229,950 | 0 | 0.00 KM |
| Ivymead Close | £ 199,950 | 0 | 0.00 KM |
| Derwent Close | £ 0 | 0 | 0.00 KM |
| Hazelmere Avenue | £ 325,000 | 0 | 0.00 KM |
| Weston Square | £ 220,000 | 0 | 0.00 KM |
Nearby Transport
| Name | NLC | TLC | Distance |
|---|---|---|---|
| Macclesfield | 2871 | MAC | 3.67 KM |
| Prestbury | 2875 | PRB | 4.74 KM |
| Adlington (Cheshire) | 2939 | ADC | 7.89 KM |
Nearby Listings
| Address | Price | Type | Score | Distance |
|---|---|---|---|---|
| 6 Kenilworth Close, Macclesfield, SK11 8PF | £ 40,000 | BUY | 5 / 10 | 0.00 KM |
| Kenilworth Road, Macclesfield, SK11 | £ 275,000 | BUY | 6 / 10 | 0.12 KM |
| Kenilworth Road, Macclesfield, Cheshire, SK11 | £ 269,950 | BUY | 6 / 10 | 0.13 KM |
| Ambleside Close, Macclesfield | £ 220,000 | BUY | 6 / 10 | 0.14 KM |
| Kenilworth Road, Macclesfield | £ 275,000 | BUY | 6 / 10 | 0.14 KM |
Nearby Properties
| Address | Price | Distance |
|---|---|---|
| 35 Kenilworth Close | £ 90,000 | 0.08 KM |
| 49 Kenilworth Close | £ 98,000 | 0.08 KM |
| 18 Kenilworth Close | £ 188,000 | 0.08 KM |
| 27 Kenilworth Close | £ 84,000 | 0.08 KM |
| 33 Kenilworth Close | £ 100,000 | 0.08 KM |