St. Margarets Close, Darenth Village Park, Dartford, Kent, DA2
By Robinson Jackson
£ 350,000
Reviews
3 out of 5 stars
Robinson Jackson says ..
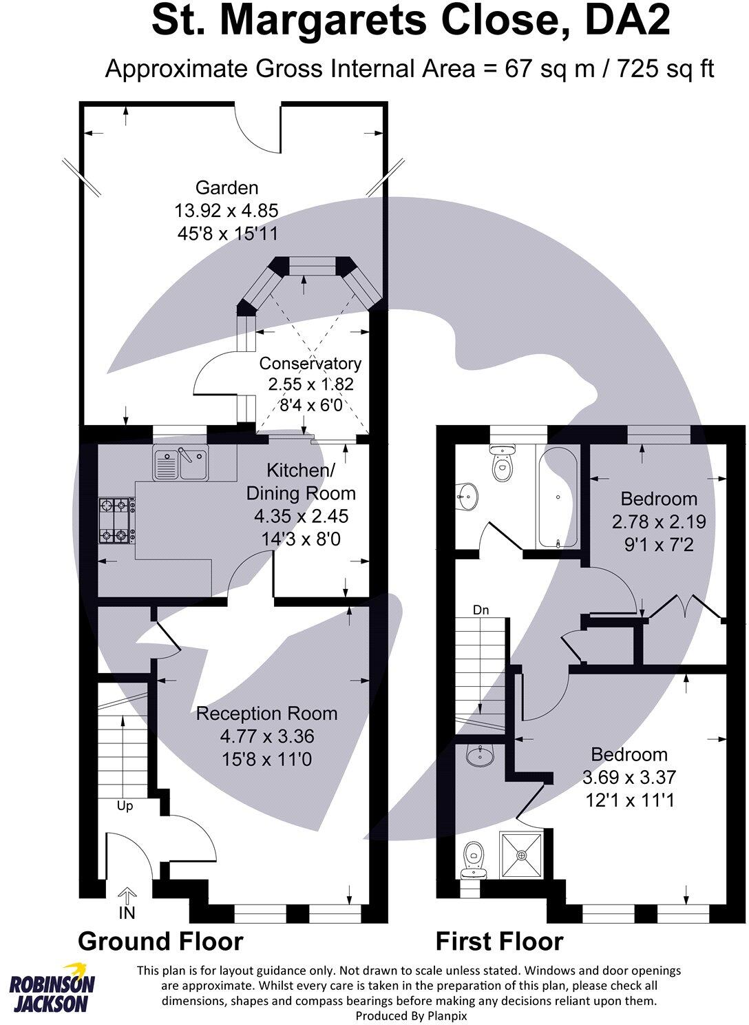
Guide Price £350,000 - £375,000 Robinson Jackson are delighted to offer for sale this two bedroom two bathroom home located on the popular Darenth Village Park Development. The property is located within a Country park and is ideally located for Darent Valley hospital, Bluewater, The ...
Property Oracle says ..
This two-bedroom, two-bathroom house in Darenth Village Park, Dartford, presents a modern and well-maintained living space. The interior is presented in excellent condition with a contemporary aesthetic. The property benefits from a good-sized garden, which is a valuable asset for families. The location offers convenient access to Darenth Valley Hospital and has several primary schools within walking distance. Transport links to other areas are also readily available. However, the immediate neighbourhood lacks the charm of a more established area. The list price appears to be in line with comparable properties in the area, providing a reasonable value proposition. The absence of plot size data in the listing is a minor drawback. Overall, this property is suitable for a small family or couple seeking a modern, well-maintained home in a convenient location.
Therefore, we give this property 7 / 10. *Disclaimer: This is our option and does constitute a recommendation or financial advice. Do your own research. *
- Price
- 7
- Condition
- 8
- Location
- 7
- Land
- 6
- Bedrooms
- 2
- Bathrooms
- 2
- Sqft (est)
- 725.00
The heatmap indicates the level of crime in the area. The color of the heatmap indicates the crime severity and recency.
Metrics Year-on-Year
- Average area value
- 680,617.00 £Decreased by 16.07 %
- Est sale value
- 324,800.00 £Decreased by 14.18 %
- Average area rental value
- 1,914.00 £/moIncreased by 14.68 %
- Est letting value
- 725.00 £/moUnchanged by 0.00 %
- Est rental Yield
- 3.37 %Increased by 36.44 %
- Crime Rate
- 31.00 %Unchanged by 0.00 %
Agent Activity
Robinson Jackson created the listing.
Nearby Schools
| Name | Type | Ofsted | Distance |
|---|---|---|---|
| Fleetdown Primary Academy | Academy Converter | 0.86 KM | |
| Stone St Mary'S Cofe Primary School | Academy Converter | Good | 1.26 KM |
| The Brent Primary School | Academy Converter | Outstanding | 1.40 KM |
| Stone Lodge School | Free Schools | 1.64 KM | |
| The Gateway Primary Academy | Academy Converter | Good | 1.84 KM |
Images
Nearby Streets
| Name | Average Price | Average Sqft | Distance |
|---|---|---|---|
| Gore Road | £ 375,000 | 0 | 0.00 KM |
| Watling Street | £ 0 | 0 | 0.00 KM |
| Wiltshire Close | £ 0 | 0 | 0.00 KM |
| Princes Road | £ 415,000 | 0 | 0.00 KM |
| Radfield Drive | £ 325,000 | 0 | 0.00 KM |
Nearby Transport
| Name | NLC | TLC | Distance |
|---|---|---|---|
| Stone Crossing | 5248 | SCG | 2.26 KM |
| Greenhithe For Bluewater | 5138 | GNH | 3.44 KM |
| Farningham Road | 5105 | FNR | 4.10 KM |
| Dartford | 5101 | DFD | 4.17 KM |
| Purfleet | 7453 | PFL | 5.64 KM |
Nearby Listings
| Address | Price | Type | Score | Distance |
|---|---|---|---|---|
| St. Margarets Close, Darenth Village Park, Dartford, Kent, DA2 | £ 350,000 | BUY | 7 / 10 | 0.00 KM |
| St. Margarets Close, Darenth Park Avenue, Dartford, Kent, DA2 | £ 350,000 | BUY | 6 / 10 | 0.00 KM |
| St. Margarets Close, Dartford, Kent, DA2 | £ 350,000 | BUY | Unknown | 0.00 KM |
| Darenth Park Avenue, Dartford | £ 650,000 | BUY | 7 / 10 | 0.10 KM |
| The Green, Darenth Village Park, Kent, DA2 | £ 625,000 | BUY | 7 / 10 | 0.12 KM |
Nearby Properties
| Address | Price | Distance |
|---|---|---|
| 14 St Margarets Close | £ 178,000 | 0.01 KM |
| 15 St Margarets Close | £ 190,000 | 0.01 KM |
| 4 St Margarets Close | £ 90,950 | 0.01 KM |
| 10 St Margarets Close | £ 225,000 | 0.01 KM |
| 16 St Margarets Close | £ 330,000 | 0.01 KM |