Wye Residential says ..
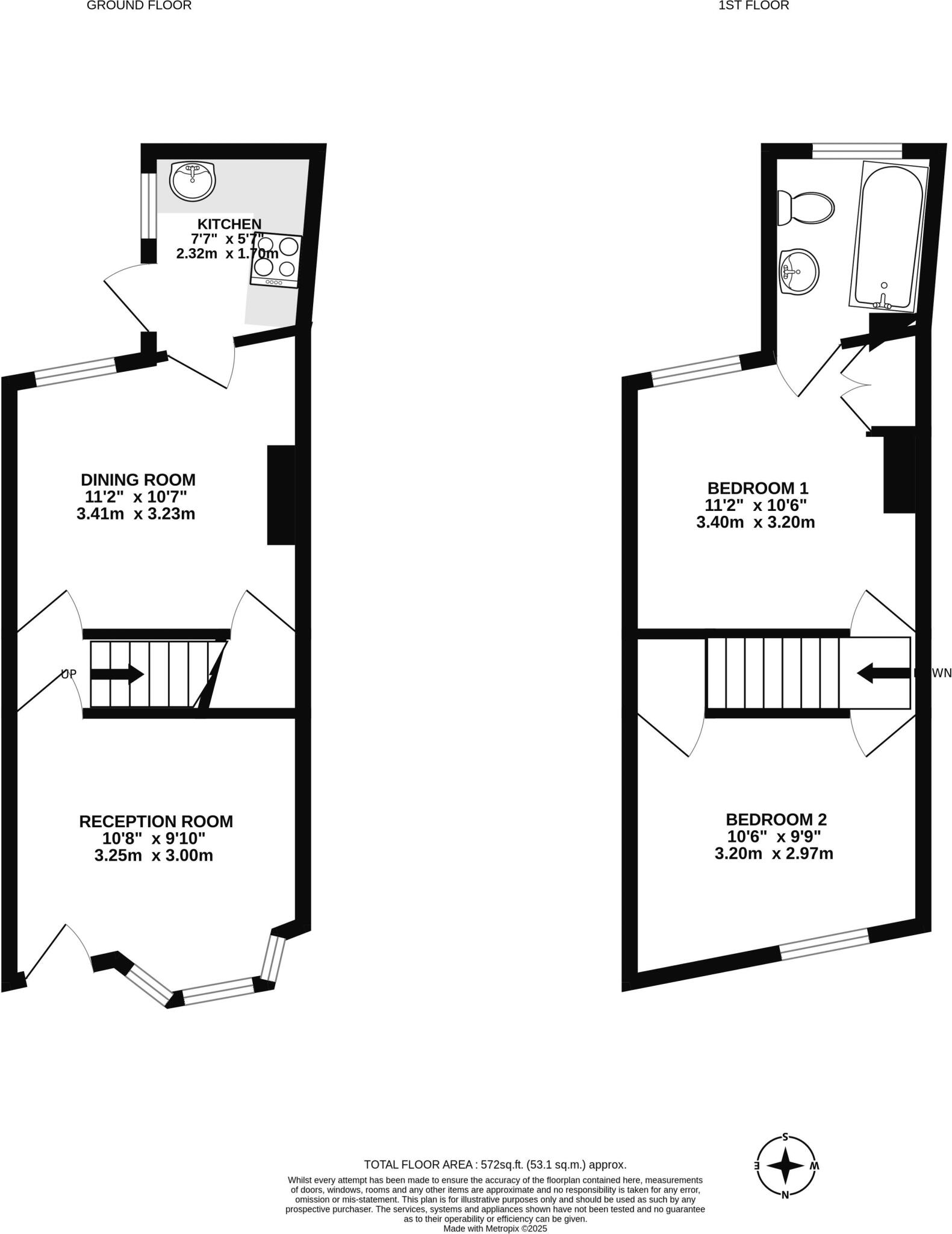
A Victorian terrace cottage that offers potential for further improvement. The property is situated conveniently within easy walking distance of town centre amenities and train station. With accommodation on the ground floor of two separate reception rooms and kitchen with door giving access to t...
Property Oracle says ..
This is a 2-bedroom terraced house on Totteridge Road, High Wycombe. The property is listed with Wye Residential. It is located in a convenient location, close to transportation and schools. However, the property appears to be in need of renovation, with an outdated bathroom and kitchen. The property has a small outdoor area. The price seems reasonable given the location and the need for renovation.
Therefore, we give this property 5 / 10. *Disclaimer: This is our option and does constitute a recommendation or financial advice. Do your own research. *
- Price
- 6
- Condition
- 4
- Location
- 7
- Land
- 3
- Bedrooms
- 2
- Bathrooms
- 1
- Sqft (est)
- 572.00
The heatmap indicates the level of crime in the area. The color of the heatmap indicates the crime severity and recency.
Metrics Year-on-Year
- Average area value
- 388,995.00 £Decreased by 2.22 %
- Est sale value
- 228,800.00 £Decreased by 8.68 %
- Average area rental value
- 1,010.00 £/moDecreased by 17.89 %
- Est letting value
- 572.00 £/moUnchanged by 0.00 %
- Est rental Yield
- 3.12 %Decreased by 15.90 %
- Crime Rate
- 4.00 %Unchanged by 0.00 %
Agent Activity
Wye Residential created the listing.
Nearby Schools
| Name | Type | Ofsted | Distance |
|---|---|---|---|
| The Chalfonts Independent Grammar School | Other Independent School | Good | 0.40 KM |
| Aspire | Academy Alternative Provision Converter | 0.58 KM | |
| Bowerdean Nursery School | Local Authority Nursery School | Outstanding | 0.62 KM |
| Godstowe Preparatory School | Other Independent School | 0.77 KM | |
| Crown House School | Other Independent School | Good | 0.86 KM |
Images
Nearby Streets
| Name | Average Price | Average Sqft | Distance |
|---|---|---|---|
| Elizabeth Court | £ 0 | 0 | 0.00 KM |
| Saint Marks Close | £ 250,000 | 0 | 0.00 KM |
| Birdcage Walk | £ 0 | 0 | 0.00 KM |
| Park Street | £ 0 | 0 | 0.00 KM |
| Crendon Street | £ 0 | 0 | 0.00 KM |
Nearby Transport
| Name | NLC | TLC | Distance |
|---|---|---|---|
| High Wycombe | 3054 | HWY | 0.61 KM |
| Bourne End | 3018 | BNE | 6.68 KM |
| Marlow | 3021 | MLW | 7.16 KM |
| Cookham | 3019 | COO | 8.27 KM |
| Great Missenden | 1463 | GMN | 8.90 KM |
Nearby Listings
| Address | Price | Type | Score | Distance |
|---|---|---|---|---|
| Town Centre | £ 279,950 | BUY | 5 / 10 | 0.00 KM |
| Totteridge Road, High Wycombe, Buckinghamshire | £ 310,000 | BUY | 5 / 10 | 0.00 KM |
| 85A Totteridge Road, High Wycombe, Buckinghamshire HP13 6EY | £ 178,000 | BUY | 5 / 10 | 0.02 KM |
| Totteridge Road, High Wycombe | £ 230,000 | BUY | 7 / 10 | 0.02 KM |
| TOTTERIDGE ROAD, HIGH WYCOMBE | £ 475,000 | BUY | 7 / 10 | 0.02 KM |
Nearby Properties
| Address | Price | Distance |
|---|---|---|
| 22 Slater Street | £ 392,000 | 0.04 KM |
| 24 Slater Street | £ 210,000 | 0.04 KM |
| 21 Slater Street | £ 265,000 | 0.04 KM |
| 100 Totteridge Road | £ 358,000 | 0.08 KM |
| 88 Totteridge Road | £ 237,631 | 0.08 KM |