Lomond says ..
Centrally located and just a short stroll to the beach, train station and Prestwick’s vibrant town centre. 10 Coppergate benefits from its very own private parking to the rear; positioned on the second floor it offers spacious apartments with neutral décor and modern living.
Property Oracle says ..
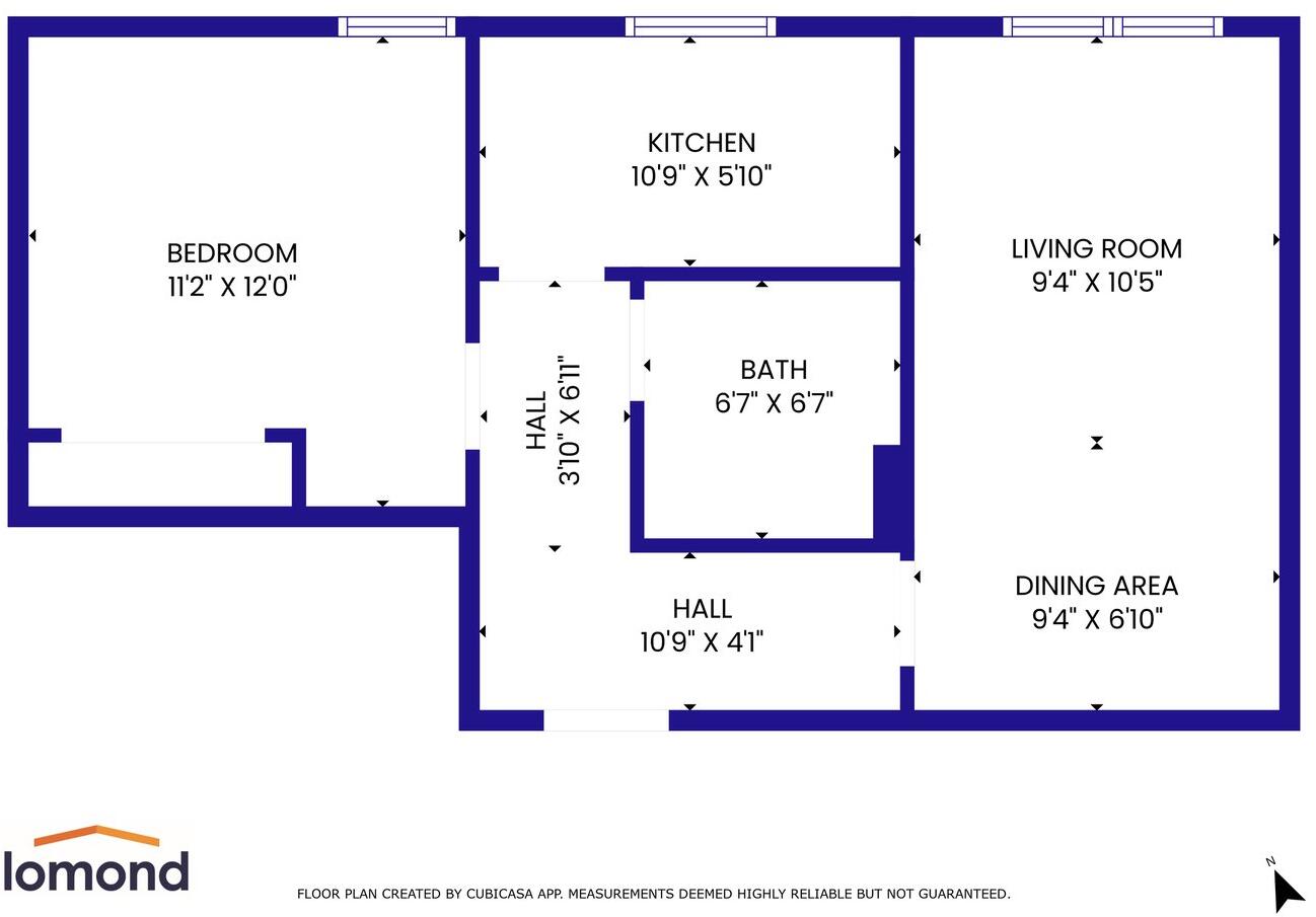
The property is a 1-bedroom, 1-bathroom apartment located on Main Street, Prestwick, in a vibrant area with various amenities. The apartment itself appears to be in good condition based on the provided images; it is clean, modern, and well-maintained. There is no evidence of significant wear and tear or the need for renovation. The kitchen and bathroom are contemporary and functional, and the living space is bright and airy. While the listing does not specify a garden, the lack of plot size information suggests it is unlikely to have a substantial outdoor space.
The list price of £85,000 is considerably lower than the average house price in the area (£607,198), and significantly lower than nearby comparable properties. The average price per square foot in the area is £436, while this apartment, at 472.05 sqft, is listed at approximately £180 per sqft. This suggests the property may represent good value for money, especially considering its location and apparent condition. However, the lack of outdoor space is a factor to consider. The proximity to Prestwick Town train station and Prestwick International Airport enhances the property’s appeal, improving its location score. Nearby streets show average prices ranging from £89,000 to £220,000, further supporting the argument that this property is reasonably priced.
Therefore, we give this property 6 / 10. *Disclaimer: This is our option and does constitute a recommendation or financial advice. Do your own research. *
- Price
- 9
- Condition
- 9
- Location
- 8
- Land
- 1
- Bedrooms
- 1
- Bathrooms
- 1
- Sqft (est)
- 472.05
The heatmap indicates the level of crime in the area. The color of the heatmap indicates the crime severity and recency.
Metrics Year-on-Year
- Average area value
- 591,667.00 £Increased by 9.11 %
- Est sale value
- 135,950.40 £Decreased by 44.40 %
- Average area rental value
- 2,375.00 £/moIncreased by 124.69 %
- Est letting value
- 472.05 £/moUnchanged by 0.00 %
- Est rental Yield
- 4.82 %Increased by 105.98 %
- Crime Rate
- 0.00 %
Agent Activity
Lomond created the listing.
Images
Nearby Streets
| Name | Average Price | Average Sqft | Distance |
|---|---|---|---|
| The Cross | £ 115,000 | 0 | 0.00 KM |
| Templerigg Street | £ 116,975 | 0 | 0.00 KM |
| Saunterne Road | £ 220,000 | 0 | 0.00 KM |
| Crofthead Road | £ 193,333 | 0 | 0.00 KM |
| Salisbury Place | £ 89,000 | 0 | 0.00 KM |
Nearby Transport
| Name | NLC | TLC | Distance |
|---|---|---|---|
| Prestwick Town | 9543 | PTW | 0.49 KM |
| Prestwick International Airport | 9544 | PRA | 0.95 KM |
| Newton-On-Ayr | 9571 | NOA | 3.44 KM |
| Ayr | 9463 | AYR | 5.06 KM |
| Troon | 9562 | TRN | 6.75 KM |
Nearby Listings
| Address | Price | Type | Score | Distance |
|---|---|---|---|---|
| Main Street, Prestwick, KA9 | £ 85,000 | BUY | 6 / 10 | 0.00 KM |
| Coppergate, 29 Main Street, Prestwick, KA9 | £ 115,000 | BUY | 5 / 10 | 0.03 KM |
| Kirk Street, Prestwick | £ 135,000 | BUY | 7 / 10 | 0.16 KM |
| Saunterne Road, Prestwick, South Ayrshire, KA9 | £ 250,000 | BUY | 5 / 10 | 0.20 KM |
| Ladykirk Road, Prestwick, KA9 | £ 75,000 | BUY | 7 / 10 | 0.23 KM |