Winkworth says ..
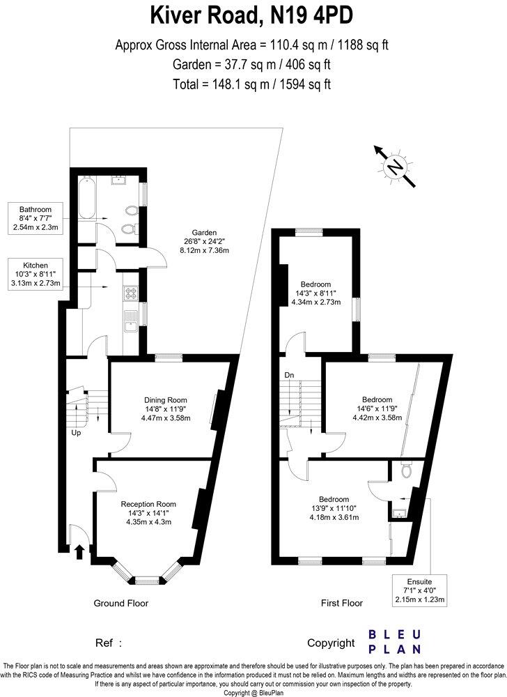
Offering for sale a three bedroom chain-free house in need of updating, arranged over two floors of a two storey period end of terrace building.
Property Oracle says ..
This is a three-bedroom end-of-terrace house located on Kiver Road in Tollington, Islington. The property is in a good location, close to schools, transportation, and shops. The house requires some modernisation. It features a small paved garden. The asking price of £950,000 is slightly above the local average, but the square footage is above average for the area.
Therefore, we give this property 6 / 10. *Disclaimer: This is our option and does constitute a recommendation or financial advice. Do your own research. *
- Price
- 6
- Condition
- 5
- Location
- 7
- Land
- 6
- Bedrooms
- 3
- Bathrooms
- 1
- Sqft (est)
- 1,017.51
The heatmap indicates the level of crime in the area. The color of the heatmap indicates the crime severity and recency.
Metrics Year-on-Year
- Average area value
- 770,833.00 £Increased by 10.52 %
- Est sale value
- 1,152,838.83 £Increased by 19.14 %
- Average area rental value
- 2,248.00 £/moDecreased by 5.39 %
- Est letting value
- 3,052.53 £/moUnchanged by 0.00 %
- Est rental Yield
- 3.50 %Decreased by 14.43 %
- Crime Rate
- 5.00 %Unchanged by 0.00 %
Agent Activity
Winkworth created the listing.
Nearby Schools
| Name | Type | Ofsted | Distance |
|---|---|---|---|
| Duncombe Primary School | Community School | Good | 0.40 KM |
| St Mark'S Cofe Primary School | Voluntary Aided School | Good | 0.42 KM |
| Willow Children'S Centre | Children's Centre | 0.67 KM | |
| Yerbury Primary School | Community School | Outstanding | 0.68 KM |
| City Of London Academy, Highgate Hill | Free Schools | 0.73 KM |
Images
Nearby Streets
| Name | Average Price | Average Sqft | Distance |
|---|---|---|---|
| Ivo Place | £ 0 | 0 | 0.00 KM |
| Porter Square | £ 0 | 0 | 0.00 KM |
| Axminster Road | £ 0 | 0 | 0.00 KM |
| Bryett Road | £ 550,000 | 0 | 0.00 KM |
| Gatcombe Road | £ 0 | 0 | 0.00 KM |
Nearby Transport
| Name | NLC | TLC | Distance |
|---|---|---|---|
| Upper Holloway | 1524 | UHL | 0.54 KM |
| Crouch Hill | 7406 | CRH | 1.21 KM |
| Finsbury Park | 6119 | FPK | 2.04 KM |
| Kentish Town | 1553 | KTN | 2.26 KM |
| Drayton Park | 6000 | DYP | 2.43 KM |
Nearby Listings
| Address | Price | Type | Score | Distance |
|---|---|---|---|---|
| Kiver Road, London, N19 | £ 950,000 | BUY | 6 / 10 | 0.00 KM |
| Kiver Road, Upper Holloway, London, N19 | £ 1,250,000 | BUY | 7 / 10 | 0.07 KM |
| Cornwallis Square, London, N19 | £ 550,000 | BUY | Unknown | 0.07 KM |
| Kingsdown Road, London, N19 | £ 650,000 | BUY | 8 / 10 | 0.09 KM |
| Kiver Road, London | £ 1,350,000 | BUY | 7 / 10 | 0.10 KM |
Nearby Properties
| Address | Price | Distance |
|---|---|---|
| 82 Kiver Road | £ 461,500 | 0.05 KM |
| 84 Kiver Road | £ 315,000 | 0.05 KM |
| 72 Kiver Road | £ 295,000 | 0.05 KM |
| 78 Kiver Road | £ 365,000 | 0.05 KM |
| 88 Kiver Road | £ 101,250 | 0.05 KM |