Broadhey Barns, Diglee Road, Furness Vale, High Peak
GA

Broadhey Barns, Diglee Road, Furness Vale, High Peak

By Gascoigne Halman

£ 699,950

Reviews

4 out of 5 stars

Gascoigne Halman says ..

A TRULY MAGNIFICENT FREEHOLD STONE CONVERTED BARN. This stone barn is an absolute ADORABLE HOME and offers the most UNIQUE EXQUISITE bright spacious accommodation with many traditional AND CONTEMPORARY features that will take your breath away. Having a STUNNING PICTURESQUE and TRANQUIL SEMI RURAL...

Property Oracle says ..

This property is a barn conversion located in Furness Vale, High Peak, Derbyshire. The property benefits from being close to local amenities and transport links. The conversion appears to be of high quality and is presented in excellent condition. The property includes a garden and double garage. The list price of £699,950 is significantly higher than the average property price in the area, but given the size, quality, and unique nature of the property, as a barn conversion, it may represent good value.

Therefore, we give this property 8 / 10. *Disclaimer: This is our option and does constitute a recommendation or financial advice. Do your own research. *

Price
7
Condition
10
Location
8
Land
7
Bedrooms
4
Bathrooms
3
Sqft (est)
2,524.78

The heatmap indicates the level of crime in the area. The color of the heatmap indicates the crime severity and recency.

Metrics Year-on-Year

Average area value
334,167.00 £
Increased by 24.23 %
from 269,000.00 £
Est sale value
648,868.46 £
Decreased by 19.44 %
from 805,404.82 £
Average area rental value
1,252.00 £/mo
Increased by 4.33 %
from 1,200.00 £/mo
Est letting value
0.00 £/mo
Decreased by 100.00 %
from 2,524.78 £/mo
Est rental Yield
4.50 %
Decreased by 15.89 %
from 5.35 %
Crime Rate
5.00 %
Unchanged by 0.00 %
from 5.00 %

Agent Activity

  • Gascoigne Halman created the listing.

Nearby Schools

NameTypeOfstedDistance
Furness Vale Primary And Nursery SchoolCommunity SchoolGood0.65 KM
Newtown Primary School (High Peak Federation)Community SchoolGood2.12 KM
New Mills SchoolCommunity SchoolGood2.31 KM
St George'S Cofe Primary SchoolAcademy Sponsor Led2.34 KM
Whaley Bridge Primary SchoolCommunity SchoolRequires improvement2.39 KM

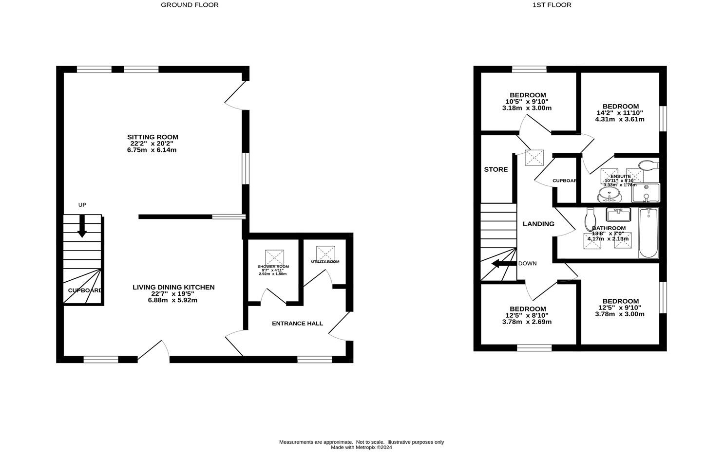
Images

 (Main) Broadhey Barns Hallway Hallway Shower Room Living Dining Kitche Living Dining Kitche Living Dining Kitche Sitting Room Sitting Room Sitting Room Sitting Room Sitting Room Other Landing Other Bedroom 2 Bedroom 3 Bedroom 4 Other Other Other Other Other Other Bedroom 1 Bedroom 1 En-suite Shower Room Other Bedroom 3 Other Other

Nearby Streets

NameAverage PriceAverage SqftDistance
Goyt Road £ 310,00000.00 KM
Williamson Crescent £ 000.00 KM

Nearby Transport

NameNLCTLCDistance
Furness Vale2952FNV0.66 KM
Whaley Bridge2772WBR2.06 KM
New Mills Newtown2769NMN2.18 KM
New Mills Central2974NMC2.44 KM
Strines2834SRN5.44 KM

Nearby Listings

AddressPriceTypeScoreDistance
Diglee Road, Furness Vale, High Peak £ 520,000BUY7 / 100.00 KM
Broadhey Barns, Diglee Road, Furness Vale, High Peak £ 699,950BUY8 / 100.00 KM
Diglee Road, Furness Vale, High Peak £ 525,000BUY6 / 100.17 KM
Park Avenue, Furness Vale, High Peak, SK23 £ 230,000BUY5 / 100.20 KM
Park Crescent, Furness Vale, SK23 £ 269,450BUY7 / 100.33 KM

Nearby Properties

AddressPriceDistance
3 Diglee Road £ 326,0000.09 KM
15 Diglee Road £ 180,0000.09 KM
7 Diglee Road £ 363,0000.09 KM
1 Broadhey Barn £ 460,0000.18 KM
3 Broadhey Barn £ 335,0000.18 KM