Acorn says ..
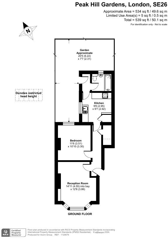
A one bedroom period Garden flat situated 100 yards from Sydenham overground station The property has a good size double bedroom, family size bathroom and good size eat in kitchen , large reception with lots of natural light. Offered with no onward chain, Access to a rear ...
Property Oracle says ..
This one bedroom garden flat is located in Sydenham, South East London. The property benefits from being close to Sydenham overground station, providing convenient access to transport links. The surrounding area includes several schools, with St Bartholomews’S Church Of England Primary School being the closest at 0.50 KM. The property itself appears to be in good condition based on the provided images, although a more in-depth survey would be needed to confirm. The flat includes a small, paved rear garden. Considering the property’s location, condition, and size, the list price of £315,000 seems reasonable, although comparable properties in the area may provide more context for a definitive assessment.
Therefore, we give this property 6 / 10. *Disclaimer: This is our option and does constitute a recommendation or financial advice. Do your own research. *
- Price
- 7
- Condition
- 8
- Location
- 7
- Land
- 4
- Bedrooms
- 1
- Bathrooms
- 1
- Sqft (est)
- 1,830.00
- Lot (est)
- 534.00
The heatmap indicates the level of crime in the area. The color of the heatmap indicates the crime severity and recency.
Metrics Year-on-Year
- Average area value
- 541,000.00 £Increased by 7.25 %
- Est sale value
- 1,249,890.00 £Increased by 51.44 %
- Average area rental value
- 1,900.00 £/moIncreased by 1.17 %
- Est letting value
- 3,660.00 £/moIncreased by 100.00 %
- Est rental Yield
- 4.21 %Decreased by 5.82 %
- Crime Rate
- 12.00 %Unchanged by 0.00 %
Agent Activity
Acorn created the listing.
Nearby Schools
| Name | Type | Ofsted | Distance |
|---|---|---|---|
| St Bartholomews'S Church Of England Primary School | Voluntary Aided School | Good | 0.50 KM |
| Forest Hill School | Community School | Requires improvement | 0.84 KM |
| Holy Trinity Church Of England Primary School | Voluntary Aided School | Good | 1.03 KM |
| Sydenham School | Community School | Good | 1.04 KM |
| Alexandra Junior School | Academy Converter | Good | 1.04 KM |
Images
Nearby Streets
| Name | Average Price | Average Sqft | Distance |
|---|---|---|---|
| Newman Close | £ 0 | 0 | 0.00 KM |
| Alexandra Road | £ 0 | 0 | 0.00 KM |
| Broseley Grove | £ 0 | 0 | 0.00 KM |
| Chulsa Road | £ 340,000 | 0 | 0.00 KM |
| High Street | £ 0 | 0 | 0.00 KM |
Nearby Transport
| Name | NLC | TLC | Distance |
|---|---|---|---|
| Sydenham | 5437 | SYD | 0.10 KM |
| Penge East | 5072 | PNE | 0.84 KM |
| Penge West | 5378 | PNW | 1.31 KM |
| Forest Hill | 5362 | FOH | 1.39 KM |
| Kent House | 5080 | KTH | 1.86 KM |
Nearby Listings
| Address | Price | Type | Score | Distance |
|---|---|---|---|---|
| Peak Hill Gardens, Sydenham | £ 315,000 | BUY | 6 / 10 | 0.00 KM |
| Silverdale House, Sydenham | £ 375,000 | BUY | 6 / 10 | 0.02 KM |
| 3 Sydenham Road, Sydenham, London, SE26 | £ 575,000 | BUY | 4 / 10 | 0.08 KM |
| Sydenham Road, Sydenham, London, SE26 | £ 425,000 | BUY | 6 / 10 | 0.09 KM |
| Lyric Mews, Silverdale, London, SE26 | £ 325,000 | BUY | Unknown | 0.09 KM |
Nearby Properties
| Address | Price | Distance |
|---|---|---|
| 27a Silverdale | £ 270,000 | 0.04 KM |
| 29a Silverdale | £ 186,000 | 0.04 KM |
| 11a Silverdale | £ 165,000 | 0.04 KM |
| 19 Silverdale | £ 159,995 | 0.04 KM |
| 11 Silverdale | £ 250,000 | 0.04 KM |