Pinewood Park, Farnborough, Hampshire, GU14
By Bridges Estate Agents
£ 340,000
Reviews
3 out of 5 stars
Bridges Estate Agents says ..
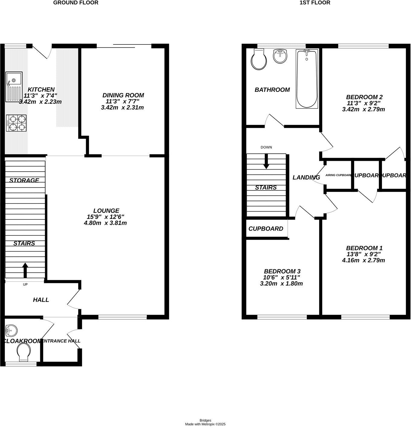
Nestled within a sought after residential area, this beautifully maintained three bedroom family home enjoys an enviable position overlooking the green. The ground floor features a spacious and welcoming lounge that flows seamlessly into a bright dining room, with doors opening onto th...
Property Oracle says ..
This is a three-bedroom terraced house in Farnborough, Hampshire. The property is listed for £340,000. It is located near several schools and transportation links. The property has a garden with a shed. The interior is in reasonable condition, but some areas could benefit from updating.
Therefore, we give this property 6 / 10. *Disclaimer: This is our option and does constitute a recommendation or financial advice. Do your own research. *
- Price
- 7
- Condition
- 7
- Location
- 6
- Land
- 6
- Bedrooms
- 3
- Bathrooms
- 1
The heatmap indicates the level of crime in the area. The color of the heatmap indicates the crime severity and recency.
Metrics Year-on-Year
- Average area value
- 413,623.00 £Decreased by 6.20 %
- Average area rental value
- 1,217.00 £/moDecreased by 13.57 %
- Est rental Yield
- 3.53 %Decreased by 7.83 %
- Crime Rate
- 3.00 %Unchanged by 0.00 %
Agent Activity
Bridges Estate Agents created the listing.
Nearby Schools
| Name | Type | Ofsted | Distance |
|---|---|---|---|
| Pinewood Infant School | Community School | Good | 0.10 KM |
| Guillemont Junior School | Community School | Good | 0.43 KM |
| Cove Infant School | Community School | Requires improvement | 1.05 KM |
| Cove School | Foundation School | Good | 1.13 KM |
| Parsonage Farm Nursery And Infant School | Community School | Outstanding | 1.15 KM |
Images
Nearby Streets
| Name | Average Price | Average Sqft | Distance |
|---|---|---|---|
| Martins Park | £ 67,500 | 0 | 0.00 KM |
| Nihtjar Close | £ 219,950 | 0 | 0.00 KM |
| Hawley Place Gardens | £ 430,000 | 0 | 0.00 KM |
| Darby Close | £ 0 | 0 | 0.00 KM |
| Rhine Banks | £ 0 | 0 | 0.00 KM |
Nearby Transport
| Name | NLC | TLC | Distance |
|---|---|---|---|
| Blackwater | 5625 | BAW | 2.77 KM |
| Farnborough (Main) | 5521 | FNB | 3.59 KM |
| Frimley | 5683 | FML | 4.33 KM |
| Sandhurst (Berks) | 5646 | SND | 4.75 KM |
| Farnborough North | 5688 | FNN | 4.80 KM |
Nearby Listings
| Address | Price | Type | Score | Distance |
|---|---|---|---|---|
| Pinewood Park, Farnborough, Hampshire, GU14 | £ 340,000 | BUY | 6 / 10 | 0.00 KM |
| Hill Corner Farm Park, Sandy Lane, Farnborough, Hampshire, GU14 | £ 230,000 | BUY | Unknown | 0.11 KM |
| Hill Corner Farm Park, Sandy Lane, Farnborough, Hampshire, GU14 | £ 210,000 | BUY | Unknown | 0.11 KM |
| Hill Corner Farm Park, Sandy Lane, Farnborough, Hampshire, GU14 | £ 180,000 | BUY | 7 / 10 | 0.11 KM |
| Pinewood Park, Farnborough, Hampshire, GU14 | £ 325,000 | BUY | Unknown | 0.14 KM |
Nearby Properties
| Address | Price | Distance |
|---|---|---|
| 25 Pinewood Park | £ 270,000 | 0.00 KM |
| 57 Pinewood Park | £ 154,950 | 0.00 KM |
| 15 Pinewood Park | £ 282,000 | 0.00 KM |
| 65 Pinewood Park | £ 159,950 | 0.00 KM |
| 51 Pinewood Park | £ 275,000 | 0.00 KM |