PEGASUS BATH LEAT, Upper Bristol Rd, Bath BA1 3ER
By Pegasus
£ 825,000
Reviews
3 out of 5 stars
Pegasus says ..
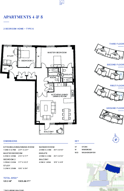
*Exclusively for over 60s* Apartment 8 at Pegasus Bath Leat is a spacious two bedroom home on the second floor. Featuring a bright open-plan kitchen/living area leading out to a private terrace, built-in wardrobes to the main bedroom and an additional study.
Property Oracle says ..
This is a modern, well-maintained retirement property located in a desirable area of Bath. It offers convenient access to amenities, transportation, and green spaces. While it may not have a significant amount of private land, the communal gardens provide some outdoor space for residents. The price appears to be reasonable compared to other properties in the area, but it’s important to consider the specific features and restrictions of a retirement property before making a decision.
Therefore, we give this property 7 / 10. *Disclaimer: This is our option and does constitute a recommendation or financial advice. Do your own research. *
- Price
- 6
- Condition
- 9
- Location
- 8
- Land
- 5
- Bedrooms
- 3
- Bathrooms
- 0
- Sqft (est)
- 1,305.66
The heatmap indicates the level of crime in the area. The color of the heatmap indicates the crime severity and recency.
Metrics Year-on-Year
- Average area value
- 921,429.00 £Increased by 70.18 %
- Est sale value
- 1,468,867.50 £Increased by 95.99 %
- Average area rental value
- 1,672.00 £/moDecreased by 4.68 %
- Est letting value
- 2,611.32 £/moIncreased by 100.00 %
- Est rental Yield
- 2.18 %Decreased by 43.96 %
- Crime Rate
- 2.00 %Unchanged by 0.00 %
Agent Activity
Pegasus created the listing.
Nearby Schools
| Name | Type | Ofsted | Distance |
|---|---|---|---|
| Parkside Children'S Centre | Children's Centre | 0.57 KM | |
| St Andrew'S Church School | Academy Converter | 0.72 KM | |
| Oldfield Park Infant School | Academy Converter | Good | 0.73 KM |
| Hayesfield Girls School | Academy Converter | Good | 0.84 KM |
| Bath Academy | Other Independent School | 0.91 KM |
Images
Nearby Streets
| Name | Average Price | Average Sqft | Distance |
|---|---|---|---|
| Bath-Bristol Path | £ 405,000 | 0 | 0.00 KM |
| Cow Lane | £ 0 | 0 | 0.00 KM |
| Saint Ann's Place | £ 0 | 0 | 0.00 KM |
| Park View | £ 0 | 0 | 0.00 KM |
| Westmoreland Road | £ 0 | 0 | 0.00 KM |
Nearby Transport
| Name | NLC | TLC | Distance |
|---|---|---|---|
| Oldfield Park | 3219 | OLF | 1.11 KM |
| Bath Spa | 3271 | BTH | 1.75 KM |
| Freshford | 3344 | FFD | 9.09 KM |
Nearby Listings
| Address | Price | Type | Score | Distance |
|---|---|---|---|---|
| Upper Bristol Road, Bath, Somerset, BA1 | £ 865,000 | BUY | 6 / 10 | 0.00 KM |
| PEGASUS BATH LEAT, Upper Bristol Rd, Bath BA1 3ER | £ 825,000 | BUY | 7 / 10 | 0.00 KM |
| PEGASUS BATH LEAT, Upper Bristol Rd, Bath BA1 3ER | £ 750,000 | BUY | 7 / 10 | 0.00 KM |
| PEGASUS BATH LEAT, Upper Bristol Rd, Bath BA1 3ER | £ 650,000 | BUY | 6 / 10 | 0.00 KM |
| PEGASUS BATH LEAT, Upper Bristol Rd, Bath BA1 3ER | £ 475,000 | BUY | 6 / 10 | 0.00 KM |
Nearby Properties
| Address | Price | Distance |
|---|---|---|
| 9a Nelson Villas | £ 250,000 | 0.05 KM |
| 5 St Georges Buildings | £ 53,000 | 0.06 KM |
| 9b Nelson Villas | £ 240,000 | 0.06 KM |
| 6 Nelson Villas | £ 350,000 | 0.06 KM |
| 5 Nelson Villas | £ 580,000 | 0.06 KM |