Plots 1 & 2 Ariundle, Strontian, PH36 4JB
By MacPhee And Partners LLP
£ 95,000
Reviews
2 out of 5 stars
MacPhee And Partners LLP says ..
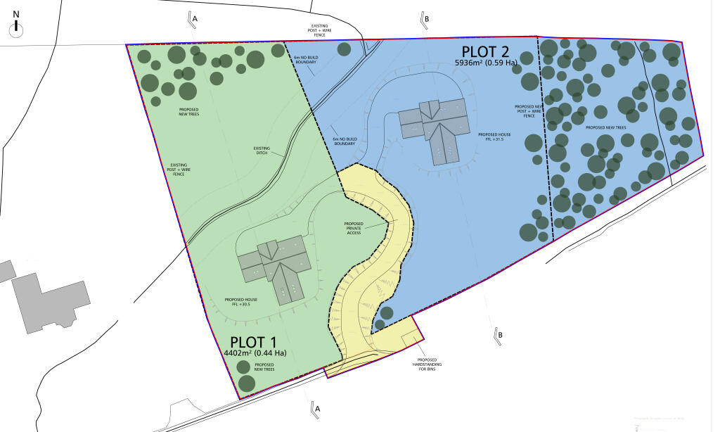
A rare opportunity has arisen to purchase two very attractive, generously sized plots of land, occupying prime elevated positions on the edge of the popular residential village of Strontian. Situated on the rugged Ardnamurchan Peninsula, and enjoying stunning views over the surrounding countryside,
Property Oracle says ..
The property consists of two plots of land located in Strontian, Highland, Scotland. The plots are being sold by MacPhee And Partners LLP. The asking price is £95,000. The plots are located on Ariundle Branch Road. Plot 1 is 4402m2 (0.44 Ha) and Plot 2 is 5936m2 (0.59 Ha). The surrounding area is rural and scenic. The plots are undeveloped and will require significant work to prepare for building. The listing price appears reasonable when compared to nearby plot listings. However, potential buyers should consider the additional costs associated with building on the land.
Therefore, we give this property 5 / 10. *Disclaimer: This is our option and does constitute a recommendation or financial advice. Do your own research. *
- Price
- 7
- Condition
- 1
- Location
- 6
- Land
- 8
- Bedrooms
- 0
- Bathrooms
- 0
The heatmap indicates the level of crime in the area. The color of the heatmap indicates the crime severity and recency.
Metrics Year-on-Year
- Average area value
- 100,833.00 £Decreased by 30.42 %
- Average area rental value
- 877.00 £/moIncreased by 4.40 %
- Est rental Yield
- 10.44 %Increased by 50.00 %
- Crime Rate
- 0.00 %
Agent Activity
MacPhee And Partners LLP created the listing.
Images
Nearby Streets
| Name | Average Price | Average Sqft | Distance |
|---|---|---|---|
| Anaheilt | £ 0 | 0 | 0.00 KM |
| Dalmore Road | £ 0 | 0 | 0.00 KM |
| Upper Scotstown | £ 0 | 0 | 0.00 KM |
Nearby Listings
| Address | Price | Type | Score | Distance |
|---|---|---|---|---|
| Plots 1 & 2 Ariundle, Strontian, PH36 4JB | £ 95,000 | BUY | 5 / 10 | 0.00 KM |
| Plot at Scotstown, Strontian, PH36 4JB | £ 69,000 | BUY | 4 / 10 | 0.77 KM |
| , Former Water Tank Sites, Scotstown, Loch Sunnart, PH364JB | £ 29,000 | BUY | 5 / 10 | 0.77 KM |
| 4 Lower Scotstown, Strontian, PH36 4JB | £ 340,000 | BUY | 5 / 10 | 0.82 KM |
| Linnhe, 3 Glenview, Strontian, PH36 4HZ | £ 155,000 | BUY | 6 / 10 | 1.84 KM |