BR
Northbrook Crescent, Basingstoke, Hampshire, RG24
By Bridges Estate Agents
£ 225,000
Reviews
3 out of 5 stars
Bridges Estate Agents says ..
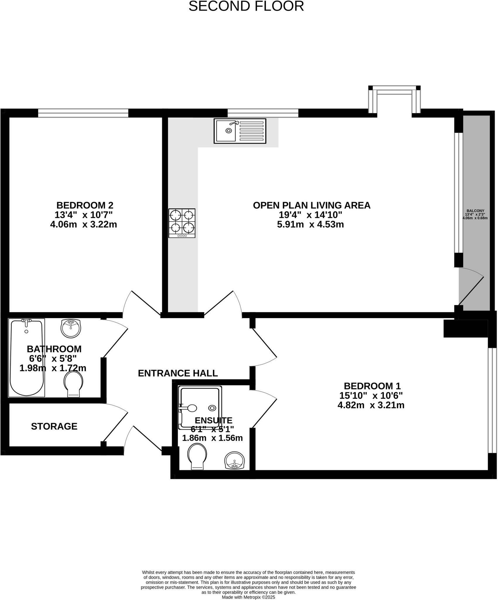
Bridges Estate Agents offer to the market with no onward chain and vacant possession this well maintained two double bedroom, two bathroom apartment located in the popular Rookdown area. The property is ideal for those wanting to be close to the hospital and within close proximity of the town cen...
Property Oracle says ..
Therefore, we give this property 6 / 10. *Disclaimer: This is our option and does constitute a recommendation or financial advice. Do your own research. *
- Price
- 8
- Condition
- 8
- Location
- 7
- Land
- 3
- Bedrooms
- 2
- Bathrooms
- 2
- Sqft (est)
- 692.55
The heatmap indicates the level of crime in the area. The color of the heatmap indicates the crime severity and recency.
Metrics Year-on-Year
- Average area value
- 339,353.00 £Decreased by 35.35 %
- Est sale value
- 286,715.70 £Decreased by 15.68 %
- Average area rental value
- 1,419.00 £/moIncreased by 8.32 %
- Est letting value
- 692.55 £/moUnchanged by 0.00 %
- Est rental Yield
- 5.02 %Increased by 67.89 %
- Crime Rate
- 27.00 %Unchanged by 0.00 %
from 524,904.00 £
from 340,042.05 £
from 1,310.00 £/mo
from 692.55 £/mo
from 2.99 %
from 27.00 %
Agent Activity
Bridges Estate Agents created the listing.
Nearby Schools
| Name | Type | Ofsted | Distance |
|---|---|---|---|
| The Ashwood Academy | Academy Alternative Provision Sponsor Led | Good | 0.91 KM |
| Saxon Wood School | Community Special School | Good | 0.98 KM |
| Winklebury Junior School | Community School | Good | 1.21 KM |
| Winklebury Infant School | Community School | Good | 1.23 KM |
| Castle Hill Infant School | Community School | Outstanding | 1.69 KM |
Images
Nearby Streets
| Name | Average Price | Average Sqft | Distance |
|---|---|---|---|
| Spinney Mew | £ 300,000 | 0 | 0.00 KM |
| Nightingale Gardens | £ 240,000 | 0 | 0.00 KM |
| Furzelea Road | £ 450,000 | 0 | 0.00 KM |
| Ashwood Way | £ 0 | 0 | 0.00 KM |
| Austen Court | £ 0 | 0 | 0.00 KM |
Nearby Transport
| Name | NLC | TLC | Distance |
|---|---|---|---|
| Basingstoke | 5520 | BSK | 3.74 KM |
| Bramley (Hampshire) | 5500 | BMY | 8.37 KM |
Nearby Listings
| Address | Price | Type | Score | Distance |
|---|---|---|---|---|
| Northbrook Crescent, Basingstoke, Hampshire, RG24 | £ 225,000 | BUY | 6 / 10 | 0.00 KM |
| Limes Park | £ 195,000 | BUY | 7 / 10 | 0.07 KM |
| Watertower Way, Basingstoke, Hampshire | £ 375,000 | BUY | 6 / 10 | 0.08 KM |
| Watertower Way, Basingstoke, Hampshire | £ 425,000 | BUY | 8 / 10 | 0.08 KM |
| Basingstoke, Hampshire, RG24 | £ 400,000 | BUY | 6 / 10 | 0.08 KM |
Nearby Properties
| Address | Price | Distance |
|---|---|---|
| 53 Park Prewett Road | £ 212,000 | 0.05 KM |
| 107 Park Prewett Road | £ 279,000 | 0.05 KM |
| 95 Park Prewett Road | £ 312,500 | 0.05 KM |
| 91 Park Prewett Road | £ 250,000 | 0.06 KM |
| 103 Park Prewett Road | £ 242,500 | 0.06 KM |