Quarry Road, Winchester, Hampshire, SO23
By Charters
£ 400,000
Reviews
4 out of 5 stars
Charters says ..
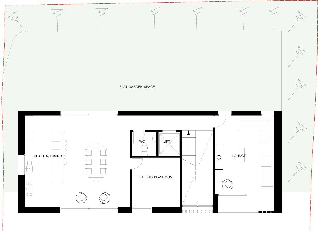
We are delighted to present to the market a plot with planning permission to construct a contemporary home located within a popular location of Winchester.
Property Oracle says ..
The property is a new build PLOT located in Winchester, Hampshire. Winchester is a desirable location with good schools and transport links. The property itself is modern in design and appears to be of high quality. The list price is below the average price for the area, but it is important to note that this is a PLOT of land and not a completed property. Therefore, the price may be considered reasonable given the potential for building a substantial property on the site. There is limited information on plot size, which would impact the overall assessment. The images provided showcase a modern, well-designed property with a focus on natural light and open-plan living. The property appears to be in excellent condition and is likely to appeal to buyers looking for a modern home in a desirable location.
Therefore, we give this property 9 / 10. *Disclaimer: This is our option and does constitute a recommendation or financial advice. Do your own research. *
- Price
- 7
- Condition
- 10
- Location
- 10
- Land
- 10
- Bedrooms
- 0
- Bathrooms
- 0
- Sqft (est)
- 1,237.00
The heatmap indicates the level of crime in the area. The color of the heatmap indicates the crime severity and recency.
Metrics Year-on-Year
- Average area value
- 608,889.00 £Decreased by 17.53 %
- Est sale value
- 880,744.00 £Increased by 35.88 %
- Average area rental value
- 1,977.00 £/moIncreased by 11.38 %
- Est letting value
- 2,474.00 £/moIncreased by 100.00 %
- Est rental Yield
- 3.90 %Increased by 35.42 %
- Crime Rate
- 6.00 %Unchanged by 0.00 %
Agent Activity
Charters created the listing.
Nearby Schools
| Name | Type | Ofsted | Distance |
|---|---|---|---|
| All Saints Church Of England Primary School | Voluntary Controlled School | Good | 0.31 KM |
| Winnall Primary School | Community School | Good | 0.59 KM |
| Sparklers And The Carroll Children'S Centre | Children's Centre | 0.64 KM | |
| Winchester College | Other Independent School | 1.36 KM | |
| St Swithun'S | Other Independent School | 1.38 KM |
Images
Nearby Streets
| Name | Average Price | Average Sqft | Distance |
|---|---|---|---|
| Alresford Road | £ 775,000 | 0 | 0.00 KM |
| Saint John's Almhouses | £ 0 | 0 | 0.00 KM |
| Durngate Terrace | £ 635,000 | 0 | 0.00 KM |
| Cossack Lane | £ 0 | 0 | 0.00 KM |
| Saint Georges Street | £ 0 | 0 | 0.00 KM |
Nearby Transport
| Name | NLC | TLC | Distance |
|---|---|---|---|
| Winchester | 5924 | WIN | 2.32 KM |
| Shawford | 5929 | SHW | 5.10 KM |
Nearby Listings
| Address | Price | Type | Score | Distance |
|---|---|---|---|---|
| Quarry Road, Winchester, Hampshire, SO23 | £ 400,000 | BUY | 9 / 10 | 0.00 KM |
| Quarry Road, Winchester, Hampshire, SO23 | £ 2,200,000 | BUY | 7 / 10 | 0.06 KM |
| St. Leonards Road, Winchester, SO23 | £ 375,000 | BUY | 8 / 10 | 0.10 KM |
| Nelson Road, Winchester, SO23 | £ 475,000 | BUY | 6 / 10 | 0.12 KM |
| St. Leonards Road, Winchester, Hampshire, SO23 | £ 750,000 | BUY | 8 / 10 | 0.13 KM |
Nearby Properties
| Address | Price | Distance |
|---|---|---|
| 30 Quarry Road | £ 837,500 | 0.05 KM |
| 14 Quarry Road | £ 680,000 | 0.05 KM |
| 28a Quarry Road | £ 950,000 | 0.05 KM |
| 22 Quarry Road | £ 350,000 | 0.05 KM |
| 26a Quarry Road | £ 759,000 | 0.05 KM |